STUDIO DUBLU CORTINA NORTH I LUX I DIRECT PROPRIETAR I Loc parcare

750 € + TVA / lună

Voluntari, Judeţul Ilfov

Nr. camere:
1
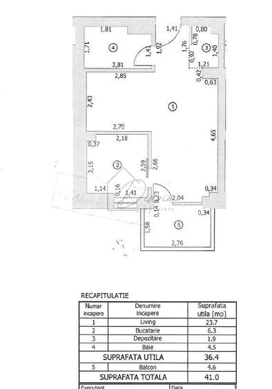
Suprafață utilă:
41 mp
Etaj:
1 / 9
An construcție:
2024
Nr. niveluri:
9

Descriere apartament

Va ofer spre inchiriere studio dublu in Pipera - Aviatiei, situat in complexul premium Cortina North, in blocul D2, in cea mai vibranta zona din Nordul Bucurestiului, aproape de statia de metrou Aurel Vlaicu si Promenada Mall, intr-o comunitate selecta, dinamica si exclusivista. DIRECT PROPRIETAR! COMISION 0% ! Ideal expat, persoana singura! Ideal inchiriere pe termen scurt mediu - contract minim 1 luna ! Pretul se negociaza in functie de perioada contractului de inchiriere! Conditii de inchiriere: un singur locatar in apartament; NU se fumeaza in interiorul apartamentului; NU sunt acceptate animale de companie de niciun fel! Loc de parcare dispoinibil la nivel -2 langa lift. Studioul este la etajul 1/9, cu camere luminoase, cu suprafata utila de 41 mp, cu o compartimentare eficienta si moderna a spatiilor, dupa cum urmeaza: - hol intrare cu dressing generos (inclusiv masina de spalat rufe si uscator rufe) - living cu zona de relaxare (canapea extensibila) si zona de dining (masa cu 2 scaune); dressing generos - dormitor cu pat de 160x200cm, cu lada depozitare si multiple spatii de depozitare - bucatarie inchisa, complet utilata, cu zona de luat masa la fereastra; electrocasnice premium Electrolux (masina de spalat vase, plita inductie, cuptor electric, cuptor cu microunde, frigider) - baie cu cada - balcon cu vedere panoramica superba Promenada, ideal pentru momente de relaxare; amenajat cu fotoliu Dotari si finisaje apartament: premium - mobilier realizat integral pe comanda; design luxury - aer conditionat; senzori dioxid de carbon, gaz si fum; videointerfon - Centrala Ariston + termostat digital Siemens - tamplarie din aluminiu Schuco, geam tripan - Obiecte sanitare Daniel Rubinetterie; Gresie si faianta KTL; Parchet Balterior 9mm - podea flotanta pe terasa - tavan Barissol in zona de living - usa intrare tip Blindata Piacetini; usi interior tip Filomuro Facilitati Cortina North, unele dintre acestea fiind unice in zona: - fațada ventilată Swisspearl - localizat în proximitatea celui mai mare hub office din capitală - centru fitness/wellness - Cortina Wellness; bazin semiolimpic de înot; pistă de alergare de peste 1,5 km; zone verzi - paza umana complex 24/24 - 3 cai de acces in complex cu bariera si paza umana 24/7 Locatie aproape de: 50 m: statie STB si STV; 100 m: Kaufland, 18 GYM, Lidl 1 km: Pipera Plaza; Lidl; farmacie; restaurante; 2 km: Metrou Pipera; Metrou Aurel Vlaicu; Promenada Mall; 2,6 km: parcul Herastrau Va invit sa programati o vizionare! Alina Dinoiu I offer for rent a double studio in Pipera - Aviatiei, located in the premium Cortina North complex, in block D2, in the most vibrant area in the North of Bucharest, close to the Aurel Vlaicu metro station and Promenada Mall, in a select, dynamic and exclusive community. DIRECT OWNER! 0% COMMISSION ! Ideal expat, single person! Ideal short-term rental - minimum contract 1 month!
Citește mai mult Citește mai puțin
Decomandat Mobilat Mobilat Lux Piscină Curte Curte comună Aer condiționat Calorifere Centrală proprie

Detalii apartament

ID anunț: 3679289 Actualizat în: 02 Martie 2026
Nr. camere: 1
Suprafață utilă: 41 mp
Suprafață utilă totală: 41 mp
Compartimentare: Decomandat
Etaj: Etaj 1 / 9
Nr. băi: 1
An construcție: 2024
Regim înălțime: P+9E

Istoric preț

Facilități

Pereți
Faianță Vopsea lavabilă
Podele
Gresie Parchet
Rulouri/Obloane
Aluminiu Lemn
Ușă intrare
Parchet Lemn Metal
Uși interior
Lemn
Izolații termice
Exterior Interior
Ferestre cu geam termopan
Aluminiu Lemn
Contorizare
Apometre Contor căldură Contor gaz
Bucătărie
Mobilată Utilată
Mobilat
Mobilat Lux
Electrocasnice
Aragaz Frigider Hotă Mașină de spălat Mașină spălat vase TV
Diverse
Telecomandă poartă acces auto Telecomandă poartă garaj
Facilități imobil
Curte Curte comună Interfon Lift Piscină interioară Spa Spații agrement Videointerfon
Utilități
Curent Apă Canalizare Gaze Aragaz / Plită Frigider Mașină de spălat rufe Mașină de spălat vase TV Supraveghere video
Sistem încălzire
Calorifere Centrală proprie
Climatizare
Aer condiționat
Amenajare străzi
Iluminat stradal Mijloace de transport în comun Asfaltate
Servicii imobil
Pază Supraveghere video

Puncte de interes

Mijloace transport
transport
Aeroportul Internaţional Băneasa (Aurel Vlaicu) - LRBS (BBU)
Mijloace transport aprox. 991 m
transport
Capat C.F.R Constanta linii : 112,135,445
Mijloace transport aprox. 995 m
transport
Statia Pipera S.A., linia 135, N119, 112
Mijloace transport aprox. 1115 m
transport
Statia Marin Dracea, linia 135, N119, 112
Mijloace transport aprox. 1382 m
Școală
education
Grupul Şcolar de Aeronautică "Henri Coandă".
Învățământ aprox. 1179 m
education
Parc avioane Grup Scolar de Aeronautica "H. Coanda"
Învățământ aprox. 1211 m
education
Grup Scolar Industrial Henri Coanda
Învățământ aprox. 1225 m
education
Scoala primara si gimnaziala MEA
Învățământ aprox. 1229 m
Recreere
parks
Teren sportiv
Recreere aprox. 1244 m
shopping
Lidl
Supermarket/Mall aprox. 1302 m
restaurants
Q's Inn
Restaurante aprox. 1335 m
shopping
Mega Image
Supermarket/Mall aprox. 1411 m

Proprietăți similare

Garsonieră decomandată în Central
700 € / lună
Județul Ilfov, Voluntari
1 camere
43 mp
Etaj 2
Garsonieră decomandată, mobilată în Central
675 € / lună
Județul Ilfov, Voluntari
1 camere
45 mp
Etaj 6
Garsonieră, mobilată în Ultracentral
690 € / lună
Județul Ilfov, Voluntari
1 camere
52 mp
Etaj 5

Abonează-te la newsletter să fii primul care primește cele mai noi recomandări de proprietăți și sfaturi de la experți.