Inchiriez Garsoniera 42mp Timpuri Noi Renovata Ianuarie 2026

380 € / lună

Timpuri Noi, Bucureşti

Nr. camere:
1
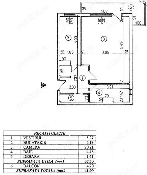
Suprafață utilă:
42 mp
Etaj:
7 / 8
An construcție:
1989
Nr. niveluri:
8

Descriere

Inchiriez Garsoniera 42mp Timpuri Noi Renovata Ianuarie 2026

Garsoniera de inchiriat in Bucure?ti, aproape de zona centrala! Cauti un loc confortabil ?i central in Bucure?ti? Oferim spre inchiriere o garsoniera superba, perfecta pentru studen?i, tineri profesioni?ti, cupluri sau oricine cauta un spa?iu lini?tit ?i practic. Detalii: - Loca?ie: Bucure?ti, zona centrala Timpuri Noi, la 8 minute de metrou Timpuri Noi, 11 minute de Mall Vitan. - Suprafa?a: 42 mp, garsoniera este luminoasa si spatioasa, este un spatiu care imediat iti da senzatia de acasa - Bloc: Construit in 1989, clasa energetica B, etaj 7 din 8, doua lifturi, interfon, supraveghere video spatii comune 24 24. - Stare: Iginienizata complet ianuarie 2026, zugravita integral, gata de mutat imediat Dotari: - Dotari: plita, cuptor, frigider, ma?ina de spalat cu uscator (un detaliu important), aer conditionat (cu control wireless de la distanta), internet fibra optica, aspirator, fier de calcat si masa, uscator rufe etc. Pentru moment garsoniera nu are televizor, acesta se va alege in functie de preferintele viitorului chirias in cazul in care nu are. - Mobila ?i detalii de calitate (design modern ?i func?ional). Capanea extensibila la 140x200 cu topper dormeo pentru un confort sporit. Exista spatiu si pentru adaugarea unui birou de lucru. Conditii inchiriere: - Pre? 380 net pe luna (nenegociabil) + 500 eur garantie. - Cautam chiria? pe termen lung (minim 1 an, ultimul chirias a stat aici 5 ani). - Nu dorim persoane care fumeaza sau cu animale de companie. Alte lucruri de luat in calcul: - In zona este insa o provocare gasirea unui loc de parcare fara plata (ultimul chirias a indicat cateva posibilitati) Contact: Daca sunte?i interesat, va rog sa ma contacta?i la (Victor) pentru mai multe informa?ii ?i pentru a programa o vizita. ID: 298869174 ID anun? : 1769963112
Citește mai mult Citește mai puțin
ID anunț: 3359024 Actualizat în: 02 Februarie 2026
Nr. camere: 1
Suprafață utilă: 42 mp
Suprafață utilă totală: 42 mp
Compartimentare: Decomandat
Confort: 1
Etaj: Etaj 7 / 8
Nr. băi: 1
An construcție: 1989
Regim înălțime: P+8E

Istoric preț

Utilități

Utilități
Apă Gaze Climă Internet

Proprietăți similare

Garsonieră decomandată în Timpuri Noi
400 € / lună
București, Timpuri Noi
1 camere
40 mp
Parter
Garsonieră decomandată, mobilată în Timpuri Noi
400 € / lună
București, Timpuri Noi
1 camere
40 mp
Etaj 5 / 8
Garsonieră decomandată, mobilată în Timpuri Noi
380 € / lună
București, Timpuri Noi
1 camere
40 mp
Etaj 2
Garsonieră decomandată, mobilată în Timpuri Noi
380 € / lună
București, Timpuri Noi
1 camere
42 mp
Parter
Garsonieră decomandată, mobilată în Timpuri Noi
399 € / lună
București, Timpuri Noi
1 camere
38 mp
Etaj 8 / 8
Garsonieră în Timpuri Noi
350 € / lună
București, Timpuri Noi
1 camere
35 mp
Garsonieră decomandată, mobilată în Timpuri Noi
380 € / lună
București, Timpuri Noi
1 camere
42 mp
Etaj 7 / 8
Garsonieră în Timpuri Noi
350 € / lună
București, Timpuri Noi
1 camere
40 mp
Etaj 12
Garsonieră în Timpuri Noi
350 € / lună
București, Timpuri Noi
1 camere
40 mp
Etaj 3

Abonează-te la newsletter să fii primul care primește cele mai noi recomandări de proprietăți și sfaturi de la experți.