Garsoniera decomandata/8-10 minute metrou Berceni/mutare imediata

400 € / lună

Popeşti-Leordeni, Judeţul Ilfov

Nr. camere:
1
Suprafață utilă:
38 mp
Etaj:
4 / 7
An construcție:
2025
Nr. niveluri:
7

Descriere apartament

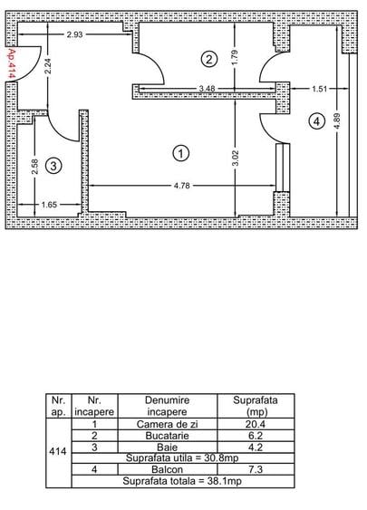
COMISION 0%Va ofer spre inchiriere garsoniera decomandata, mobilata si utilata cu suprafata utila totala de 38.1 mp, dintre care: 30.8 mp utili+7.3 mp balcon.Imobilul are vedere catre afla pe Strada Biruintei 81, la doar 8-10 minute de mers pe jos de statia de metrou Berceni intr-un Ansamblu Rezidential nou ce dispune de doua piscine exterioare, parc si multiple spatii comerciale.Garsoniera se afla la etajul 4 din 7(doua lifturi spatioase).Imobilul dispune de:centrala proprie si incalzire prin pardosealamobilier realizat la comanda, multiple spatii de depozitareelectrocasnice noi(plita pe inductie, cuptor electric, combina frigorifica, aparat de cafea, masina de spalat rufe, etc)balcon amenajat cu masuta si scaunevideointerfonaer conditionat smart smart TVloc de parcare chiar in fata bloculuiIn apropiere regasiti: Auchan, Mega Image, Carrefour, La Doi Pasi, Sinsay, 5to go, sali fitness, gradinite, farmacii, achita o luna+o luna garantie la momentul inchirierii.(400+400 euro).Pentru mai multe detalii ma puteti contacta telefonic/WhatsApp.
Citește mai mult Citește mai puțin
Decomandat

Detalii apartament

ID anunț: 4066542 Actualizat în: 03 Aprilie 2026
Nr. camere: 1
Suprafață utilă: 38 mp
Suprafață utilă totală: 38 mp
Compartimentare: Decomandat
Etaj: Etaj 4 / 7
An construcție: 2025
Regim înălțime: P+7E

Istoric preț

Puncte de interes

Mijloace transport
transport
Statia IMGB Poarta 2, linia 125, metrou M2
Mijloace transport aprox. 528 m
transport
Berceni (M2)
Mijloace transport aprox. 545 m
transport
Statia IMGB Poarta 1 linia 125
Mijloace transport aprox. 724 m
transport
Dimitrie Leonida (M2)
Mijloace transport aprox. 844 m
Școală
education
Colegiul Tehnic Miron Nicolescu
Învățământ aprox. 1223 m
education
Grupul Industrial "Dacia"
Învățământ aprox. 1793 m
education
Scoala Gimnaziala Speciala Sfantul Nicolae
Învățământ aprox. 1906 m
education
Scoala cu clasele I-VIII nr. 2
Învățământ aprox. 1910 m
Recreere
shopping
Nonni
Supermarket/Mall aprox. 101 m
shopping
Amedeea Store
Supermarket/Mall aprox. 231 m
parks
Parc
Recreere aprox. 429 m
restaurants
Pizza Italia
Restaurante aprox. 431 m

Proprietăți similare

Garsonieră în Central
400 € / lună
Județul Ilfov, Popești-Leordeni
1 camere
37 mp
Etaj 2
Garsonieră decomandată în Central
399 € / lună
Județul Ilfov, Popești-Leordeni
1 camere
35 mp
Etaj 1
Garsonieră în Central
400 € / lună
Județul Ilfov, Popești-Leordeni
1 camere
41 mp
Etaj 6
Garsonieră decomandată în Central
400 € / lună
Județul Ilfov, Popești-Leordeni
1 camere
40 mp
Garsonieră decomandată în Central
380 € / lună
Județul Ilfov, Popești-Leordeni
1 camere
31 mp
Etaj 6
Garsonieră decomandată în Central
392 € / lună
Județul Ilfov, Popești-Leordeni
1 camere
55 mp
Garsonieră decomandată în Central
380 € / lună
Județul Ilfov, Popești-Leordeni
1 camere
34 mp
Etaj 1
Garsonieră în Central
400 € / lună
Județul Ilfov, Popești-Leordeni
1 camere
37 mp
Etaj 1
Garsonieră, mobilată în Central
400 € / lună
Județul Ilfov, Popești-Leordeni
1 camere
40 mp
Etaj 4

Abonează-te la newsletter să fii primul care primește cele mai noi recomandări de proprietăți și sfaturi de la experți.