Duplex modern de vânzare în Urseni – 116 mp utili - Comision 0

145.000 €

Urseni, Judeţul Timiş

Nr. camere:
4
Suprafață utilă:
116 mp
Suprafață teren:
300 mp

Descriere casă

Valabil doar jumătatea stângă!
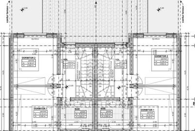
Proprietate de tip duplex, construită cu atenție la detalii și materiale de calitate, situată într-o zonă liniștită din Urseni. Imobilul oferă o compartimentare excelentă și dotări premium, fiind ideal pentru o familie care dorește confort, spațiu și eficiență energetică. Aproape de viitoare străzi principale in Urseni. Caracteristici generale: • Suprafață utilă: 116 mp • Teren: 300 mp • Living spațios • Bucătărie separată • Baie la parter • Spațiu sub scară • Spațiu tehnic • Terasă de 14 mp • Dormitor matrimonial cu dressing și baie proprie cu cadă • Baie suplimentară la etaj cu duș Dotări și finisaje: • Sistem de climatizare - clime puse de viitori proprietari • Sistem de iluminat exterior - fara lustre • Sistem de camere - camerele nu sunt suportate de dezvoltator • Sisteme Grohe în băi • Gresie și uși la alegere în buget, înainte de finalizare • Drum pietruit • Exterior amprentat Construcție și eficiență energetică: • Încălzire prin pompă de căldură • Fosa septică 2T • Izolație exterioară de 15 cm • Geamuri tripan • Vată minerală de 5 cm în tavane • Izolație la etaj: polistiren 15 cm, șapă + 3 straturi bituminoase • Izolație între unități: BCA 25 cm + vată bazaltică pe ambele părți Preț: 145.000 euro Termen de finalizare: Ianuarie Proprietatea reprezintă o oportunitate excelentă pentru cei care caută o casă bine construită, eficientă energetic și configurată modern. Pentru informații suplimentare sau programări la vizionare, vă stau la dispoziție.
Citește mai mult Citește mai puțin

Detalii casă

ID anunț: 2728042 Actualizat în: 23 Martie 2026
Nr. camere: 4
Suprafață utilă: 116 mp
Suprafață utilă totală: 116 mp
Nr. băi: 2
Suprafață teren: 300 mp
An construcție: 2025

Istoric preț

Facilități

Utilități
Curent Apă Canalizare Fosa septică Cablu
Internet
Cablu
Amenajare străzi
Mijloace de transport în comun Pietruite

Puncte de interes

Mijloace transport
transport
Halta Urseni hc
Mijloace transport aprox. 1019 m
transport
Halta Urseni
Mijloace transport aprox. 1023 m
Recreere
parks
Stadion Urseni
Recreere aprox. 1575 m

Proprietăți similare

Duplex cu 4 camere cu Teren 295 Mp în Urseni
158.000 €
Județul Timiș, Urseni
4 camere
100 mp
295 mp teren
Duplex cu 5 camere cu Teren 300 Mp în Urseni
144.990 €
Județul Timiș, Urseni
5 camere
116 mp
300 mp teren
Duplex cu 3 camere cu Teren 300 Mp în Urseni
139.000 €
Județul Timiș, Urseni
3 camere
72 mp
300 mp teren
Duplex cu 4 camere cu Canalizare în Urseni
146.990 €
Județul Timiș, Urseni
4 camere
95 mp
255 mp teren
Duplex cu 3 camere cu Canalizare în Urseni
136.990 €
Județul Timiș, Urseni
3 camere
72 mp
250 mp teren
Duplex cu 3 camere cu Teren 337 Mp în Urseni
145.800 €
Județul Timiș, Urseni
3 camere
95 mp
337 mp teren
Duplex cu 3 camere cu Canalizare în Urseni
147.990 €
Județul Timiș, Urseni
3 camere
75 mp
310,5 mp teren
Duplex cu 4 camere cu Canalizare în Urseni
139.000 €
Județul Timiș, Urseni
4 camere
95 mp
255 mp teren
Duplex cu 4 camere cu Canalizare în Urseni
137.000 €
Județul Timiș, Urseni
4 camere
123 mp
264 mp teren

Abonează-te la newsletter să fii primul care primește cele mai noi recomandări de proprietăți și sfaturi de la experți.