COMISION 0% Duplex de tip insiruit, 4 camere, la stadiul de gri - zona Lipovei

255.162 €

Lipovei, Timişoara

Nr. camere:
4
Suprafață utilă:
118,68 mp
Suprafață teren:
186 mp

Descriere casă

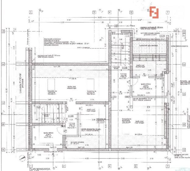
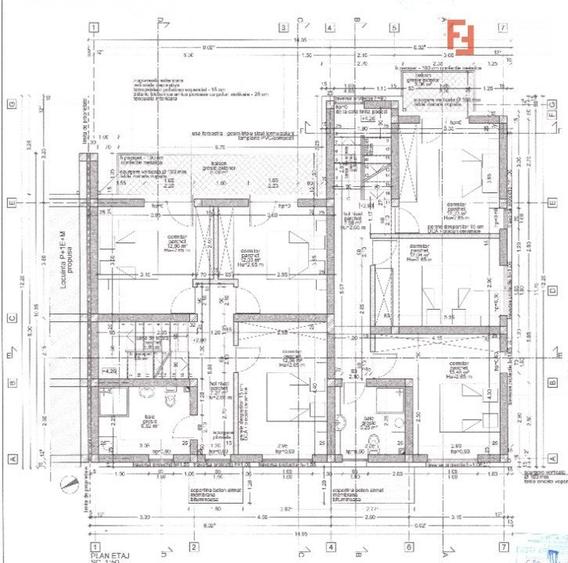
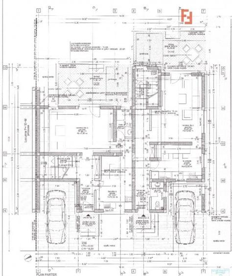
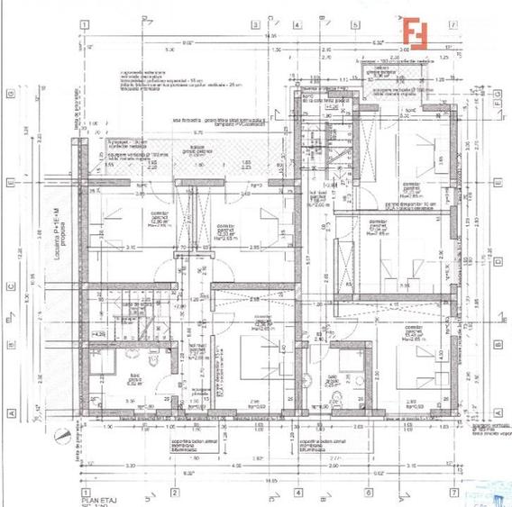
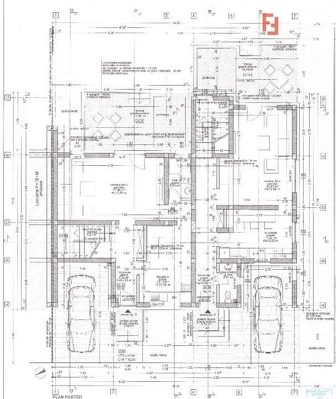
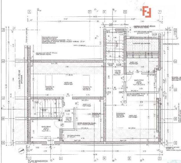
Duplex cu 4 camere de vanzare in Timisoara, zona Lipovei Descopera noul proiect de duplexuri moderne din zona de nord a orasului. FOXFORT propune spre vanzare acest ansamblu de duplexuri insiruite, construite in 2025, care iti ofera oportunitatea perfecta de a-ti crea locuinta de vis, asa cum iti doresti. Cu un design modern si spatii generoase, ai posibilitatea de a achizitiona locuinta la stadiul de gri, avand libertatea de a alege finisajele care sa reflecte stilul tau propriu. Este vorba despre o casa tip duplex insiruit, cu un regim de inaltime Parter + Etaj + Mansarda, care are 4 camere, 2 bai, balcon, terasa, o suprafata utila de 118,68 mp si teren in suprafata de 186 mp. Structura este din beton, zidarie din caramida Porotherm, pereti de compartimentare din caramida de 15 cm, izolatie exterioara cu polistiren expandat de 15 cm. Imobilul dispune de urmatoarele utilitati: curent electric, apa, canalizare, gaz, CATV, telefon, acces internet, fibra optica. Terasa are suprafata de 12 mp. Lungimea frontului stradal este de 8 ml. Compartimentare: Parter: hol, living, baie, bucatarie, terasa; Etaj: hol, 3 dormitoare, baie, balcon; Mansarda: camera tehnica + spatiu neamenajat. Finisaje interioare moderne: Usa de la intrare: PVC; Tamplarie: PVC, geam tripan cu strat termoizolant; Podele: nefinisate. Duplexul se preda la stadiul de gri: fara glet/lavabil, fara usi interioare, fara prize/intrerupatoare, fara obiecte sanitare, fara gresie/parchet. Se va preda cu instalatiile facute, 3 aparate de aer conditionat (AC) nemontate, cablare pentru sistem de monitorizare video si sistem de alarma, plus 1 loc de parcare. Imobilul dispune de centrala proprie cu incalzire prin pardoseala. Mansarda nu este inclusa in suprafata utila si se va preda la stadiul de gri, la pretul suplimentar de 15.000€. Pret: 255.162€ – COMISION 0%. Se accepta plata doar din surse proprii. Daca visezi la o locuinta personalizata intr-o zona de top, acest proiect este alegerea ideala. Contacteaza-ne pentru mai multe detalii si programeaza o vizionare chiar astazi. ID intern: V8133
Citește mai mult Citește mai puțin
Nemobilat Curte Aer condiționat Centrală proprie

Detalii casă

ID anunț: 22207 Actualizat în: 02 Februarie 2026
Nr. camere: 4
Suprafață utilă: 118,68 mp
Suprafață utilă totală: 118,68 mp
Nr. băi: 2
Suprafață teren: 186 mp
Front stradal: 8 m
An construcție: 2025
Regim înălțime: P+1E

Istoric preț

Facilități

Contorizare
Apometre Contor gaz
Mobilat
Nemobilat
Diverse
Scară interioară
Facilități imobil
Curte
Utilități
Curent Apă Canalizare Gaze
Sistem încălzire
Centrală proprie
Climatizare
Aer condiționat
Ușă intrare
PVC
Uși interior
PVC Panel
Izolații termice
Exterior
Ferestre cu geam termopan
PVC
Amenajare străzi
Asfaltate De pământ Iluminat stradal Mijloace de transport în comun

Puncte de interes

Mijloace transport
transport
U.T.T.
Mijloace transport aprox. 560 m
transport
Statie Institutul Agronomic E1, T17
Mijloace transport aprox. 589 m
transport
Statie U.T.T. E1, T17
Mijloace transport aprox. 625 m
transport
U.T.T.
Mijloace transport aprox. 625 m
Școală
education
Grup Scolar Agricol "Iulian Dracea" Timisoara
Învățământ aprox. 445 m
education
Grup Scolar Agricol Iulian Dracea
Învățământ aprox. 447 m
education
Kids Club Allegria
Învățământ aprox. 727 m
education
Universitatea de Stiinte Agricole si Medicina Veterinara a Banatului
Învățământ aprox. 752 m
Recreere
restaurants
Franceasca
Restaurante aprox. 287 m
parks
Teren sportiv
Recreere aprox. 449 m
shopping
Penny market
Supermarket/Mall aprox. 492 m
shopping
Auchan
Supermarket/Mall aprox. 531 m

Proprietăți similare

Duplex cu 3 camere cu Canalizare în Lipovei
263.000 €
Timișoara, Lipovei
3 camere
162 mp
249 mp teren
Duplex cu 5 camere cu Canalizare în Lipovei
249.000 €
Timișoara, Lipovei
5 camere
220 mp
140 mp teren
Duplex cu 7 camere cu Canalizare în Lipovei
265.000 €
Timișoara, Lipovei
7 camere
176 mp
290 mp teren
Duplex cu 4 camere cu Canalizare în Exterior Nord
230.000 €
Timișoara, Exterior Nord
4 camere
109 mp
249,57 mp teren
Duplex cu 4 camere cu Canalizare în Aeroport
275.000 €
Timișoara, Aeroport
4 camere
125 mp
400 mp teren
Duplex cu 4 camere cu Canalizare în Exterior Nord
250.000 €
Timișoara, Exterior Nord
4 camere
121 mp
285 mp teren
Duplex cu 4 camere cu Canalizare în Calea Urseni
229.700 €
Timișoara, Calea Urseni
4 camere
82 mp
250 mp teren
Duplex cu 5 camere cu Canalizare în Mehala
272.000 €
Timișoara, Mehala
5 camere
100 mp
215 mp teren
Duplex cu 4 camere cu Canalizare în Ghirodei
235.000 €
Timișoara, Ghirodei
4 camere
137 mp
300 mp teren

Abonează-te la newsletter să fii primul care primește cele mai noi recomandări de proprietăți și sfaturi de la experți.