COMISION 0%. Duplex in Braytim. Asfalt. Langa Musicescu.

189.900 €

Braytim, Timişoara

Nr. camere:
4
Suprafață utilă:
101 mp
Suprafață teren:
250 mp

Descriere casă

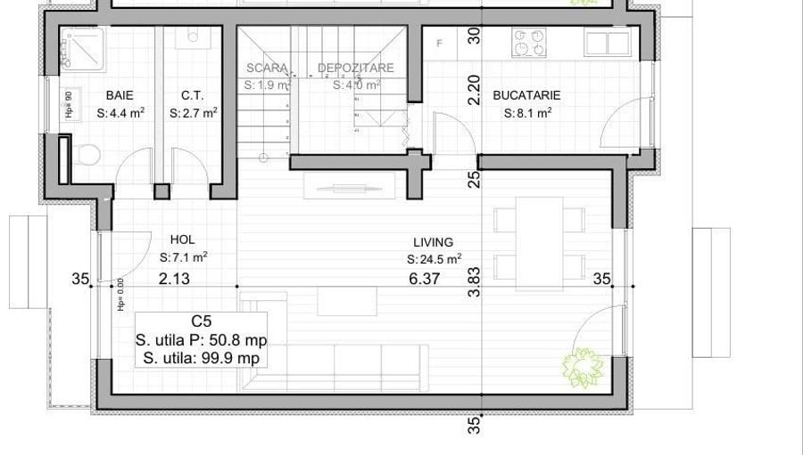
Detalii RELEVANTE oferta : - DUPLEX in zona Braytim, cu regim de inaltime Parter + Etaj. - suprafata utila de 101 mp plus terasa de 15 mp, si 2 balcoane. - teren de 250 mp, cu front stradal de 12 m. - detalii constructie : ziduri exterioare si interioare din caramida porotherm, termoizolata exterior, acoperis terasat. - compartimentare: - parter : hol acces, bucatarie + camara, camera de zi, baie, camera tehnica, terasa; - etaj : hol acces, 3 dormitoare, baie, 2 balcoane. - detalii AMENAJARE interioara : parchet laminat, gresie, faianta, ferestre cu tamplarie PVC si geam tripan, usa PVC la intrare, usi interioare noi, vopsea lavabila, corpuri sanitare noi. SE POT ALEGE FINISAJELE. - CENTRALA termica PROPRIE cu incalzire prin pardoseala - 2 locuri de parcare inscrise in CF Detalii suplimentare : teren imprejmuit, drum asfaltat. - dispune de toate utilitatile (apa, gaz, canal, curent), drumul de acces fiind asfaltat. Detalii pret : Pretul solicitat este in functie de model si incepe de la 189.900 Eur, negociabil. In pret sunt incluse locurile de parcare. Se accepta si varianta de achizitionare prin intermediul unui credit bancar. Informatii Certificat Energetic: - Clasa energetica : A .
Citește mai mult Citește mai puțin
Grădină Centrală proprie

Detalii casă

ID anunț: 2537 Actualizat în: 27 Ianuarie 2026
Nr. camere: 4
Suprafață utilă: 101 mp
Suprafață utilă totală: 101 mp
Nr. băi: 2
Suprafață teren: 250 mp
An construcție: 2026
Regim înălțime: P+1E

Istoric preț

Facilități

Pereți
Faianță Vopsea lavabilă
Podele
Gresie Parchet
Ușă intrare
Parchet PVC
Izolații termice
Exterior
Ferestre cu geam termopan
PVC
Contorizare
Apometre Contor gaz
Alte spații utile
WC Serviciu
Dotări imobil
Grădină
Utilități
Curent Apă Canalizare Gaze Cablu
Sistem încălzire
Centrală proprie
Acces internet
Cablu
Amenajare străzi
Iluminat stradal Mijloace de transport în comun Asfaltate

Puncte de interes

Mijloace transport
transport
Apicultorilor
Mijloace transport aprox. 1189 m
transport
Statie Apicultorilor E3
Mijloace transport aprox. 1190 m
transport
Giroceana
Mijloace transport aprox. 1230 m
transport
Giroceana
Mijloace transport aprox. 1285 m
Școală
education
CENTRU REGIONALDE PREGATIRE PROFESIONALA PENTRU MAGISTRATI, GIROC, tIMISOARA
Învățământ aprox. 1025 m
education
Gradinita Goghita
Învățământ aprox. 1487 m
education
Institutul de Cercetari pentru Energii Regenerabile
Învățământ aprox. 1520 m
education
Piticii din Vest
Învățământ aprox. 1537 m
Recreere
parks
Viitor Parc Braytim
Recreere aprox. 1067 m
restaurants
Arizona
Restaurante aprox. 1172 m
shopping
Lidl
Supermarket/Mall aprox. 1720 m
shopping
Carrefour Market
Supermarket/Mall aprox. 1836 m

Proprietăți similare

Duplex cu 5 camere cu Canalizare în Braytim
204.990 €
Timișoara, Braytim
5 camere
120 mp
170 mp teren
Duplex cu 4 camere cu Canalizare în Aradului
206.432 € + TVA
Timișoara, Aradului
4 camere
113 mp
345 mp teren
Duplex cu 5 camere cu Teren 220 Mp în Mehala
190.000 €
Timișoara, Mehala
5 camere
100 mp
220 mp teren
Duplex cu 4 camere cu Teren 300 Mp în Calea Urseni
199.990 €
Timișoara, Calea Urseni
4 camere
105 mp
300 mp teren
Duplex cu 4 camere cu Canalizare în Calea Urseni
180.000 €
Timișoara, Calea Urseni
4 camere
128 mp
273 mp teren
Duplex cu 5 camere cu Canalizare în Mehala
188.700 €
Timișoara, Mehala
5 camere
97,26 mp
218 mp teren
Duplex cu 5 camere cu Canalizare în Mehala
185.000 €
Timișoara, Mehala
5 camere
96 mp
220 mp teren
Duplex cu 5 camere cu Canalizare în Mehala
184.000 €
Timișoara, Mehala
5 camere
96 mp
220 mp teren
Duplex cu 4 camere cu Canalizare în Mehala
184.990 €
Timișoara, Mehala
4 camere
97 mp
218 mp teren

Abonează-te la newsletter să fii primul care primește cele mai noi recomandări de proprietăți și sfaturi de la experți.