Casa renovata recent - Premium cu Dubla Destinatie - Sibiu

390.000 €

Vasile Aaron, Sibiu

Nr. camere:
5
Suprafață utilă:
146,19 mp
Suprafață teren:
296 mp

Descriere casă

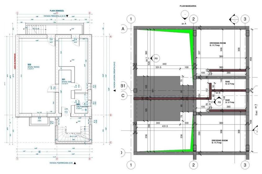
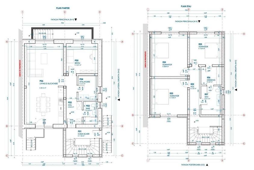
Unele proprietati se cumpara. Altele se aleg. Pe strada Vasile Aaron, în Sibiu, se afla o proprietate care ofera mai mult decât metri patrati: ofera libertatea de a crea exact spatiul pe care îl imaginezi. O casa tip duplex complet renovata, construita cu atentie la detalii si pregatita pentru personalizare, fie ca vorbim despre o resedinta sofisticata, fie despre un sediu reprezentativ. Pozitionata strategic, proprietatea asigura: – acces rapid catre centrul orasului – proximitate fata de institutii, scoli si zone comerciale – infrastructura complet dezvoltata – conectivitate excelenta Este combinatia rara dintre confort rezidential si potential profesional. Arhitectura functionala | D+P+E+Pod | Suprafata teren: 296 mp | Garaj propriu | Acces auto în curte + locuri în fata portii Demisol: Doua spatii tehnice si baie – perfect integrate pentru functionalitate discreta. Parter: Living cu bucatarie open-space, dormitor sau birou, baie, spatiu tehnic. Un spatiu aerisit, luminos, pregatit sa devina zona de zi sau zona de reprezentare. Etaj: Trei dormitoare, baie si dressing. O compartimentare echilibrata, care ofera intimitate si confort. Pod: Spatiu generos, ce poate fi transformat într-o zona privata, studio, birou executiv sau lounge. Calitate care nu se vede doar la suprafata Proprietatea a fost renovata integral cu materiale premium si este însotita de: carte tehnica documentatie completa fotografii din toate etapele constructiei Se preda la gri — un avantaj pentru cei care îsi doresc un rezultat personalizat, fara compromisuri. Pentru un plus de confort, poate fi pusa la dispozitie o echipa dedicata pentru amenajare completa, astfel încât fiecare detaliu sa reflecte standardele dorite. O proprietate cu dubla vocatie – Resedinta pentru o familie care îsi doreste spatiu, stabilitate si pozitionare excelenta – Sediu premium pentru antreprenori care cauta un spatiu reprezentativ, cu acces facil si imagine profesionala Aceasta nu este doar o casa, este o proprietate pregatita sa devina exact ceea ce vrei tu sa fie. Pentru informatii suplimentare si programarea unei vizionari private, te invit sa ma contactezi.
Citește mai mult Citește mai puțin
Grădină Termoficare

Detalii casă

ID anunț: 3739317 Actualizat în: 05 Martie 2026
Nr. camere: 5
Suprafață utilă: 146,19 mp
Suprafață utilă totală: 146,19 mp
Nr. băi: 3
Suprafață teren: 296 mp
Front stradal: 12.5 m
An construcție: 2026
Regim înălțime: P+1E

Istoric preț

Facilități

Utilități
Curent Apă Canalizare Gaze
Sistem încălzire
Termoficare
Diverse
Scară interioară
Alte spații utile
Spațiu depozitare Dressing WC Serviciu Anexe Dependințe
Facilități imobil
Grădină
Amenajare străzi
Asfaltate Iluminat stradal Mijloace de transport în comun
Izolații termice
Exterior

Puncte de interes

Mijloace transport
transport
Liceul Energetic
Mijloace transport aprox. 55 m
transport
Cofetaria Narcisa
Mijloace transport aprox. 105 m
transport
Peco Milea
Mijloace transport aprox. 313 m
transport
Vasile Milea 2
Mijloace transport aprox. 337 m
Școală
education
Liceul Energetic
Învățământ aprox. 218 m
education
Scoala Generala Nr. 24
Învățământ aprox. 439 m
education
Gradinita Nr. 14
Învățământ aprox. 559 m
education
Scoala generala nr. 21
Învățământ aprox. 878 m
Recreere
restaurants
Super Mamma
Restaurante aprox. 75 m
parks
Parcul Vasile Aaron
Recreere aprox. 356 m
shopping
XXL
Supermarket/Mall aprox. 409 m
shopping
Kaufland
Supermarket/Mall aprox. 430 m

Proprietăți similare

Duplex cu 4 camere cu Teren 264 Mp în Tineretului
395.000 €
Sibiu, Tineretului
4 camere
180 mp
264 mp teren
Duplex cu 4 camere cu Canalizare în Trei Stejari
399.000 €
Sibiu, Trei Stejari
4 camere
163 mp
548 mp teren
Duplex cu 3 camere cu Canalizare în Calea Dumbrăvii
380.000 €
Sibiu, Calea Dumbrăvii
3 camere
101 mp
242 mp teren
Duplex cu 4 camere cu Canalizare în Calea Poplăcii
395.000 €
Sibiu, Calea Poplăcii
4 camere
128 mp
475 mp teren
Duplex cu 4 camere cu Garaj în Calea Dumbrăvii
359.000 €
Sibiu, Calea Dumbrăvii
4 camere
122 mp
427 mp teren
Duplex cu 3 camere cu Canalizare în Calea Dumbrăvii
380.000 €
Sibiu, Calea Dumbrăvii
3 camere
132 mp
270 mp teren
Duplex cu 4 camere cu Canalizare în Tineretului
395.000 €
Sibiu, Tineretului
4 camere
160 mp
400 mp teren
Duplex cu 5 camere cu Canalizare în Calea Poplăcii
400.000 €
Sibiu, Calea Poplăcii
5 camere
200 mp
199 mp teren
Duplex cu 6 camere cu Canalizare în Cristian
380.000 € + TVA
Județul Sibiu, Cristian
6 camere
206 mp
900 mp teren

Abonează-te la newsletter să fii primul care primește cele mai noi recomandări de proprietăți și sfaturi de la experți.