Casă premium | Pipera – Voluntari | Str. Matei Millo

349.000 €

Pipera, Bucureşti

Nr. camere:
5
Suprafață utilă:
186 mp
Suprafață teren:
250 mp

Descriere casă

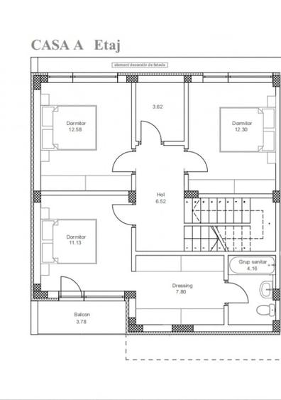
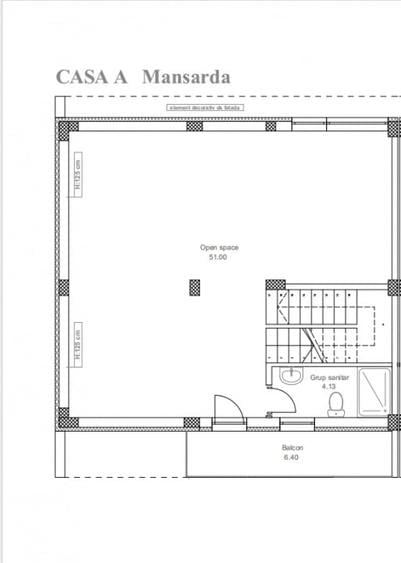
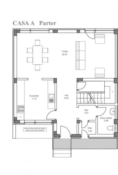
Descoperă o casă tip duplex, construită cu accent real pe calitate, eficiență energetică și detalii tehnice, amplasată într-o zonă liniștită din Pipera – Voluntari, pe stradă privată, retrasă de la traficul intens. 🔹 Suprafață utilă: 186 mp 🔹 Teren: 250 mp 🔹 Regim de înălțime: P + 1 + Mansardă 🔹 An finalizare: 2026 🔹 Locuri de parcare: 2 📐 Compartimentare practică și echilibrată Parter Hol de acces Living generos cu zonă de dining Bucătărie separată Baie Etaj 3 dormitoare 2 băi (inclusiv dormitor matrimonial) Mansardă Spațiu open-space (ideal birou, hobby, zonă de relaxare) baie Exterior Curte proprie de 250 mp Terasă Stradă privată, liniște și intimitate Acces rapid către zonele de interes din Pipera și nordul Capitalei ⚙️ Detalii tehnice & calitate construcție ✔ Cablu electric CYYF ignifug ✔ Branșament electric 380V ✔ Pregătire pentru pompă de căldură ✔ Izolație exterioară EPS 100 – 15 cm ✔ Certificat de Performanță Energetică – Clasa A ✔ Construcție solidă, bine executată, cu atenție la detalii
Citește mai mult Citește mai puțin
Centrală proprie

Detalii casă

ID anunț: 3239816 Actualizat în: 13 Martie 2026
Nr. camere: 5
Suprafață utilă: 186 mp
Suprafață utilă totală: 186 mp
Nr. băi: 4
Suprafață teren: 250 mp
An construcție: 2026
Regim înălțime: P+2E

Istoric preț

Facilități

Utilități
Curent Apă Canalizare Gaze
Sistem încălzire
Centrală proprie
Izolații termice
Exterior

Puncte de interes

Mijloace transport
transport
Pipera Drumul Bisericii
Mijloace transport aprox. 343 m
Școală
education
Scoala Nr.3 Voluntari
Învățământ aprox. 332 m
education
Echilibria 1
Învățământ aprox. 558 m
education
Gradinita Happy Univers
Învățământ aprox. 780 m
education
Gradinita Zece
Învățământ aprox. 812 m
Recreere
restaurants
Zona Pensiunii Pipera(b-dul Pipera)
Restaurante aprox. 306 m
parks
Pipera
Recreere aprox. 557 m
shopping
Carrefour Market Pipera
Supermarket/Mall aprox. 621 m
shopping
Mega Image Pipera
Supermarket/Mall aprox. 754 m

Proprietăți similare

Duplex cu 4 camere cu Canalizare în Pipera
350.000 €
București, Pipera
4 camere
127 mp
374 mp teren
Duplex cu 5 camere cu Canalizare în Pipera
360.000 €
București, Pipera
5 camere
260 mp
300 mp teren
Duplex cu 7 camere cu Canalizare în Pipera
330.000 € + TVA
București, Pipera
7 camere
227 mp
255 mp teren
Duplex cu 5 camere cu Canalizare în Pipera
348.326 € + TVA
București, Pipera
5 camere
140 mp
240 mp teren
Duplex cu 4 camere cu Canalizare în Pipera
365.000 €
București, Pipera
4 camere
229 mp
416 mp teren
Duplex cu 6 camere cu Canalizare în Pipera
365.000 €
București, Pipera
6 camere
345 mp
464,66 mp teren
Duplex cu 5 camere cu Canalizare în Pipera
358.500 €
București, Pipera
5 camere
260 mp
350 mp teren
Duplex cu 4 camere cu Teren 375 Mp în Pipera
349.000 €
București, Pipera
4 camere
140 mp
375 mp teren
Duplex cu 5 camere cu Canalizare în Pipera
360.000 €
București, Pipera
5 camere
260 mp
350 mp teren

Abonează-te la newsletter să fii primul care primește cele mai noi recomandări de proprietăți și sfaturi de la experți.