Casă cu arhitectura contemporana în Bucureștii Noi – 2 apartamente independente

790.000 €

Chitila, Bucureşti

Nr. camere:
5
Suprafață utilă:
217 mp
Suprafață teren:
250 mp

Descriere casă

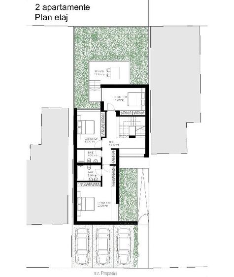
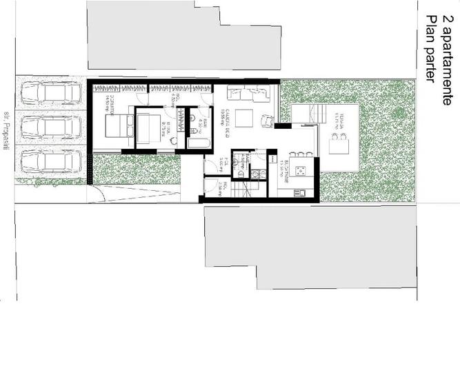
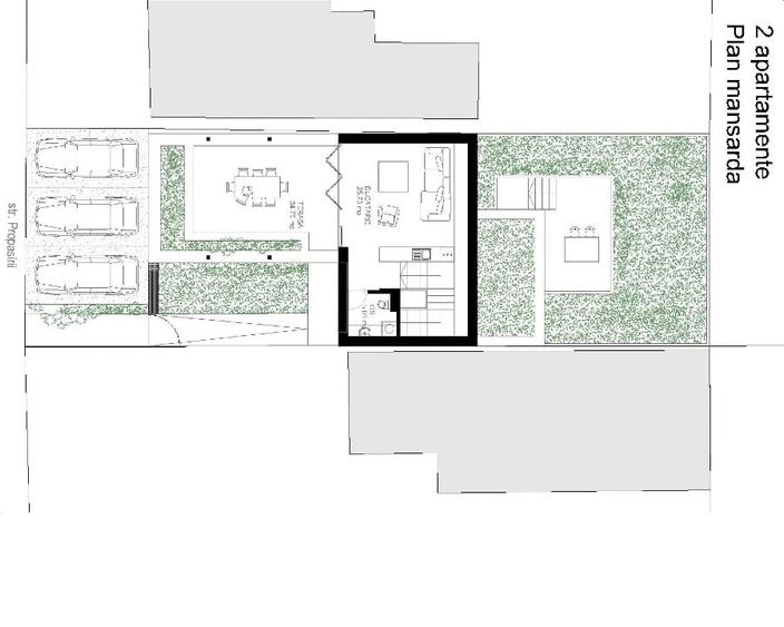
O proprietate rară în zona Bucureștii Noi, concepută pentru a oferi două unități locative complet independente, fiecare cu spații generoase și intimitate proprie. Situată într-o zonă liniștită de case, în apropiere de Bd. Laminorului, la doar câteva minute de metrou, parc și zone comerciale. ________________________________________ Detalii generale: • Suprafață utilă: 217 mp • Suprafață construită: 262 mp • Teren: 250 mp • Regim: Parter + Etaj + Mansardă • An construcție: 2026 (în curs de finalizare) ________________________________________ Compartimentare inteligentă – 2 apartamente reale Parter – apartament independent + curte proprie • Dormitor • Birou • Living • Bucătărie • 2 băi • Curte proprie de 65 mp Ideal pentru: • părinți / familie extinsă • închiriere separată • birou + locuință ________________________________________ Etaj + Mansardă – apartament spațios • 3 dormitoare • 3 băi • Living cu bucătărie open space • Terasă de 25 mp Perfect pentru o familie numeroasă sau locuire premium ________________________________________ Parcare • 3 locuri de parcare ________________________________________ Locație excelentă: • 5–10 min mers pe jos până la: o Metrou Laminorului o Parcul Bazilescu o Colosseum Mall • Stație autobuz la 200 m • Zonă de case, liniștită, cu multă vegetație ________________________________________ Construcție & dotări: • Structură în cadre de beton armat • Pereți exteriori din BCA • Pompă de căldură • Încălzire în pardoseală • Finisaje la alegerea clientului ________________________________________ Concept & avantaje: • Două locuințe complet funcționale într-o singură proprietate • Ideal pentru locuire + venit pasiv • Potrivit pentru două familii sau familie extinsa • Costuri reduse de întreținere (eficiență energetică ridicată)
Citește mai mult Citește mai puțin
Nemobilat Aer condiționat

Detalii casă

ID anunț: 3918193 Actualizat în: 22 Martie 2026
Nr. camere: 5
Suprafață utilă: 217 mp
Suprafață utilă totală: 217 mp
Nr. băi: 4
Suprafață teren: 250 mp
An construcție: 2026
Regim înălțime: P+2E

Istoric preț

Facilități

Utilități
Canalizare Gaze
Climatizare
Aer condiționat
Mobilat
Nemobilat

Puncte de interes

Mijloace transport
transport
Statia Mezes linia 45
Mijloace transport aprox. 255 m
transport
Capat Mezes linii : 45,112.
Mijloace transport aprox. 265 m
transport
Statia Mihai Viteazul linia 112
Mijloace transport aprox. 305 m
transport
Statia Marmurei / Subcetate, linia N118,45
Mijloace transport aprox. 691 m
Școală
education
Scoala Nr. 184
Învățământ aprox. 282 m
education
Scoala Generala nr 183 Bucuresti
Învățământ aprox. 585 m
education
Scoala Generala Nr. 183
Învățământ aprox. 592 m
education
Gradinita de copii nr.46
Învățământ aprox. 702 m
Recreere
parks
Parc
Recreere aprox. 163 m
shopping
City Shop Non-Stop
Supermarket/Mall aprox. 270 m
shopping
Supermarket NIC
Supermarket/Mall aprox. 714 m
restaurants
Cafe Bar
Restaurante aprox. 951 m

Proprietăți similare

Duplex cu 12 camere cu Canalizare în Băneasa
790.000 €
București, Băneasa
12 camere
587 mp
520 mp teren
Duplex cu 5 camere cu Garaj în Pipera
750.000 €
București, Pipera
5 camere
223 mp
300 mp teren
Duplex cu 8 camere cu Teren 250 Mp în Iancu Nicolae
770.000 € + TVA
București, Iancu Nicolae
8 camere
300 mp
250 mp teren
Duplex cu 4 camere cu Canalizare în Dorobanți
790.000 €
București, Dorobanți
4 camere
132,3 mp
165 mp teren
Duplex cu 5 camere cu Canalizare în Pipera
750.000 € + TVA
București, Pipera
5 camere
275 mp
244 mp teren
Duplex cu 6 camere cu Canalizare în Băneasa
789.000 €
București, Băneasa
6 camere
300 mp
400 mp teren
Duplex cu 4 camere cu Canalizare în Pipera
750.000 €
București, Pipera
4 camere
223 mp
335 mp teren
Duplex cu 6 camere cu Canalizare în Pipera
839.000 €
București, Pipera
6 camere
532 mp
538 mp teren
Duplex cu 5 camere cu Piscina în Pipera
774.900 €
București, Pipera
5 camere
160 mp
500 mp teren

Abonează-te la newsletter să fii primul care primește cele mai noi recomandări de proprietăți și sfaturi de la experți.