Duplex 2025,su 150mp, 4 dormitoare,living,3 bai,bucatarie,teren 300mp,2 parcari

250.000 €

Chitila, Bucureşti

Nr. camere:
5
Suprafață utilă:
150 mp
Suprafață teren:
300 mp

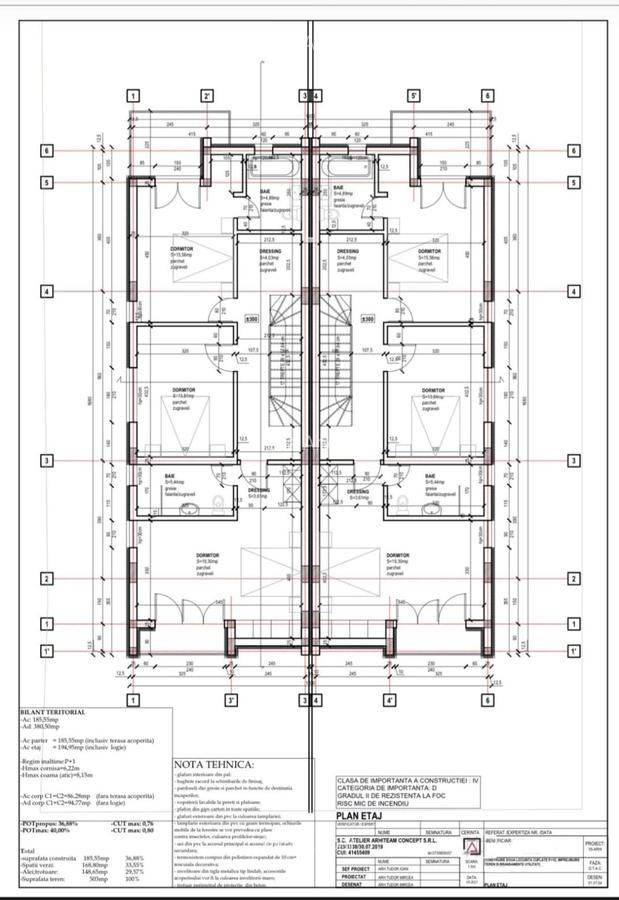
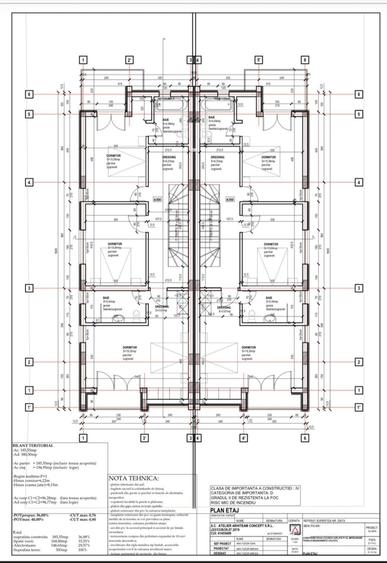
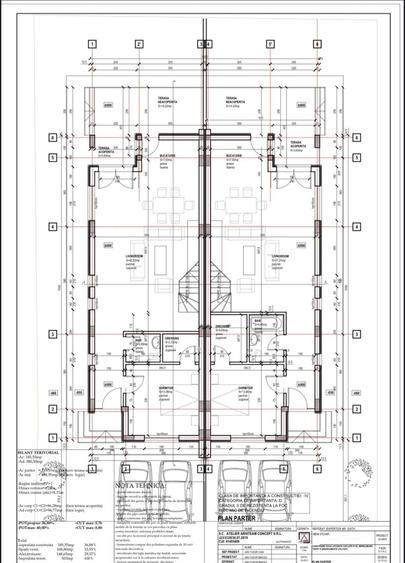
Descriere casă

Vila tip Duplex 2025, P+1, teren 300 mp cu 2 locuri de parcare in curte, perete dublu despartitor intre cele 2 vile, izolatie exterioara, suprafata utila 150 mp desfasurati astfel : PARTER : living open cu bucatarie (se poate inchide), dormitor, baie, dressing, 2 terase ETAJ: dormitor matrimonial cu baie proprie si dressing, dormitor cu baie proprie, dressing(se poate amenaja ca grup sanitar) Proprietatea dispune de toate utilitatile, contorizare separata. Structura din caramida Porotherm cu placa de beton inclusiv peste etaj. Tamplarie Salamander profil Premium,acoperisul este din lemn tratat acoperit cu tabla lindab, incalzire în pardoseala , podul este izolat cu spuma poliuretanica. Finisajele interioare se fac la alegerea cumparatorului, intr-un buget de 25000 euro. Casa de afla pe o strada linistita in vecinatatea Parcului Dendrologic si a Lacului Chitila. In zona se gasesc scoli, gradinite, centre comerciale, banci etc. Vilele se pot vinde separat sau intreg duplexul ( la un pret ce se poate discuta). Sau se pot vinde la schimb cu casa veche în Chitila sau Bucureștii Noi + diferența. Mai multe detalii la vizionare.
Citește mai mult Citește mai puțin
Nemobilat Grădină Centrală proprie Renovat

Detalii casă

ID anunț: 1978900 Actualizat în: 11 Martie 2026
Nr. camere: 5
Suprafață utilă: 150 mp
Suprafață utilă totală: 150 mp
Nr. băi: 3
Suprafață teren: 300 mp
An construcție: 2025
Regim înălțime: P+1E

Istoric preț

Facilități

Contorizare
Contor gaz Apometre
Mobilat
Nemobilat
Diverse
Telecomandă poartă acces auto
Alte spații utile
Dressing
Facilități imobil
Grădină amenajată
Utilități
Gaze Curent Canalizare Apă
Sistem încălzire
Centrală proprie
Ușă intrare
Metal Lemn
Uși interior
Lemn
Stare interior
Renovat
Izolații termice
Exterior
Ferestre cu geam termopan
Lemn Aluminiu
Amenajare străzi
Asfaltate Iluminat stradal Mijloace de transport în comun

Puncte de interes

Mijloace transport
transport
Gara Chitila
Mijloace transport aprox. 357 m
transport
Chitila
Mijloace transport aprox. 364 m
transport
Gara Chitila
Mijloace transport aprox. 377 m
transport
Halta CFR Depoul Bucuresti Triaj
Mijloace transport aprox. 1796 m
Recreere
shopping
LIDL Supermarket (en)
Supermarket/Mall aprox. 85 m
shopping
Lidl
Supermarket/Mall aprox. 94 m
parks
Parc
Recreere aprox. 230 m
restaurants
Restaurant Casa Vanatoreasca
Restaurante aprox. 1086 m

Proprietăți similare

Duplex cu 4 camere cu Canalizare în 1 Mai
225.000 €
București, 1 Mai
4 camere
96,9 mp
252,32 mp teren
Duplex cu 5 camere cu Canalizare în Străulești
245.000 € + TVA
București, Străulești
5 camere
95 mp
125 mp teren
Duplex cu 4 camere cu Canalizare în Bucureștii Noi
270.000 €
București, Bucureștii Noi
4 camere
150 mp
120 mp teren
Duplex cu 4 camere cu Teren 124.80000305176 Mp în Pipera
270.000 € + TVA
București, Pipera
4 camere
94,4 mp
124,8 mp teren
Duplex cu 5 camere cu Canalizare în Pipera
270.000 € + TVA
București, Pipera
5 camere
146 mp
200 mp teren
Duplex cu 4 camere cu Canalizare în Bucureștii Noi
260.000 €
București, Bucureștii Noi
4 camere
74,8 mp
400 mp teren
Duplex cu 5 camere cu Canalizare în Pipera
275.000 € + TVA
București, Pipera
5 camere
138,4 mp
280 mp teren
Duplex cu 4 camere cu Canalizare în Pipera
260.000 €
București, Pipera
4 camere
94,4 mp
138 mp teren
Duplex cu 4 camere cu Canalizare în Theodor Pallady
265.000 € + TVA
București, Theodor Pallady
4 camere
127 mp
132 mp teren

Abonează-te la newsletter să fii primul care primește cele mai noi recomandări de proprietăți și sfaturi de la experți.