Doua unitati tip Duplex, 127mp utili, 470mp teren +zona comuna, Sangeorgiu de Ms

185.000 €

Sângeorgiu de Mureş, Judeţul Mureş

Nr. camere:
4
Suprafață utilă:
127 mp
Suprafață teren:
470 mp

Descriere casă

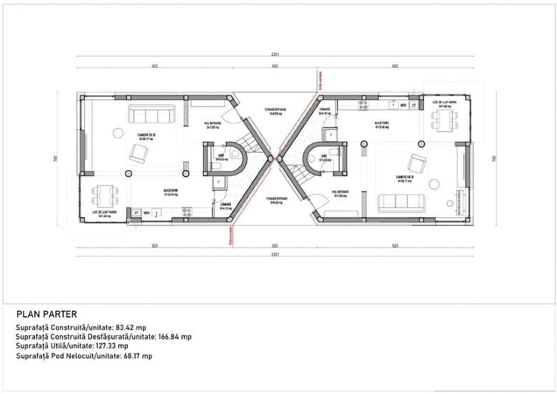
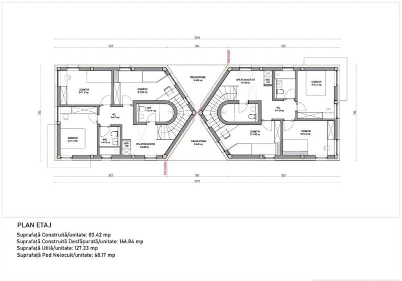
Persoana fizica oferă spre vânzare două case identice tip Duplex, situate în Sângeorgiu de Mureș, pe o strada asfaltata retrasă și liniștită. Fiecare unitate are o suprafață utilă de 127 mp și este amplasată pe un teren individual de 470 mp, respectiv 400mp, la care se adaugă cotă parte din drumul privat și spațiul comun de parcare (aproximativ 610 mp). Construcție solidă și eficientă energetic • Fundații din beton armat independente la fiecare casa • Pereti din zidărie de caramida cu stâlpișori, centuri si grinzi din beton armat • Izolație sub placă: polistiren extrudat 10 cm • Izolație fațadă: polistiren 15 cm • Acoperiș tip șarpantă • Izolatie de 10 cm din vata bazaltica intre pod si spatiul locuibil Confortul termic este asigurat prin încălzire în pardoseală, cu zone separate pentru parter și etaj, completată de portprosop în băi. Compartimentare Parter: • Hol de intrare • Bucătărie cu Loc de luat masa + Cămară • Living spațios • Baie de serviciu Etaj: • 3 dormitoare • 2 băi • Spațiu dedicat pentru birou sau spălătorie • Pod generos pentru depozitare Dotări și utilități: • Curent • Apă • Gaz • Canalizare • Rezervor WC încastrat in bai • Rigole pentru dușuri • Prize amplasate strategic pentru funcționalitate optimă • Fibra optica pentru internet Proprietățile sunt ideale pentru familii care își doresc o locuință modernă intr-o zona linistita . Proprietatile se vand semifinisat la 185.000Euro direct de la propritar. Pentru mai multe informații și programarea unei vizionări, vă stăm cu drag la dispoziție.
Citește mai mult Citește mai puțin

Detalii casă

ID anunț: 3700088 Actualizat în: 03 Martie 2026
Nr. camere: 4
Suprafață utilă: 127 mp
Suprafață utilă totală: 127 mp
Nr. băi: 3
Suprafață teren: 470 mp
An construcție: 2025
Regim înălțime: P+1E

Istoric preț

Puncte de interes

Mijloace transport
transport
Deal Sf. Gheorghe
Mijloace transport aprox. 494 m
transport
Strada Tofalau
Mijloace transport aprox. 508 m
transport
Deal Sf. Gheorghe
Mijloace transport aprox. 548 m
transport
Subdeal
Mijloace transport aprox. 675 m
Recreere
parks
Piata Sfantu Gheorghe
Recreere aprox. 518 m
restaurants
Pizza Vivi
Restaurante aprox. 520 m
parks
Teren sportiv
Recreere aprox. 1120 m
parks
Teren sportiv
Recreere aprox. 1129 m

Proprietăți similare

Duplex cu 6 camere cu Canalizare în 1 Decembrie 1918
185.000 €
Târgu Mureș, 1 Decembrie 1918
6 camere
161 mp
147 mp teren
Duplex cu 4 camere cu Canalizare în Unirii
179.900 €
Târgu Mureș, Unirii
4 camere
131 mp
440 mp teren
Duplex cu 4 camere cu Canalizare în Unirii
172.000 €
Târgu Mureș, Unirii
4 camere
102 mp
340 mp teren

Abonează-te la newsletter să fii primul care primește cele mai noi recomandări de proprietăți și sfaturi de la experți.