Jumate de duplex P+1 cu 4 camere de vanzare, Giarmata Vii

139.000 €

Giarmata-Vii, Judeţul Timiş

Nr. camere:
4
Suprafață utilă:
127 mp
Suprafață teren:
315 mp

Descriere casă

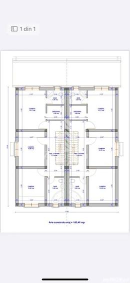
Apostu Estate vă propune spre vânzare jumătate de duplex P+M de 127 mp utili, cu teren de 315 mp, în localitatea Giarmata Vii. Duplexul este construit din cărămidă tip Porotherm, termoizolație exterioară din polistiren de 10 cm grosime EPS 80, placă de beton peste ambele niveluri, zid dublu despărțitor cu izolație de 5 cm grosime, acoperit cu țiglă, geamuri din tâmplărie premium cu sticlă tripan 4 anotimpuri. Duplexul este compartimentat astfel: La parter se află holul cu acces în toate camerele, living open-space cu bucătărie (dar bucătăria se poate închide), cameră dormitor/birou, baie, terasă cu cameră tehnică. La etaj se află holul cu acces în toate camerele, dormitor matrimonial cu dressing și baie, 2 dormitoare și baie. Utilități: apă curentă, canalizare, gaz, fibră optică. Drum: pietruit; casa se află la o distanță de 100 m față de drumul asfaltat. Casa se predă la rosu. Oferim consultanță și soluții financiare prin intermediul colaboratorilor noștri pentru a obține cel mai potrivit tip de credit. Vă așteptăm cu drag la vizionare! ID intern: CP2813999
Citește mai mult Citește mai puțin
Nemobilat Bine întreținut (Bună) Zonă rurală

Detalii casă

ID anunț: 2683674 Actualizat în: 23 Martie 2026
Nr. camere: 4
Suprafață utilă: 127 mp
Suprafață utilă totală: 127 mp
Nr. băi: 3
Suprafață teren: 315 mp
An construcție: 2025
Regim înălțime: P+1E

Istoric preț

Facilități

Pereți
Faianță Vopsea lavabilă
Podele
Gresie Parchet
Ușă intrare
Parchet Metal Lemn PVC
Uși interior
Lemn PVC
Stare interior
Stare bună
Izolații termice
Exterior
Ferestre cu geam termopan
Lemn PVC
Utilități
Curent Apă Canalizare Gaze
Mobilat
Nemobilat
Amenajare străzi
Asfaltate Pietruite

Puncte de interes

Mijloace transport
transport
Statie Giarmata Vii Complex M35
Mijloace transport aprox. 359 m
transport
Statie Giarmata Vii M35
Mijloace transport aprox. 462 m
transport
Statie Giarmata Vii Biserica M35
Mijloace transport aprox. 1085 m
transport
Macilor
Mijloace transport aprox. 1196 m

Proprietăți similare

Duplex cu 5 camere cu Canalizare în Giarmata-Vii
147.900 €
Județul Timiș, Giarmata-Vii
5 camere
114 mp
254 mp teren
Duplex cu 4 camere cu Canalizare în Giarmata-Vii
148.990 €
Județul Timiș, Giarmata-Vii
4 camere
94 mp
360 mp teren
Duplex cu 3 camere cu Canalizare în Moșnița Nouă
130.000 €
Județul Timiș, Moșnița Nouă
3 camere
70 mp
300 mp teren
Duplex cu 3 camere cu Teren 360 Mp în Săcălaz
147.000 €
Județul Timiș, Săcălaz
3 camere
110 mp
360 mp teren
Duplex cu 4 camere cu Canalizare în Moșnița Nouă
149.990 €
Județul Timiș, Moșnița Nouă
4 camere
90 mp
304 mp teren
Duplex cu 3 camere cu Teren 236 Mp în Bucovăț (Remetea Mare)
129.990 €
Județul Timiș, Bucovăț (Remetea Mare)
3 camere
70 mp
236 mp teren
Duplex cu 5 camere cu Canalizare în Giarmata
148.990 € + TVA
Județul Timiș, Giarmata
5 camere
120 mp
300 mp teren
Duplex cu 3 camere cu Canalizare în Moșnița Nouă
132.000 €
Județul Timiș, Moșnița Nouă
3 camere
86 mp
320 mp teren
Duplex cu 3 camere cu Canalizare în Utvin
138.990 €
Județul Timiș, Utvin
3 camere
72 mp
250 mp teren

Abonează-te la newsletter să fii primul care primește cele mai noi recomandări de proprietăți și sfaturi de la experți.