Dupex de vanzare, 120 mp utili, 150 mp de teren, zona Fagului

170.000 €

Floreşti, Judeţul Cluj

Nr. camere:
4
Suprafață utilă:
120 mp
Suprafață teren:
150 mp

Descriere casă

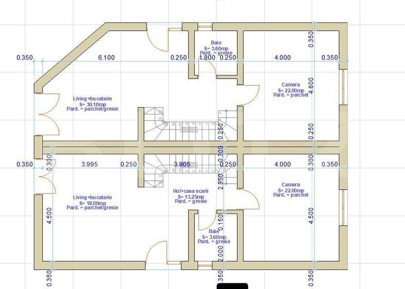
Blitz va propune o casa de vanzare casa din duplex cu 4 camere. Imobilul se preda semifinisat, cu pereti gletuiti, instalatii termice, electrice si sanitare finalizate, este situat intr-o zona de case, construit din caramida si izolat termic la exterior cu polistiren de 15 cm, dispune de centrala termica proprie, incalzire in pardoseala, . Este compartimentat astfel: Parter; hol, bucatarie cu living, 1 dormitor si baie. Etaj 1; hol, 2 dormitoare si 1 baie. Casa este in stadiul de constructie cu predate Octombrie 2026. !!! Pretul include TVA !!! Pentru mai multe detalii nu ezitati sa ne contactati. Cod oferta / ID BLITZ: P160119
Citește mai mult Citește mai puțin
Nemobilat

Detalii casă

ID anunț: 2730936 Actualizat în: 12 Martie 2026
Nr. camere: 4
Suprafață utilă: 120 mp
Suprafață utilă totală: 120 mp
Nr. băi: 2
Suprafață teren: 150 mp
Front stradal: 15 m
Regim înălțime: P+1E

Istoric preț

Facilități

Mobilat
Nemobilat

Puncte de interes

Mijloace transport
transport
M-Cartier Terra
Mijloace transport aprox. 802 m
transport
M-Prof. Dumitru Mocanu
Mijloace transport aprox. 1019 m
transport
M-Prof. Dumitru Mocanu E
Mijloace transport aprox. 1022 m
transport
M-Prof. Dumitru Mocanu V
Mijloace transport aprox. 1029 m
Recreere
parks
Parc
Recreere aprox. 491 m
restaurants
Pizza Pizza
Restaurante aprox. 609 m
shopping
Profi
Supermarket/Mall aprox. 1249 m
shopping
Profi Floresti
Supermarket/Mall aprox. 1249 m

Proprietăți similare

Duplex cu 4 camere cu Canalizare în Florești
179.000 €
Județul Cluj, Florești
4 camere
120 mp
150 mp teren
Duplex cu 4 camere cu Canalizare în Florești
185.000 € + TVA
Județul Cluj, Florești
4 camere
118 mp
158 mp teren
Duplex cu 5 camere cu Canalizare în Florești
186.000 €
Județul Cluj, Florești
5 camere
153 mp
300 mp teren
Duplex cu 4 camere cu Canalizare în Florești
168.000 € + TVA
Județul Cluj, Florești
4 camere
104 mp
60 mp teren
Duplex cu 5 camere cu Teren 250 Mp în Florești
175.000 € + TVA
Județul Cluj, Florești
5 camere
135 mp
250 mp teren
Duplex cu 4 camere cu Teren 281 Mp în Florești
179.900 €
Județul Cluj, Florești
4 camere
129 mp
281 mp teren
Duplex cu 4 camere cu Teren 200 Mp în Florești
165.200 € + TVA
Județul Cluj, Florești
4 camere
108 mp
200 mp teren
Duplex cu 4 camere cu Canalizare în Florești
181.500 €
Județul Cluj, Florești
4 camere
119 mp
220 mp teren
Duplex cu 4 camere semidecomandat cu Canalizare în Florești
184.990 €
Județul Cluj, Florești
4 camere
110 mp
250 mp teren

Abonează-te la newsletter să fii primul care primește cele mai noi recomandări de proprietăți și sfaturi de la experți.