• Agenție

Casa tip duplex premium/CF/zona Tautului.

195.000 € + TVA

Florești, Județul Cluj

Nr. camere:
4
Suprafață utilă:
177 mp
Suprafață teren:
273 mp
Front stradal:
13.60000038147 m
An construcție:
2024
Nr. niveluri:
1

Descriere

Raportează anunț

Casa tip duplex premium/CF/zona Tautului.

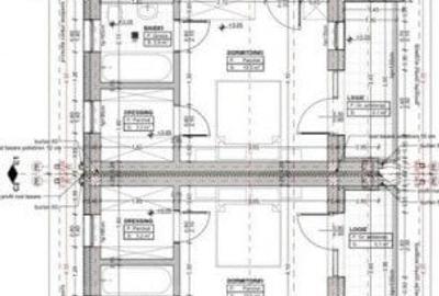
COMISION ZERO! Silver Imobiliare ofera spre vanzare o casa tip duplex situata in Floresti, zona strazii Tautului , intr-o zona superba cu acces facil spre Cluj-Napoca pe centura de sud. Casa este dispusa pe 4 niveluri, respectiv S+P+E+M cu teren de 273 mp , front 13.6 m, suprafata utila de 177 mp+ 50 mp la mansarda care se poate amenaja dupa necesitatile fiecaruia, fiind compartimentate astfel: - Subsol-57 mp. - garaj spatios de 57 mp prevazut cu usi acces automatizate+ spatiu depozitare; - hol +casa scarilor; - Parter-60 mp. - living spatios+dining; - bacatarie inchisa; - baie; - debara/dressing; - terasa acoperita cu acces din living; - hol acces; - Etaj-60 mp. - 3 dormitoare ( 1 dormitor beneficiaza de baie proprie si dressing) - 2 bai; - dressing; - hol+casa scarilor; - Mansarda - zona open-space de cca 50 mp unde se pot amenaja inca 2 spatii ( birou/dormitor)+ baie avand toate instaltiile trase. Se vinde la stadiul de semifinisat la interior/finisat la exterior cu materiale PREMIUM, , dupa cum urmeaza: - fundatii stalpi si plansee din beton armat; - hidroizolatii cu membrana si polistiren; - zidarie din caramida de 25 cm; - fatade placate cu VATA BAZALTICA DE 10 CM ,tencuiala decorativa siliconata si piatra decorativa; - placa din beton armat inclusiv peste etaj; - 2 randuri de caramida+polistiren de 10 cm intre cele 2 randuri la zidul de separare al imobilului; - acoperis cu tigla din beton tip Bramac; - termoizolatie acoperis cu spuma, si membrana; - pereti interiori tencuiti+2 straturi de glet; - instalatiile sanitare si electrice trase pe pozitii; - geamuri si usi principale termoizolante din PVC cu 3 foi de sticla/7 camere cu Profil REHAU si feronerie MACO; - glafuri la exterior din piatra; - sapa de egalizare; - sistem de incalzire in pardoseala la fiecare nivel; - centrala termica pe gaz tip Ariston One cu boiler incorporat; - curtea amenajata si ingradita; Imobilul este finalizat si racordat la toate utilitatile necesare. PRETUL MENTIONAT IN ANUNT NU CONTINE TVA-UL de 21%. Pentru alte detalii sau programarea unei vizionari contactati-ne cu incredere! -
Citește mai mult Citește mai puțin

ID anunț: 10788153 Actualizat în: 17 Noiembrie 2025
Nr. camere: 4
Suprafață utilă: 177 mp
Suprafață utilă totală: 177 mp
Nr. băi: 3
Suprafață teren: 273 mp
Front stradal: 13.60000038147 m
An construcție: 2024
Regim înălțime: P+1E

Utilități

Utilități
Apă Gaze Canalizare
Facilități
Curte Garaj

Abonează-te la newsletter să fii primul care primește cele mai noi recomandări de proprietăți și sfaturi de la experți.

Căutări similare