De vânzare duplex P+E - Dumbrăvița

350.000 €

Dumbrăviţa, Judeţul Timiş

Nr. camere:
4
Suprafață utilă:
125 mp
Suprafață teren:
328 mp

Descriere casă

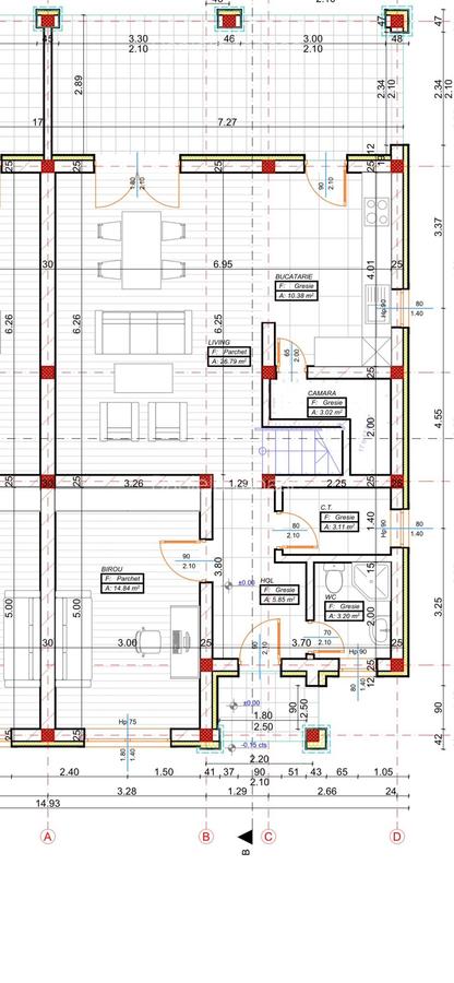
Vă oferim spre vânzare un duplex P+E, situat într-o zonă liniștită din Dumbrăvița, în apropierea străzii Mureș, aproape de principalele puncte de interes. Detalii proprietate: - Regim de înălțime: Parter + Etaj - Suprafață utilă: 125 mp - Teren în proprietate: 328 mp - Stadiu actual: se execută finisajele interioare și exterioare, oferindu-vă posibilitatea de a personaliza locuința după preferințe și nevoi - Locație: Dumbrăvița, în apropierea străzii Mureș - zonă rezidențială liniștită, cu acces rapid către magazine și alte puncte de interes - ⁠Utilități: apă, canal, energie electrică, gaz, drum asfaltat Compartimentare: - Parter: living spațios + bucătărie open space, cămară, dormitor, baie, hol, cameră tehnică, terasă acoperită de 21 mp - Etaj: 3 dormitoare, 2 băi și un dressing Instalații, materiale și finisaje premium: - Cărămidă Porotherm - ⁠Geamuri termopan Salamander Blue Evolution 92 cm, feronerie Roto - Instalații termice - cofrag Purmo, țeavă Purmo - 30 de ani garanție, termostat Salus - Centrală Vaillant / Wiesmann - ⁠Instalații electrice - Gewiss - ⁠Termosistem - polistiren 10 cm EPS 100, decorativa Relius Preț: 350.000 euro - finisat la cheie și racordat la toate utilitățile
Citește mai mult Citește mai puțin
Nemobilat Curte Centrală proprie

Detalii casă

ID anunț: 2204353 Actualizat în: 13 Ianuarie 2026
Nr. camere: 4
Suprafață utilă: 125 mp
Suprafață utilă totală: 125 mp
Nr. băi: 3
Suprafață teren: 328 mp

Istoric preț

Facilități

Pereți
Vopsea lavabilă
Izolații termice
Exterior
Utilități
Gaze Curent Canalizare Apă
Sistem încălzire
Centrală proprie
Mobilat
Nemobilat
Amenajare străzi
Asfaltate Iluminat stradal

Puncte de interes

Școală
education
Gradinita Scooby
Învățământ aprox. 1643 m
education
Scoala Gimnaziala Dumbravita
Învățământ aprox. 1928 m
Recreere
parks
Parcul Dvorjak
Recreere aprox. 395 m
parks
Sunflower Field
Recreere aprox. 1096 m
parks
Dumbrăviţa Park (en)
Recreere aprox. 1782 m
shopping
Lidl
Supermarket/Mall aprox. 1808 m

Proprietăți similare

Duplex cu 4 camere cu Teren 1200 Mp în Dumbrăvița
370.000 €
Județul Timiș, Dumbrăvița
4 camere
150 mp
1.200 mp teren
Duplex cu 5 camere cu Canalizare în Dumbrăvița
335.000 €
Județul Timiș, Dumbrăvița
5 camere
120 mp
300 mp teren
Duplex cu 5 camere cu Canalizare în Dumbrăvița
339.000 €
Județul Timiș, Dumbrăvița
5 camere
155 mp
370 mp teren
Duplex cu 5 camere cu Canalizare în Dumbrăvița
359.990 €
Județul Timiș, Dumbrăvița
5 camere
126 mp
325 mp teren
Duplex cu 5 camere cu Canalizare în Dumbrăvița
330.000 €
Județul Timiș, Dumbrăvița
5 camere
120 mp
340 mp teren
Duplex cu 5 camere cu Canalizare în Dumbrăvița
350.000 €
Județul Timiș, Dumbrăvița
5 camere
170 mp
400 mp teren
Duplex cu 4 camere cu Canalizare în Dumbrăvița
320.000 €
Județul Timiș, Dumbrăvița
4 camere
112 mp
300 mp teren
Duplex cu 4 camere cu Canalizare în Dumbrăvița
337.000 €
Județul Timiș, Dumbrăvița
4 camere
128 mp
301 mp teren
Duplex cu 4 camere cu Canalizare în Dumbrăvița
338.000 €
Județul Timiș, Dumbrăvița
4 camere
127 mp
300 mp teren

Abonează-te la newsletter să fii primul care primește cele mai noi recomandări de proprietăți și sfaturi de la experți.