Casa cu 4 camere, 275 mp, zona Big-Manastur

569.000 €

Mănăştur, Cluj-Napoca

Nr. camere:
4
Suprafață utilă:
275 mp
Suprafață teren:
200 mp

Descriere casă

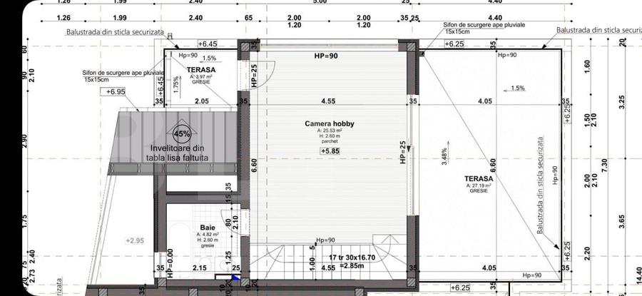
Blitz va prezinta o oportunitate unica de a achizitiona o casa moderna, amplasata intr-o zona linistita si accesibila din Big Manastur. Aceasta proprietate se evidentiaza prin designul sau contemporan si facilitatile generoase, oferind spatiul ideal pentru o familie. Caracteristici principale: 4 camere spatioase - perfecte pentru amenajare personalizata. 4 bai moderne - oferind confort si intimitate fiecarui membru al familiei. Gradina proprie - un loc relaxant pentru petrecerea timpului liber. 2 balcoane - pentru momente de liniste si aer curat. Terasa circulara - ofera o priveliste panoramica si un spatiu ideal pentru socializare. 2 locuri de parcare - asigurand confort si siguranta pentru vehiculele personale. Detalii suplimentare: Semifinisat - pregatit pentru personalizare dupa propriul gust. Certificat de conformitate in curs - oferind siguranta tranzactiei. Pret afisat fara TVA. Aceasta casa reprezinta o alegere excelenta pentru cei care isi doresc un camin modern, situat intr-o zona de top, aproape de facilitati si mijloace de transport. Nu rata ocazia de a deveni proprietarul acestei case impresionante! Cod oferta / ID BLITZ: P138462
Citește mai mult Citește mai puțin
Nemobilat Centrală proprie

Detalii casă

ID anunț: 15776 Actualizat în: 23 Martie 2026
Nr. camere: 4
Suprafață utilă: 275 mp
Suprafață utilă totală: 275 mp
Nr. băi: 4
Suprafață teren: 200 mp
Front stradal: 12 m
An construcție: 2025
Regim înălțime: P+2E

Istoric preț

Facilități

Utilități
Curent
Sistem încălzire
Centrală proprie
Mobilat
Nemobilat
Izolații termice
Exterior

Puncte de interes

Mijloace transport
transport
Grigore Antipa Vest
Mijloace transport aprox. 150 m
transport
Grigore Antipa Est
Mijloace transport aprox. 156 m
transport
19
Mijloace transport aprox. 369 m
transport
Edgar Quinet Vest
Mijloace transport aprox. 395 m
Școală
education
Liceul Edmond Nicolau
Învățământ aprox. 690 m
education
Liceul Teologic Adventist
Învățământ aprox. 761 m
education
Liceul Waldorf
Învățământ aprox. 830 m
education
Gradinita Liceului Waldorf
Învățământ aprox. 894 m
Recreere
shopping
Lidl
Supermarket/Mall aprox. 654 m
parks
Teren sportiv
Recreere aprox. 654 m
restaurants
Old Pub
Restaurante aprox. 854 m
shopping
Olimpia
Supermarket/Mall aprox. 857 m

Proprietăți similare

Duplex cu 4 camere cu Canalizare în Bună Ziua
579.000 €
Cluj-Napoca, Bună Ziua
4 camere
136 mp
118 mp teren
Duplex cu 5 camere cu Canalizare în Bună Ziua
570.000 €
Cluj-Napoca, Bună Ziua
5 camere
176 mp
272 mp teren
Duplex cu 4 camere cu Canalizare în Europa
585.000 €
Cluj-Napoca, Europa
4 camere
136 mp
300 mp teren
Duplex cu 4 camere cu Canalizare în Europa
595.000 €
Cluj-Napoca, Europa
4 camere
136 mp
310 mp teren
Duplex cu 10 camere cu Canalizare în Borhanci
530.000 €
Cluj-Napoca, Borhanci
10 camere
315,64 mp
612 mp teren
Duplex cu 4 camere cu Teren 258 Mp în Bună Ziua
576.000 €
Cluj-Napoca, Bună Ziua
4 camere
137 mp
258 mp teren
Duplex cu 4 camere cu Canalizare în Gheorgheni
520.000 €
Cluj-Napoca, Gheorgheni
4 camere
133 mp
236 mp teren
Duplex cu 4 camere cu Canalizare în Bună Ziua
588.000 €
Cluj-Napoca, Bună Ziua
4 camere
120 mp
250 mp teren
Duplex cu 4 camere cu Canalizare în Gheorgheni
520.000 €
Cluj-Napoca, Gheorgheni
4 camere
140 mp
235 mp teren

Abonează-te la newsletter să fii primul care primește cele mai noi recomandări de proprietăți și sfaturi de la experți.