Duplex 113mp, gradina, finisat, Voronet

349.999 €

Iris, Cluj-Napoca

Nr. camere:
4
Suprafață utilă:
113 mp

Descriere casă

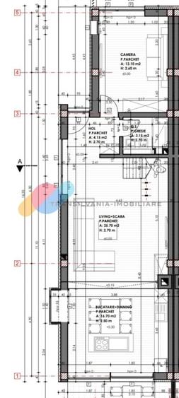
Va oferim spre vanzare o casa de 113 mp utili pe un teren de 200 mp, construita din caramida Porotherm de 30 cm si izolata cu polistiren Dalmatina (15 cm la etaj, 10 cm la parter). Acoperisul este din tabla dublu faltuita, iar tamplaria este Salamander de 82 mm cu sticla de 52 mm. Locuinta este compartimentata astfel: la parter se afla un living cu bucatarie open-space, o camera, o baie si acces catre gradina prin usa culisanta de 180 cm. Etajul cuprinde 2 camere, 2 bai, un dressing si 2 balcoane, iar podul este utilizat pentru depozitare. Proprietatea dispune de incalzire in pardoseala, curte amenajata cu gazon si sistem de irigatie, plus 3 locuri de parcare. Este racordata la gaz, curent si canalizare (menajera si pluviala). Pentru mai multe informatii si programarea unei vizionari, va rugam sa ne contactati! Id extern: P3136
Citește mai mult Citește mai puțin
Mobilat Complet Lux Curte Centrală proprie

Detalii casă

ID anunț: 1544524 Actualizat în: 13 Februarie 2026
Nr. camere: 4
Suprafață utilă: 113 mp
Suprafață utilă totală: 113 mp
Nr. băi: 3
Regim înălțime: P+1E

Istoric preț

Facilități

Utilități
Curent Apă Canalizare Gaze
Sistem încălzire
Centrală proprie

Puncte de interes

Mijloace transport
transport
Bucla de intoarcere tramvai, 100, 102
Mijloace transport aprox. 264 m
transport
Disp. Tram CUG
Mijloace transport aprox. 264 m
transport
Amberger Nord
Mijloace transport aprox. 371 m
transport
Trifoiului Sud
Mijloace transport aprox. 376 m
Școală
education
Grăd.Lizuca str. 2
Învățământ aprox. 1227 m
education
Grădinita Aşchiuţă str. 4
Învățământ aprox. 1387 m
education
Scoala cu clasele I-VIII Traian Darjan
Învățământ aprox. 1441 m
education
Scoala Generala nr.12 (en)
Învățământ aprox. 1481 m
Recreere
parks
Parc
Recreere aprox. 868 m
parks
Parc
Recreere aprox. 900 m
restaurants
Cantina Primariei din Someseni
Restaurante aprox. 1367 m
restaurants
Imperial Ballroom
Restaurante aprox. 1641 m

Proprietăți similare

Duplex cu 4 camere cu Canalizare în Iris
329.000 €
Cluj-Napoca, Iris
4 camere
120 mp
285 mp teren
Duplex cu 5 camere cu Canalizare în Iris
325.000 €
Cluj-Napoca, Iris
5 camere
120 mp
255 mp teren
Duplex cu 4 camere cu Canalizare în Iris
330.000 €
Cluj-Napoca, Iris
4 camere
129 mp
300 mp teren
Duplex cu 5 camere cu Canalizare în Iris
349.900 €
Cluj-Napoca, Iris
5 camere
130 mp
256 mp teren
Duplex cu 4 camere cu Canalizare în Iris
325.000 €
Cluj-Napoca, Iris
4 camere
135 mp
250 mp teren
Duplex cu 4 camere cu Canalizare în Iris
340.000 €
Cluj-Napoca, Iris
4 camere
129 mp
Duplex cu 4 camere cu Canalizare în Iris
329.000 €
Cluj-Napoca, Iris
4 camere
180 mp
278 mp teren
Duplex cu 5 camere cu Canalizare în Iris
330.000 €
Cluj-Napoca, Iris
5 camere
161 mp
150 mp teren
Duplex cu 5 camere cu Canalizare în Iris
369.000 €
Cluj-Napoca, Iris
5 camere
150 mp
315 mp teren

Abonează-te la newsletter să fii primul care primește cele mai noi recomandări de proprietăți și sfaturi de la experți.