Duplex modern si spatios pe strada Campului

362.000 € + TVA

Câmpului, Cluj-Napoca

Nr. camere:
7
Suprafață utilă:
196 mp
Suprafață teren:
240 mp

Descriere casă

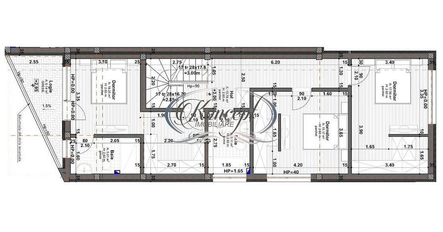
Koncept Imobiliare va ofera spre vanzare o parte de duplex nou, cu arhitectura moderna, situat pe Strada Campului, intr-o zona usor retrasa de la artera principala, ce ofera liniste, intimitate si acces facil catre punctele de interes ale orasului. Proprietatea are suprafata utila de 196 mp si 160 mp teren liber amenajat cu gazon. Locuinta este compartimentata eficient pe trei niveluri. La parter regasim bucataria, baia, holul, livingul spatios cu zona de luat masa, o camera ce poate fi utilizata ca birou sau dormitor si o terasa exterioara cu acces direct din zona de zi. Etajul este compus din dormitor matrimonial cu baie proprie si balcon, doua dormitoare secundare, hol si inca o baie. Etajul retras ofera o camera hobby, un birou si o terasa exterioara generoasa, perfecta pentru momente de relaxare sau pentru amenajarea unui spatiu creativ. Constructia este realizata din caramida, cu accent pe calitatea executiei si design modern. Proprietatea se preda semifinisata, cu peretii zugraviti in alb, oferind libertatea de personalizare a finisajelor interioare conform propriului stil. Dispune de centrala termica proprie si incalzire prin pardoseala. Proprietatea dispune de CF putand fi achizitionata inclusiv prin credit bancar. Prin suprafata generoasa, compartimentarea versatila si amplasamentul bun, acest duplex reprezinta o alegere excelenta pentru o familie care isi doreste spatiu si confort, dar si pentru desfasurarea unei activitati de birou intr-un cadru elegant si usor accesibil. Pentru informatii suplimentare, programarea unei vizionari sau pentru a afla oferta noastra completa va stam la dispozitie telefonic, prin e-mail sau la sediul agentiei noastre, pe str. Aviator Badescu, nr. 19, Cluj-Napoca.
Citește mai mult Citește mai puțin
Nemobilat Curte Centrală proprie

Detalii casă

ID anunț: 3528926 Actualizat în: 10 Martie 2026
Nr. camere: 7
Suprafață utilă: 196 mp
Suprafață utilă totală: 196 mp
Nr. băi: 3
Suprafață teren: 240 mp
Front stradal: 9 m
An construcție: 2025
Regim înălțime: P+2E

Istoric preț

Facilități

Pereți
Vopsea lavabilă
Ușă intrare
Metal PVC
Izolații termice
Exterior
Ferestre cu geam termopan
PVC
Contorizare
Apometre Contor gaz
Mobilat
Nemobilat
Diverse
Scară interioară Senzor de fum Telecomandă poartă garaj
Alte spații utile
Dressing WC Serviciu
Facilități imobil
Interfon Curte
Utilități
Curent Apă Canalizare Gaze
Sistem încălzire
Centrală proprie
Amenajare străzi
Asfaltate Betonate Iluminat stradal Mijloace de transport în comun

Puncte de interes

Mijloace transport
transport
19
Mijloace transport aprox. 99 m
transport
Edgar Quinet Vest
Mijloace transport aprox. 111 m
transport
Grigore Antipa Vest
Mijloace transport aprox. 473 m
transport
Grigore Antipa Est
Mijloace transport aprox. 480 m
Școală
education
Liceul Edmond Nicolau
Învățământ aprox. 721 m
education
Liceul Teologic Adventist
Învățământ aprox. 772 m
education
Grăd.Buburuzastr.1
Învățământ aprox. 939 m
education
Gradinita Speciala
Învățământ aprox. 989 m
Recreere
parks
Teren sportiv
Recreere aprox. 687 m
restaurants
Old Pub
Restaurante aprox. 825 m
shopping
Olimpia
Supermarket/Mall aprox. 834 m
shopping
Profi
Supermarket/Mall aprox. 847 m

Proprietăți similare

Duplex cu 6 camere cu Canalizare în Dâmbul Rotund
340.000 € + TVA
Cluj-Napoca, Dâmbul Rotund
6 camere
207 mp
350 mp teren
Duplex cu 4 camere cu Canalizare în Iris
329.000 €
Cluj-Napoca, Iris
4 camere
120 mp
285 mp teren
Duplex cu 2 camere cu Canalizare în Făget
330.000 €
Cluj-Napoca, Făget
2 camere
160 mp
500 mp teren
Duplex cu 4 camere cu Canalizare în Iris
340.000 €
Cluj-Napoca, Iris
4 camere
129 mp
Duplex cu 5 camere cu Canalizare în Exterior Nord
380.000 €
Cluj-Napoca, Exterior Nord
5 camere
142 mp
209 mp teren
Duplex cu 4 camere cu Canalizare în Someșeni
329.950 €
Cluj-Napoca, Someșeni
4 camere
119 mp
229 mp teren
Duplex cu 2 camere cu Teren 317 Mp în Între Lacuri
350.000 €
Cluj-Napoca, Între Lacuri
2 camere
72 mp
317 mp teren
Duplex cu 3 camere cu Canalizare în Grigorescu
329.999 €
Cluj-Napoca, Grigorescu
3 camere
90 mp
150 mp teren
Duplex cu 5 camere cu Canalizare în Iris
330.000 €
Cluj-Napoca, Iris
5 camere
161 mp
150 mp teren

Abonează-te la newsletter să fii primul care primește cele mai noi recomandări de proprietăți și sfaturi de la experți.