În acest moment, nu se primesc cereri pentru această proprietate. Vă sugerăm să verificați alte oferte similare disponibile.
Vezi anunțuri
Mai mult de un an
Casa cuplata in zona accesibila cu CF.
158.000 €
+ TVA
Preț vechi
192.900 €
Chinteni, Judeţul Cluj
Descriere casă
Sesizează o problemă
Silver Imobiliare ofera spre vanzare casa tip duplex , situata in prima parte a comunei Chinteni cu acces facil spre Cluj-Napoca si alte puncte de interes.
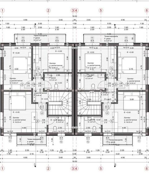
Casa este construita pe o paarcela de 680 mp, revenindui fiecarei unitati locative 340 mp , dispusa pe 2 niveluri , front de 17 m cu suprafata utila de 120 mp fiind compartimentata util, dupa cum urmeaza:
P= living+bucatarie, dormitor/ birou, baie, terasa de 27.4 mp cu acces din living, hol, casa scarilor+spatiu depozitare dedesubt;
E= 3 dormitoare, 2 bai, 2 balcoane, hol+casa scarilor( dormitorul principal beneficiaza de baie proprie, zona dressing si balcon)
La nivel de finisaje casa se va preda la stadiul de semifinisat cu materiale de calitate superioara , dupa cum urmeaza:
- fundatii stalpi si plansee din beton armat;
- hidroizolatii cu membrana si polistiren;
- zidarie din caramida de 25 cm/cemacon evoceramic;
- termosistem cu polistiren de 15 cm/eps 80+tencuiala si piatra decorativa;
- zidarie individuala in zona de alipire( doua randuri de caramida cu polistiren de 10 cm la mijloc)
- acoperis cu tigla din beton tip Bramac;
- pod circulabil placat cu scandura;
- termoizolatie peste etaj cu spuma poliuretanica;
- glafuri din granit;
- geamuri si usi principale termoizolante din Pvc cu 3 foi de sticla/5 camere de tip Salamander;
- pereti interiori tencuiti+1 strat de glet;
- instalatiile sanitare si electrice trase pe pozitii;
- sapa de egalizare;
- curtea ingradita si amenajata cu pavaj si trotuare perimetrale;
- sistem de incalzire este in pardoseala atat la parter cat si la etaj+centrala termica in condensare de tip Ariston;
Casa va fi racordata la toate utilitatile necesare si contoare montate.
PRETUL MENTIONAT IN ANUNT NU CONTINE TVA-UL DE 21%.
Pentru alte detalii sau programarea unei vizionari contactati-ne cu incredere!
Citește mai mult
Citește mai puțin
Nemobilat
Grădină
Centrală proprie
Zonă de deal / munte
Zonă rurală
Detalii casă
ID anunț: 64921
Actualizat în: 27 Martie 2026
Nr. camere:
5
Suprafață utilă:
120 mp
Suprafață utilă totală:
120 mp
Nr. băi:
3
Suprafață teren:
340 mp
Front stradal:
17 m
An construcție:
2025
Regim înălțime:
P+1E
Istoric preț
Facilități
Contorizare
Apometre
Contor gaz
Mobilat
Nemobilat
Facilități imobil
Grădină
Utilități
Curent
Apă
Canalizare
Gaze
Cablu
Sistem încălzire
Centrală proprie
Internet
Cablu
Ușă intrare
PVC
Izolații termice
Exterior
Ferestre cu geam termopan
PVC
Amenajare străzi
Iluminat stradal
Mijloace de transport în comun
Asfaltate
Puncte de interes
Mijloace transport
M-Xamus V
Mijloace transport
aprox.
553
m
M-Xamus
Mijloace transport
aprox.
553
m
M-Xamus E
Mijloace transport
aprox.
559
m
M-Chinteni
Mijloace transport
aprox.
1023
m
Abonează-te la newsletter să fii primul care primește cele mai noi recomandări de proprietăți și sfaturi de la experți.
Căutări similare
- Duplexuri de vânzare în Chinteni
- Duplexuri de vânzare în Cluj-Napoca
- Duplexuri de vânzare în Florești
- Duplexuri de vânzare în Dezmir
- Duplexuri de vânzare în Feleacu
- Duplexuri de vânzare în Gilău
- Duplexuri de vânzare în Apahida
- Duplexuri de vânzare în Tăuți
- Duplexuri de vânzare în Baciu
- Duplexuri de vânzare în Câmpenești
- Duplexuri de vânzare în Popești
- Duplexuri de vânzare în Gheorghieni