Duplex, Beregsau Mare, P+E, 5 camere, 116mp util,teren 400mp

110.000 €

Beregsău Mare, Judeţul Timiş

Nr. camere:
5
Suprafață utilă:
116 mp
Suprafață teren:
400 mp
Tip locuință:
Duplex

Descriere casă

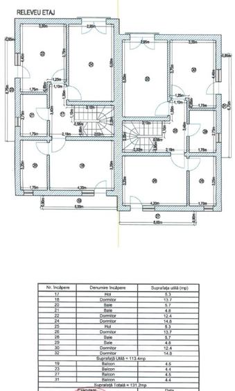
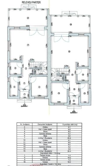
Jumatate de duplex de vanzare langa Timisoara, in localitatea Beregsau Mare, constructie pe Parter + Etaj + Pod, realizata cu caramida, acoperita cu tigla, izolata cu polistiren de 10 cm, cu ferestre si usi la exterior, cu o suprafata utila de 116 mp la care se adauga terase si balcon inca 28 mp conform planului din anunt pe un teren total de 400mp. Configuratia duplexului o puteti vedea in releveul atasat acestui anunt, living cu bucatarie deschisa, birou si baie la parter si 3 dormitoare, dintre care unul cu baie proprie si inca o baie cu intrare de pe hol la etaj. Urcarea la pod cu scara rabatabila. Utilitati: Apa, curent trifazic, canalizare, gazul posibil sa fie adus in localitate pana la sfarsitul anului. Casa se vinde la gri pe exterior si la rosu pe interior, fara instalatii realizate. Se vinde doar jumatate de duplex, in cealalta jumatate va locui cel care a construit duplexul. Pret: 110.000 euro pentru duplexul la stadiul actual.
Citește mai mult Citește mai puțin
Zonă rurală

Detalii casă

ID anunț: Actualizat în: 18 Februarie 2026
Tip locuință: Duplex
Nr. camere: 5
Suprafață utilă: 116 mp
Suprafață teren: 400 mp
An construcție: 2026

Facilități

Comision
3%

Proprietăți similare

Duplex cu 3 camere cu Canalizare în Beregsău Mare
99.990 €
Județul Timiș, Beregsău Mare
3 camere
75 mp
343 mp teren
Duplex cu 3 camere cu Canalizare în Beregsău Mare
110.000 €
Județul Timiș, Beregsău Mare
3 camere
85 mp
350 mp teren
Duplex cu 3 camere cu Canalizare în Beregsău Mare
110.000 €
Județul Timiș, Beregsău Mare
3 camere
85 mp
350 mp teren
Duplex cu 3 camere cu Teren 360 Mp în Beregsău Mare
110.000 €
Județul Timiș, Beregsău Mare
3 camere
85 mp
360 mp teren
Duplex cu 4 camere cu Canalizare în Freidorf
119.000 €
Timișoara, Freidorf
4 camere
71 mp
314 mp teren
Duplex cu 3 camere cu Canalizare în Pișchia
117.000 €
Județul Timiș, Pișchia
3 camere
84 mp
530 mp teren
Duplex cu 3 camere cu Canalizare în Bucovăț (Remetea Mare)
107.500 €
Județul Timiș, Bucovăț (Remetea Mare)
3 camere
70,6 mp
394 mp teren
Duplex cu 4 camere cu Canalizare în Bucovăț (Remetea Mare)
113.000 €
Județul Timiș, Bucovăț (Remetea Mare)
4 camere
90 mp
260 mp teren
Duplex cu 3 camere cu Canalizare în Moșnița Nouă
114.990 €
Județul Timiș, Moșnița Nouă
3 camere
75 mp
310 mp teren

Abonează-te la newsletter să fii primul care primește cele mai noi recomandări de proprietăți și sfaturi de la experți.