vila gata in duplex/5cam+2bai+150mp curte libera/comBerceni -Ilfov

145.200 €

Berceni, Judeţul Ilfov

Nr. camere:
5
Suprafață utilă:
132,8 mp
Suprafață teren:
220 mp

Descriere casă

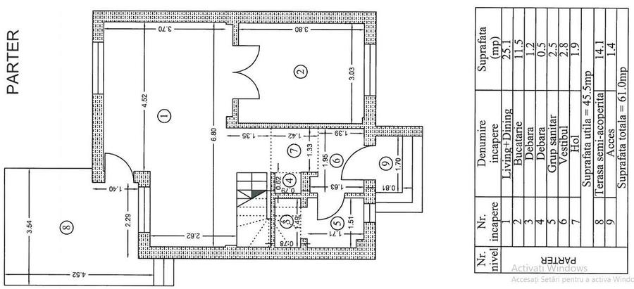
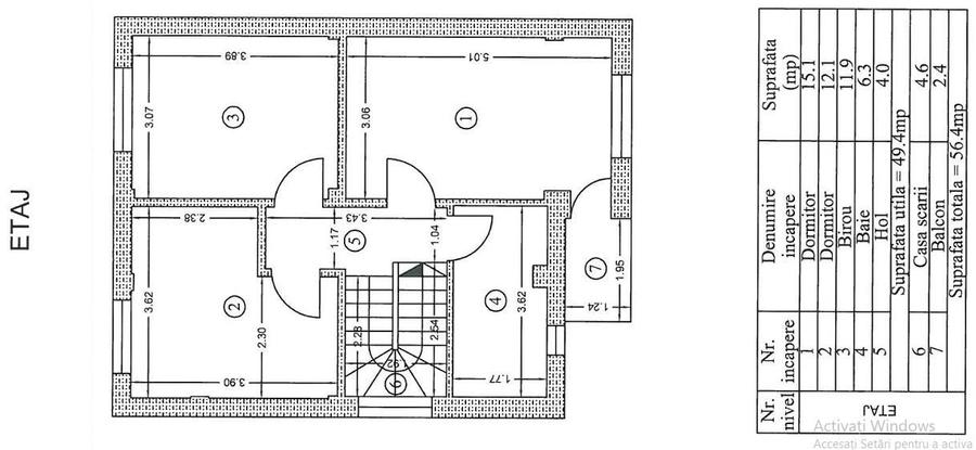
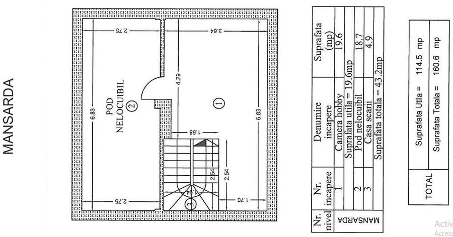
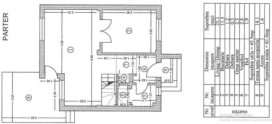
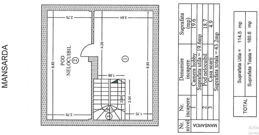
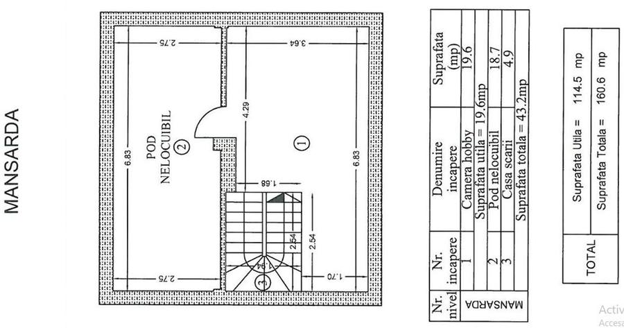
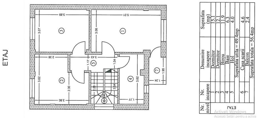
Dezvoltator(persoana fizica/persoana juridica, comision cumparator 0%), prin biroul propriu de vanzari - tel. contact: - pentru detalii si vizionari) ce ofera servicii(consiliere si asistenta, bancara si notariala complete incluse, postvanzare, indiferent de modul de achizitie, cash /credit. vand - vila noua in duplex(pret 120000euro+TVA(21%)=145200euro, daca se alege vila care se vinde de pe persoana fizica), cu predare la cheie(nemobilata-neutilata, finisata complet, utilitatile zonei(put propriu(la 30-35m adancime - a doua panza freatica), hidrofor, canalizare cu fosa septica betonata -vidanjabila, energie electrica, gaze); - vila noua in duplex(pret 120000euro + TVA(21%)=145200euro, DACA SE CUMPARA PE FIRMA, SE POATE DEDUCE TVA-UL, astfel putandu-se achizitiona la pretul de 120000euro, cu predare la cheie(nemobilata-neutilata, finisata complet, utilitatile zonei(put propriu(la 30-35m adancime - a doua panza freatica), hidrofor, canalizare cu fosa septica betonata -vidanjabila, energie electrica, gaze), situata în Comuna Berceni, judetul Ilfov. Recomandari: 1. - se pot face teste gratuie la Romstal, pentru verificarea calitatii apei, potabilitate, duritate, etc. 2. - pentru cine doreste sa investeasca intr-un sistem/statie de dedurizare a apei, daca este cazul, costurile se situeaza intre Lei. Suprafata totala teren pentru fiecare vila in parte, aprox. 220 mp din care amprenta la sol de 61mp. Compunere - cf. releveului/schitelor atasate: - Parter: living + dining, bucătărie, baie, vestibul, hol, 2 debarale, terasa semi-acoperita cu suprafață total de 61,5 mp - Etaj: 3 dormitoare(unul este trecut ca birou), baie, hol, balcon - cu suprafata totala de 56,4mp - Mansardă: camera hobby, pod(se poate folosi pentru depozitare) - cu suprafata totala de 43,2mp Nota: fotografiile sunt dintr-o vila asemanatoare(finisajele se pot personaliza). Facilități: statie STB, statie de metrou Tudor Arghezi, Mega Image, Carrefour , farmacie, scoli, grădinițe stat / privat, activități cu copii ( sport, pian, limbi străine, înot, etc) , sală de fitness, cofetărie, măcelărie, piață agroalimentară, echitație , restaurante , săli evenimente, salon de înfrumusețare.
Citește mai mult Citește mai puțin
Nemobilat Grădină Curte Calorifere Centrală proprie

Detalii casă

ID anunț: 2556008 Actualizat în: 06 Aprilie 2026
Nr. camere: 5
Suprafață utilă: 132,8 mp
Suprafață utilă totală: 132,8 mp
Nr. băi: 2
Suprafață teren: 220 mp
Front stradal: 15 m
An construcție: 2024
Regim înălțime: P+1E

Istoric preț

Facilități

Pereți
Faianță Vopsea lavabilă
Podele
Gresie Parchet
Ușă intrare
PVC Parchet Metal Lemn
Uși interior
PVC Lemn Sticlă
Izolații termice
Exterior
Ferestre cu geam termopan
PVC Lemn
Contorizare
Contor gaz
Mobilat
Nemobilat
Diverse
Scară interioară
Facilități imobil
Curte Grădină
Utilități
Curent Apă Canalizare Gaze Cablu
Sistem încălzire
Calorifere Centrală proprie
Internet
Cablu
Amenajare străzi
Iluminat stradal Mijloace de transport în comun Asfaltate

Puncte de interes

Școală
education
Scoala Berceni
Învățământ aprox. 1013 m
Recreere
parks
Teren sportiv
Recreere aprox. 1133 m

Proprietăți similare

Duplex cu 4 camere cu Canalizare în Berceni
155.000 €
Județul Ilfov, Berceni
4 camere
104 mp
202 mp teren
Duplex cu 4 camere cu Teren 300 Mp în Berceni
135.999 €
Județul Ilfov, Berceni
4 camere
100 mp
300 mp teren
Duplex cu 5 camere cu Canalizare în Berceni
136.000 €
Județul Ilfov, Berceni
5 camere
140 mp
225 mp teren
Duplex cu 4 camere cu Teren 200 Mp în Berceni
139.800 €
Județul Ilfov, Berceni
4 camere
112 mp
200 mp teren
Duplex cu 4 camere cu Canalizare în Berceni
145.000 €
Județul Ilfov, Berceni
4 camere
125 mp
220 mp teren
Duplex cu 4 camere cu Teren 200 Mp în Berceni
139.800 €
Județul Ilfov, Berceni
4 camere
115 mp
200 mp teren
Duplex cu 4 camere cu Teren 200 Mp în Berceni
142.500 €
Județul Ilfov, Berceni
4 camere
115 mp
200 mp teren
Duplex cu 4 camere cu Teren 187 Mp în Tamași
155.000 €
Județul Ilfov, Tamași
4 camere
97 mp
187 mp teren
Duplex cu 4 camere cu Canalizare în Tunari
150.000 €
Județul Ilfov, Tunari
4 camere
108 mp
166 mp teren

Abonează-te la newsletter să fii primul care primește cele mai noi recomandări de proprietăți și sfaturi de la experți.