Vila tip duplex, zona Democratiei

1.200 € / lună

Democraţiei, Ploieşti

Nr. camere:
4
Suprafață utilă:
149,47 mp
Suprafață teren:
100 mp

Descriere casă

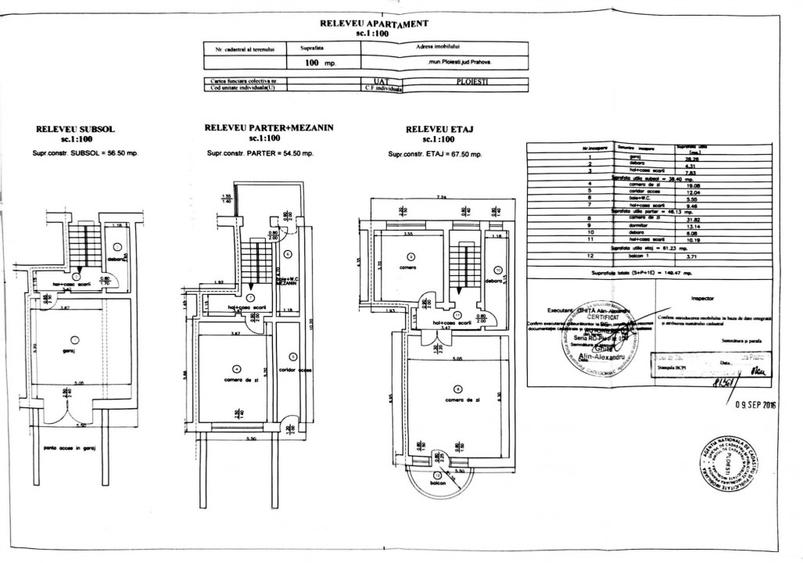
Vila tip duplex, cu o structura deosebita, amplasata intr-o zona linistita, ofera un spatiu generos si confortabil. Construita in 1940 din caramida dubla si planseu de beton, cu o structura deosebita, imobilul se remarca prin finisaje de calitate superioara si un design atent gandit fiind complet renovata in 2018, imobilul beneficiaza de toate conforturile moderne, pastrand in acelasi timp un design clasic si o atmosfera calda si primitoare. Detalii tehnice: Anul constructiei: 1940 Suprafata utila: 145,76 mp Suprafata utila totala: 149,47 mp Suprafata construita: 178,5 mp Teren: 100 mp Izolatie exterior: Vata bazaltica de 10 cm, grosimea peretilor fiind de 1 m Acoperis: Tabla tip Lindab Incalzire: Centrala termica cu incalzire in pardoseala la demisol Scara interioara: Beton imbracat in lemn Usi interior: Lemn masiv Pardoseala este din marmura, gresie si lemn Compartimentare: Demisol (Suprafata utila= 38,40 mp, Suprafata construita=56,60 mp): Bucatarie cu living open space acesta avand incalzire in pardoseala Grup sanitar Hol Casa scarii Parter (Suprafata utila=46,13 mp, Suprafata construita=54,50 mp): Hol Dressing Baie Living Coridor de acces Casa scarii Etaj (Suprafata utila=61,23 mp, plus balcon de 3,71 mp, Suprafata utila totala=64,94 mp, Suprafata construita=67,50 mp): Hol 2 Dormitoare (unul cu balcon) Baie Casa scarii Vila beneficiaza de finisaje de calitate, iar compartimentarea eficienta face ca fiecare spatiu sa fie utilizat la maximum. Este ideala pentru o familie care apreciaza confortul, dar si un design clasic cu accente moderne. Proprietatea se inchiriaza cu 1200 EU/luna plus o luna garantia imobilului. Pentru mai multe informatii sau programarea unei vizionari, nu ezitati sa ne contactati!
Citește mai mult Citește mai puțin
Aer condiționat Calorifere Centrală proprie

Detalii casă

ID anunț: 546781 Actualizat în: 03 Februarie 2026
Nr. camere: 4
Suprafață utilă: 149,47 mp
Suprafață utilă totală: 149,47 mp
Nr. băi: 3
Suprafață teren: 100 mp
An construcție: 1940
Regim înălțime: P+1E

Istoric preț

Facilități

Pereți
Vopsea lavabilă Faianță
Podele
Parchet Gresie
Ușă intrare
Parchet Lemn
Uși interior
Lemn
Izolații termice
Exterior
Utilități
Curent Apă Canalizare Gaze
Sistem încălzire
Centrală proprie Calorifere
Climatizare
Aer condiționat

Puncte de interes

Mijloace transport
transport
Statie
Mijloace transport aprox. 537 m
transport
Statie
Mijloace transport aprox. 613 m
transport
coreco sud
Mijloace transport aprox. 888 m
transport
Tache Ionescu
Mijloace transport aprox. 904 m
Școală
education
Inspectoratul Scolar
Învățământ aprox. 91 m
education
Liceul Pedagogic
Învățământ aprox. 238 m
education
Spiru Haret
Învățământ aprox. 313 m
education
Scoala nr.9
Învățământ aprox. 327 m
Recreere
restaurants
Sangria
Restaurante aprox. 60 m
parks
Parc
Recreere aprox. 103 m
shopping
Cobra Black Serv
Supermarket/Mall aprox. 638 m
shopping
UNIREA MALL
Supermarket/Mall aprox. 828 m

Proprietăți similare

Duplex cu 4 camere cu Teren 315 Mp în Exterior Nord
1.150 € / lună
Ploiești, Exterior Nord
4 camere
125 mp
315 mp teren
Duplex cu 4 camere cu Teren 200 Mp în Păulești
1.150 € / lună
Județul Prahova, Păulești
4 camere
150 mp
200 mp teren
Duplex cu 4 camere cu Teren 315 Mp în Păulești
1.150 € / lună
Județul Prahova, Păulești
4 camere
125 mp
315 mp teren

Abonează-te la newsletter să fii primul care primește cele mai noi recomandări de proprietăți și sfaturi de la experți.