Vila Pipera I Cartier HENRI COANDA I Intabulata utilitati I COM 0%

280.000 €

Voluntari, Judeţul Ilfov

Nr. camere:
6
Suprafață utilă:
170 mp
Suprafață teren:
450 mp

Descriere casă

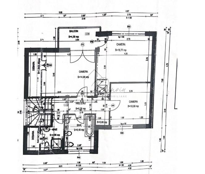
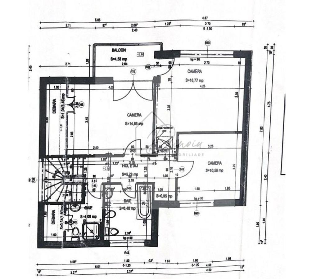
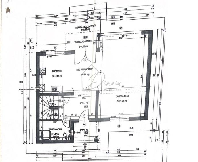
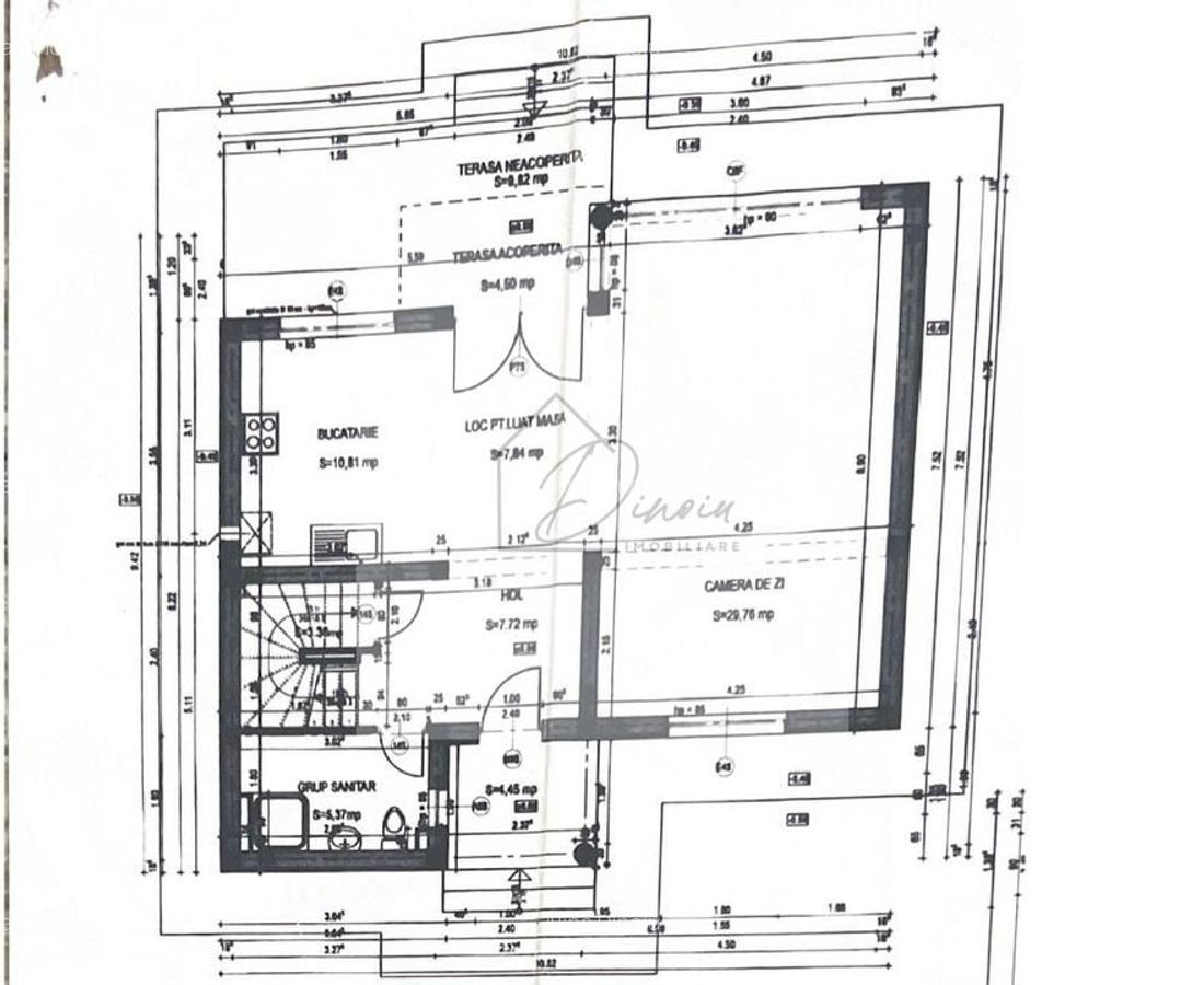
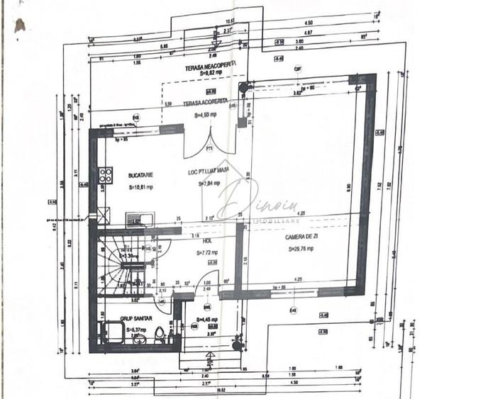
Va ofer spre vanzare vila la gri cu 6 camere, 3 bai si 2 terase in cartierul Henri Coanda, Pipera, Voluntari, fiind situata la intersectia a doua strazi, intr-o zona exclusiv rezidentiala. Toate utilitatile publice sunt la poarta! Disponibilitate imediata pentru vanzare! Vila are cadastru si intabulare! Se vinde la gri (structură, zidărie finalizate, termosistem, tamplarie), oferindu-vă astfel libertatea de a alege finisaje si dotarile dorite de d-stra! Ideal familie cu copii / cuplu! Comunitate tânăra, dinamica si prietenoasă! Vila este construita pe S+P+1E, cu suprafata utila de 170 mp si 2 terase, suprafata totala teren de 450 mp, cu o compartimentare moderna si eficienta a spatiilor, dupa cum urmeaza: CURTE - tearasa acoperita de 4, 5mp - terasa neacoperita de 9,9 mp Subsol Parter: zona de zi - hol intrare de 4,5 mp + hol interior de 7,8 mp - living generos de 30 mp cu zona de relaxarae - bucatarie de 11 mp + zona de diding de 8 mp - grup sanitar de 5,4 mp, cu fereastra - ideal pentru aerisire naturala MANSARDA: zona de noapte - hol de 5 mp - 3 dormitoare de 15 mp (plus debara de 1 mp), 17 mp si 10,6 mp - baie de 6,4 mp, cu cada si fereastra - ideal pentru aerisire naturala - baie de 4 mp cu cabina dus + debara de 1 mp; cu fereastra - ideal pentru aerisire naturala - balcon de 4,6 Informatii & detalii tehnice: - intabulare cadastru (Certificat de Edificare si fisa ROL) - suprafata construita desfasurata de 205 mp - suprafata utila 170 mp - teren de 450 mp aflat la intersectia a doua strazi largi, intr-o zona aerisita, care beneficiaza de intimitate - casa are tamplarie exterioara, cu geam termopan - acoperis cu tigla Bramac - termoizolatie pereti 10 cm, iar la acoperis 28 cm. - curtea este ingradita, cu vie si pomi fructiferi. Utilitatile publice (curent, gaz, apa, canalizare) sunt toate prezente la strada, la limita proprietatii! Va stau la dispozitie pentru orice alte detalii si informatii si pentru vizionare! Alina Dinoiu Pentru mai multe ofert, va invit aici:
Citește mai mult Citește mai puțin
Grădină Curte Necesită renovare

Detalii casă

ID anunț: 2649676 Actualizat în: 21 Februarie 2026
Nr. camere: 6
Suprafață utilă: 170 mp
Suprafață utilă totală: 170 mp
Nr. băi: 3
Suprafață teren: 450 mp
An construcție: 2021

Istoric preț

Facilități

Utilități
Curent Apă Canalizare Gaze
Ușă intrare
Metal
Stare interior
Necesită renovare
Izolații termice
Exterior
Diverse
Scară interioară
Alte spații utile
WC Serviciu
Facilități imobil
Curte Grădină
Amenajare străzi
Mijloace de transport în comun De pământ

Puncte de interes

Mijloace transport
transport
Aeroportul Internaţional Băneasa (Aurel Vlaicu) - LRBS (BBU)
Mijloace transport aprox. 554 m
transport
Capat C.F.R Constanta linii : 112,135,445
Mijloace transport aprox. 1623 m
transport
Jolie Ville Baneasa
Mijloace transport aprox. 1627 m
transport
Statia Pipera S.A., linia 135, N119, 112
Mijloace transport aprox. 1844 m
Școală
education
Gradinita Zece
Învățământ aprox. 1424 m
education
Grupul Şcolar de Aeronautică "Henri Coandă".
Învățământ aprox. 1513 m
education
Parc avioane Grup Scolar de Aeronautica "H. Coanda"
Învățământ aprox. 1546 m
education
Mark Twain International School
Învățământ aprox. 1595 m
Recreere
parks
Loc de joaca
Recreere aprox. 1193 m
restaurants
Phill
Restaurante aprox. 1292 m
shopping
Jolie Ville Galleria
Supermarket/Mall aprox. 1551 m
shopping
Mega Image Jolie Ville
Supermarket/Mall aprox. 1562 m

Proprietăți similare

Casă individuală cu 5 camere cu Canalizare în Central
289.000 €
Județul Ilfov, Voluntari
5 camere
101 mp
60 mp teren
Casă individuală cu 6 camere cu Canalizare în Central
289.000 €
Județul Ilfov, Voluntari
6 camere
186,3 mp
100 mp teren
Casă individuală cu 4 camere cu Canalizare în Central
305.000 €
Județul Ilfov, Voluntari
4 camere
170 mp
305 mp teren
Casă individuală cu 4 camere cu Canalizare în Central
305.000 €
Județul Ilfov, Voluntari
4 camere
130 mp
300 mp teren
Casă individuală cu 4 camere cu Canalizare în Central
270.000 € + TVA
Județul Ilfov, Voluntari
4 camere
180 mp
250 mp teren
Casă individuală cu 4 camere cu Teren 260 Mp în Central
255.000 €
Județul Ilfov, Voluntari
4 camere
160 mp
260 mp teren
Casă individuală cu 4 camere cu Canalizare în Ultracentral
299.999 €
Județul Ilfov, Voluntari
4 camere
140 mp
300 mp teren
Casă individuală cu 4 camere cu Canalizare în Voluntari
299.999 €
Județul Ilfov, Voluntari
4 camere
180 mp
300 mp teren
Casă individuală cu 4 camere cu Canalizare în Voluntari
299.900 €
Județul Ilfov, Voluntari
4 camere
138 mp
300 mp teren

Abonează-te la newsletter să fii primul care primește cele mai noi recomandări de proprietăți și sfaturi de la experți.