
2 săptămâni în urmă
9
- Agenție
Simona Gifu
136.000 €
Actualizat pe: 16 Oct 2025
-
Gara Valu lui Traian hc
aprox. 1132 m -
Valu lui Traian HC
aprox. 1478 m
CASA DE VANZARE | VALU LUI TRAIAN | TEREN CONCESIUNE
136.000 €
Valu lui Traian, Județul Constanța
Descriere
Raportează anunț
Sesizează o problemă
CASA DE VANZARE | VALU LUI TRAIAN | TEREN CONCESIUNE
CASA DE VANZARE | VALU LUI TRAIAN | TEREN CONCESIUNE
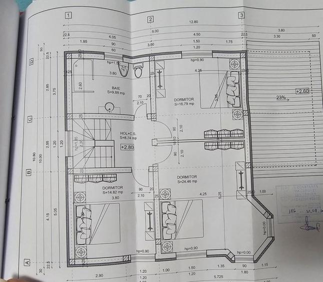
Casa deosebita de vânzare – proiect unic, parter + mansarda înalta!
Suprafata utila: 167 mp | Suprafata construita desfasurata: 217 mp | Amprenta la sol: 119 mp Deschidere la strada: 20 ml | Teren: 459 mp
Va propun spre vânzare o casa construita pentru uz propriu, cu un proiect deosebit, spatii generoase si o compartimentare eficienta, ideala pentru o familie care cauta confort si functionalitate.
Compartimentare:
Parter:
Living generos – 40 mp
Bucatarie separata – 10 mp
Baie
Debara
Garaj spatios – 19.55 mp
Mansarda înalta:
3 dormitoare (14 mp / 16 mp / 24 mp)
1 baie
Alte detalii importante:
Casa construita cu materiale premium, pentru uz propriu
Se vinde la stadiul de constructie – la rosu
Cadastru si intabulare realizate
Utilitatile – urmeaza sa fie depuse actele
Locatia ofera liniste, acces facil si o deschidere generoasa la strada de 20 metri liniari.
Pentru mai multe informatii sau vizionare, nu ezitati sa ma contactati!
Casa ideala pentru a fi personalizata dupa propriul gust.
Citește mai mult
Citește mai puțin
ID anunț: 65565
Actualizat în: 16 Octombrie 2025
Nr. camere:
4
Suprafață utilă:
81 mp
Suprafață utilă totală:
81 mp
Nr. băi:
2
Suprafață teren:
459 mp
Front stradal:
20 m
An construcție:
2024
Regim înălțime:
P+1E
Istoric preț
Utilități
Facilități
Curte
Garaj
Proprietăți similare
Abonează-te la newsletter să fii primul care primește cele mai noi recomandări de proprietăți și sfaturi de la experți.
Căutări similare
- Case individuale de vânzare în Valu lui Traian
- Case individuale de vânzare în Constanța
- Case individuale de vânzare în Cumpăna
- Case individuale de vânzare în Ovidiu
- Case individuale de vânzare în Năvodari
- Case individuale de vânzare în Agigea
- Case individuale de vânzare în Mamaia-Sat
- Case individuale de vânzare în Lumina
- Case individuale de vânzare în Eforie Nord
- Case individuale de vânzare în Lazu
- Case individuale de vânzare în Mamaia
- Case individuale de vânzare în Eforie Sud