Casa Parter cu 5 camere si pompa de caldura in Nordul Bucureștiului

199.500 €

Tunari, Judeţul Ilfov

Nr. camere:
5
Suprafață utilă:
139 mp
Suprafață teren:
400 mp

Descriere casă

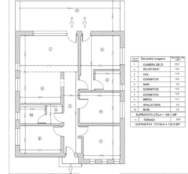
Această casă noua oferă 139mp, 5 camere, 2 bai, bucatarie, camera tehnica, fiind nemobilată și neutilată. Recent construită are finisaje de înaltă calitate, design elegant si finisaje premium. Amplasata pe un teren generos de 400 de metri patrati, vila dispune de o suprafata interioara de 109 de metri patrati si un pod spatios de 90 de metri patrati pentru depozitare. Cu un living spatios, patru dormitoare si doua bai. Casa este construita conform standardelor de casă pasivă, ceea ce înseamnă că au o eficiență energetică crescută și asigură economii semnificative la facturile de utilități. Dotata cu Încălzire în pardoseală si pompa de căldură. Locația este ideală, in sudul localității Tunari, imediat dupa intrarea dinspre Pipera, având acces ușor la transport public. Stațiile de autobuz sunt la o distanță mică de mers pe jos. În apropiere, se află supermarket Lidl si Penny, ceea ce îți va facilita cumpărăturile zilnice. Zona este urbană, cu o atmosferă vibrantă și accesibilitate bună. Nu rata ocazia de a viziona această proprietate! Programează o vizionare și descoperă potențialul acestei case.
Citește mai mult Citește mai puțin
Nemobilat Renovat

Detalii casă

ID anunț: 2433162 Actualizat în: 26 Martie 2026
Nr. camere: 5
Suprafață utilă: 139 mp
Suprafață utilă totală: 139 mp
Suprafață teren: 400 mp
An construcție: 2026

Istoric preț

Facilități

Utilități
Apă Canalizare Internet
Mobilat
Nemobilat
Stare interior
Renovat

Puncte de interes

Școală
education
School American Bucharest-Voluntari
Învățământ aprox. 894 m
education
Scoala Americana
Învățământ aprox. 957 m
education
American International School of Bucharest (en)
Învățământ aprox. 960 m
education
Scoala Nr. 1 Tunari
Învățământ aprox. 1562 m
Recreere
parks
Teren sportiv
Recreere aprox. 847 m
parks
Parc
Recreere aprox. 873 m
parks
Teren sportiv
Recreere aprox. 1009 m
shopping
Mega Image Pipera Liziera
Supermarket/Mall aprox. 1667 m

Proprietăți similare

Casă individuală cu 4 camere cu Teren 300 Mp în Tunari
180.000 €
Județul Ilfov, Tunari
4 camere
85,4 mp
300 mp teren
Casă individuală cu 4 camere cu Canalizare în Tunari
215.000 € + TVA
Județul Ilfov, Tunari
4 camere
128 mp
415 mp teren
Casă individuală cu 4 camere cu Canalizare în Tunari
210.000 € + TVA
Județul Ilfov, Tunari
4 camere
150 mp
350 mp teren
Casă individuală cu 5 camere cu Canalizare în Tunari
200.000 € + TVA
Județul Ilfov, Tunari
5 camere
110 mp
500 mp teren
Casă individuală cu 5 camere cu Teren 300 Mp în Tunari
194.900 €
Județul Ilfov, Tunari
5 camere
138 mp
300 mp teren
Casă individuală cu 5 camere cu Teren 300 Mp în Tunari
208.000 €
Județul Ilfov, Tunari
5 camere
130 mp
300 mp teren
Casă individuală cu 4 camere cu Teren 330 Mp în Tunari
210.000 €
Județul Ilfov, Tunari
4 camere
96 mp
330 mp teren
Casă individuală cu 3 camere cu Canalizare în Tunari
179.900 €
Județul Ilfov, Tunari
3 camere
90 mp
350 mp teren
Casă individuală cu 5 camere cu Teren 300 Mp în Tunari
208.000 €
Județul Ilfov, Tunari
5 camere
130 mp
300 mp teren

Abonează-te la newsletter să fii primul care primește cele mai noi recomandări de proprietăți și sfaturi de la experți.