De Vânzare: Casă cu Teren în Zona Lunei, Timișoara

280.000 €

Lunei, Timişoara

Nr. camere:
5
Suprafață utilă:
154,4 mp
Suprafață teren:
911 mp

Descriere casă

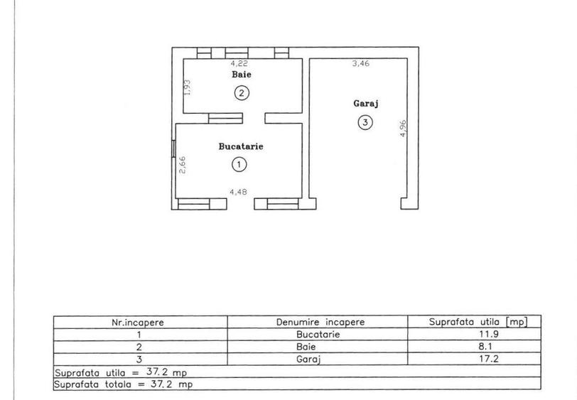
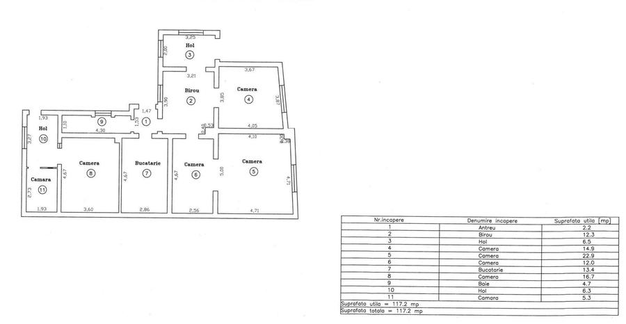
Casă individuală de vânzare, zona Lunei – Timișoara, teren generos 911 mp Vă propunem spre vânzare o casă individuală situată într-o zonă liniștită și bine cotată – zona Lunei, Timișoara. Proprietatea este amplasată pe un teren generos de 911 mp în proprietate, cu o grădină frumos amenajată și multiple anexe utile. Casa este dispusă pe parter și este compartimentată funcțional astfel: 4 camere spațioase birou, ideal pentru lucru de acasă bucătărie, cămara și 2 holuri antreu primitor baie complet utilată În curte se află: garaj bucătărie de vară cu baie anexe pentru depozitare și utilitate Locuința dispune de toate utilitățile: apă, gaz, canalizare, curent, iar accesul se face pe o stradă liniștită, în apropiere de școli, magazine, mijloace de transport și alte puncte de interes. Se vinde complet mobilată, ideală pentru locuit imediat, fără investiții suplimentare.
Citește mai mult Citește mai puțin
Parțial mobilat Grădină Curte Calorifere Centrală proprie Beci Necesită renovare

Detalii casă

ID anunț: 834828 Actualizat în: 20 Ianuarie 2026
Nr. camere: 5
Suprafață utilă: 154,4 mp
Suprafață utilă totală: 154,4 mp
Nr. băi: 2
Suprafață teren: 911 mp
An construcție: 1975

Istoric preț

Facilități

Jaluzele
Verticale
Pereți
Faianță Vopsea lavabilă
Podele
Gresie Parchet Marmură
Rulouri/Obloane
Lemn PVC
Ușă intrare
Parchet Lemn Metal PVC
Uși interior
Lemn PVC Sticlă
Stare interior
Necesită renovare
Ferestre cu geam termopan
Lemn PVC
Contorizare
Apometre Contor gaz
Bucătărie
Parțial utilată
Mobilat
Parțial mobilat
Alte spații utile
Pivniță WC Serviciu
Facilități imobil
Acoperiș Curte Grădină
Utilități
Curent Apă Canalizare Gaze Cablu
Sistem încălzire
Calorifere Centrală proprie
Internet
Cablu
Amenajare străzi
Iluminat stradal Mijloace de transport în comun Asfaltate

Puncte de interes

Mijloace transport
transport
Statie Stefan cel Mare A21
Mijloace transport aprox. 389 m
transport
Baba Dochia
Mijloace transport aprox. 454 m
transport
Statie Baba Dochia E8, A21
Mijloace transport aprox. 463 m
transport
Statie Levantica A21
Mijloace transport aprox. 469 m
Școală
education
Scoala Gimnaziala nr. 1
Învățământ aprox. 507 m
education
ŞCOALA GIMNAZIALĂ NR.1
Învățământ aprox. 518 m
education
Scoala Generala nr. 5
Învățământ aprox. 613 m
education
Gradinita Program Normal Nr. 5
Învățământ aprox. 619 m
Recreere
restaurants
Orizont Club
Restaurante aprox. 345 m
parks
recreational park
Recreere aprox. 362 m
shopping
Profi
Supermarket/Mall aprox. 568 m
shopping
Profi
Supermarket/Mall aprox. 1073 m

Proprietăți similare

Casă individuală cu 5 camere cu Canalizare în Lunei
260.000 €
Timișoara, Lunei
5 camere
152 mp
475 mp teren
Casă individuală cu 5 camere cu Canalizare în Lunei
279.990 €
Timișoara, Lunei
5 camere
140 mp
396 mp teren
Casă individuală cu 5 camere cu Canalizare în Lipovei
255.000 €
Timișoara, Lipovei
5 camere
126 mp
343 mp teren
Casă individuală cu 5 camere cu Canalizare în Braytim
300.000 €
Timișoara, Braytim
5 camere
135 mp
600 mp teren
Casă individuală cu 3 camere cu Canalizare în Buziașului
289.700 €
Timișoara, Buziașului
3 camere
135 mp
327 mp teren
Casă individuală cu 8 camere cu Canalizare în Traian
295.000 €
Timișoara, Traian
8 camere
220 mp
548 mp teren
Casă individuală cu 6 camere cu Canalizare în Șagului
289.000 €
Timișoara, Șagului
6 camere
151 mp
314 mp teren
Casă individuală cu 5 camere cu Canalizare în Braytim
270.000 €
Timișoara, Braytim
5 camere
175 mp
223 mp teren
Casă individuală cu 3 camere cu Teren 804 Mp în Tipografilor
300.000 €
Timișoara, Tipografilor
3 camere
100 mp
804 mp teren

Abonează-te la newsletter să fii primul care primește cele mai noi recomandări de proprietăți și sfaturi de la experți.