Casă individuală 2 camere zona Girocului teren 358 mp 0% comision

120.000 €

Girocului, Timişoara

Nr. camere:
2
Suprafață utilă:
73,49 mp
Suprafață teren:
359 mp

Descriere casă

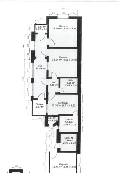
Casă individuală situată în zona Girocului, pe strada Gavril Musicescu, la intersecția cu Calea Martirilor 1989, într-o zonă bine conectată la oraș și aproape de puncte de interes importante. Proprietatea este construită în 1970 și are o suprafață utilă de 73,49 mp, amplasată pe un teren de 358 mp, cu front stradal de 8,59 ml. Casa necesită renovare, oferind posibilitatea de a fi amenajată după preferințele viitorului proprietar. Compartimentare 2 camere Bucătărie Grup sanitar Spațiu de depozitare Hol Dotări și beneficii Centrală termică Geamuri termopan Acces auto în curte pentru până la 3 mașini Teren generos cu potențial de amenajare Poziționarea este un avantaj major, cu acces rapid către mijloace de transport, magazine, școli și principalele artere ale orașului. 0% comision pentru cumpărător Pentru detalii și programarea unei vizionări, contactați-mă.
Citește mai mult Citește mai puțin
Mobilat Grădină Curte Calorifere Centrală proprie Necesită renovare

Detalii casă

ID anunț: 3503709 Actualizat în: 15 Martie 2026
Nr. camere: 2
Suprafață utilă: 73,49 mp
Suprafață utilă totală: 73,49 mp
Nr. băi: 1
Suprafață teren: 359 mp
An construcție: 1970

Istoric preț

Facilități

Pereți
Vopsea lavabilă Faianță
Podele
Parchet Gresie
Ușă intrare
Parchet PVC Lemn
Uși interior
PVC Lemn
Stare interior
Necesită renovare
Ferestre cu geam termopan
PVC Lemn
Contorizare
Apometre Contor gaz
Bucătărie
Mobilată
Mobilat
Mobilat
Facilități imobil
Curte Grădină
Utilități
Curent Apă Canalizare Gaze
Sistem încălzire
Centrală proprie Calorifere
Amenajare străzi
Asfaltate Iluminat stradal

Puncte de interes

Mijloace transport
transport
Statie Mures E3
Mijloace transport aprox. 167 m
transport
Mures
Mijloace transport aprox. 175 m
transport
Mures
Mijloace transport aprox. 185 m
transport
Statie Maresal C-tin Prezan T15, T19
Mijloace transport aprox. 361 m
Școală
education
Colegiul Tehnic Azur
Învățământ aprox. 471 m
education
Scoala Generala nr. 25
Învățământ aprox. 473 m
education
Scoala Gimnaziala nr. 25
Învățământ aprox. 473 m
education
COLEGIUL TEHNIC "AZUR"
Învățământ aprox. 482 m
Recreere
shopping
Lidl
Supermarket/Mall aprox. 98 m
restaurants
Il Peperoncino
Restaurante aprox. 199 m
parks
Parcul Triade
Recreere aprox. 215 m
shopping
Profi
Supermarket/Mall aprox. 274 m

Proprietăți similare

Casă individuală cu 2 camere cu Canalizare în Freidorf
114.990 €
Timișoara, Freidorf
2 camere
80 mp
250 mp teren
Casă individuală cu 2 camere cu Teren 362 Mp în Șagului
130.000 €
Timișoara, Șagului
2 camere
76 mp
362 mp teren
Casă individuală cu 2 camere cu Canalizare în Freidorf
114.900 €
Timișoara, Freidorf
2 camere
80 mp
200 mp teren
Casă individuală cu 3 camere cu Teren 300 Mp în Exterior Vest
118.000 €
Timișoara, Exterior Vest
3 camere
63 mp
300 mp teren
Casă individuală cu 6 camere cu Canalizare în Torontalului
120.000 € + TVA
Timișoara, Torontalului
6 camere
190 mp
600 mp teren
Casă individuală cu 6 camere cu Canalizare în Șagului
124.990 €
Timișoara, Șagului
6 camere
148 mp
748 mp teren
Casă individuală cu 12 camere cu Canalizare în Complex Studențesc
127.900 €
Timișoara, Complex Studențesc
12 camere
180 mp
406 mp teren
Casă individuală cu 3 camere cu Teren 265 Mp în Exterior Vest
125.000 €
Timișoara, Exterior Vest
3 camere
80 mp
265 mp teren
Casă individuală cu 3 camere cu Teren 167 Mp în Exterior Nord
129.900 €
Timișoara, Exterior Nord
3 camere
73 mp
167 mp teren

Abonează-te la newsletter să fii primul care primește cele mai noi recomandări de proprietăți și sfaturi de la experți.