Vanzare casa foarte solida,renovata impecabil.Zona Freidorf.

185.100 €

Freidorf, Timişoara

Nr. camere:
3
Suprafață utilă:
90 mp
Suprafață teren:
600 mp

Descriere casă

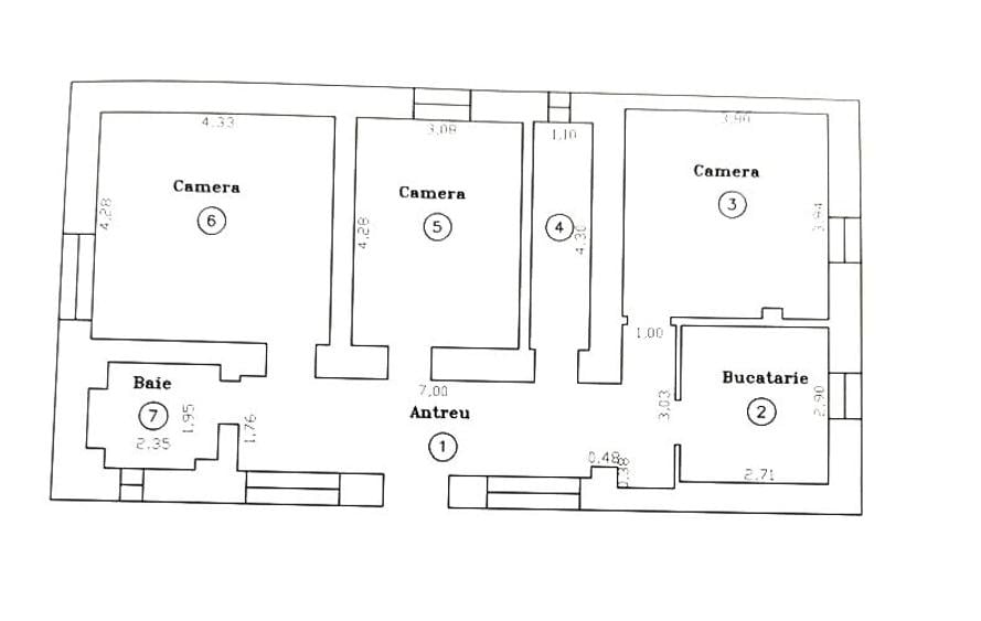
Casa individuala,foarte solida,renovata impecabil,situata in zona Freidorf,str.Romanitei. Compartimentare: -hol acces/trenzit -baie -camera de zi -dormitor -camera depozitare -dormitor -bucatarie -in curte se afla o anexa pentru depozitare -pod Casa este construita din caramida arsa,izolata termic pe exterior si placata cu gips carton pe interior,zidurile exterioare au cca 60 cm,iar cele interioare vcca 40 cm A fost renovata recent,schimbandu-se toate instalatiile de curent,apa,canalizare. Casa dispune de toate utilitatile : gaz,curent,apa si canalizare. In spatele casei o oaza de liniste,pomi fructiferi,loc de joaca pentru copii,foisor,un loc ideal de petrecerea timpului cu familia.
Citește mai mult Citește mai puțin
Aer condiționat Calorifere Centrală proprie Renovat Bine întreținut (Bună)

Detalii casă

ID anunț: 1061815 Actualizat în: 02 Ianuarie 2026
Nr. camere: 3
Suprafață utilă: 90 mp
Suprafață utilă totală: 90 mp
Nr. băi: 1
Suprafață teren: 600 mp
Front stradal: 10 m
An construcție: 1940

Istoric preț

Facilități

Pereți
Faianță Vopsea lavabilă
Rulouri/Obloane
PVC Lemn
Ușă intrare
PVC Lemn
Uși interior
PVC Lemn
Stare interior
Renovat Stare bună
Izolații termice
Exterior
Ferestre cu geam termopan
PVC Lemn
Utilități
Curent Apă Canalizare Cablu
Sistem încălzire
Centrală proprie Calorifere
Internet
Cablu
Climatizare
Aer condiționat
Bucătărie
Mobilată
Diverse
Senzor de fum
Alte spații utile
Spațiu depozitare Anexe
Amenajare străzi
Asfaltate Iluminat stradal
Facilități
Mobilat

Puncte de interes

Mijloace transport
transport
Statie Rascoala 1907 E7 si M36
Mijloace transport aprox. 234 m
transport
Statie Polona E7 si M36
Mijloace transport aprox. 383 m
transport
Timisoara Vest
Mijloace transport aprox. 437 m
transport
Gara Timişoara Vest
Mijloace transport aprox. 443 m
Școală
education
Gradinita Program Prelungit Nr. 7
Învățământ aprox. 488 m
education
Scoala Generala nr. 29
Învățământ aprox. 512 m
education
Şcoala generală nr.29
Învățământ aprox. 527 m
education
LICEU TEHNOLOGIC INDUSTRIAL TRANSPORTURI AUTO
Învățământ aprox. 1004 m
Recreere
restaurants
Cantina Restaurant Bavaria (en)
Restaurante aprox. 948 m
parks
Parc
Recreere aprox. 1051 m
parks
Piata Petofi Sandor
Recreere aprox. 1101 m
parks
Parcul Petofi Sandor
Recreere aprox. 1106 m

Proprietăți similare

Casă individuală cu 4 camere cu Canalizare în Freidorf
195.000 €
Timișoara, Freidorf
4 camere
91 mp
186 mp teren
Casă individuală cu 3 camere cu Teren 600 Mp în Freidorf
185.000 €
Timișoara, Freidorf
3 camere
90 mp
600 mp teren
Casă individuală cu 4 camere cu Teren 486 Mp în Plopi
179.900 €
Timișoara, Plopi
4 camere
86,07 mp
486 mp teren
Casă individuală cu 6 camere cu Teren 500 Mp în Mehala
199.000 €
Timișoara, Mehala
6 camere
200 mp
500 mp teren
Casă individuală cu 3 camere cu Canalizare în Telegrafului
199.990 €
Timișoara, Telegrafului
3 camere
102 mp
510 mp teren
Casă individuală cu 4 camere cu Canalizare în Elisabetin
180.000 €
Timișoara, Elisabetin
4 camere
512 mp
512 mp teren
Casă individuală cu 9 camere cu Canalizare în Telegrafului
185.000 €
Timișoara, Telegrafului
9 camere
180 mp
260 mp teren
Casă individuală cu 4 camere cu Canalizare în Plopi
177.500 €
Timișoara, Plopi
4 camere
130 mp
540 mp teren
Casă individuală cu 3 camere cu Canalizare în Girocului
190.000 €
Timișoara, Girocului
3 camere
117 mp
550 mp teren

Abonează-te la newsletter să fii primul care primește cele mai noi recomandări de proprietăți și sfaturi de la experți.