De vanzare Strada Memorandului Timisoara Oportunitate de afacere

€ 600.000

Bălcescu, Timişoara

Nr. camere:
11
Suprafață utilă:
260 mp
Suprafață teren:
234 mp
Nr. niveluri:
2

Descriere

Raportează anunț

De vanzare Strada Memorandului Timisoara Oportunitate de afacere

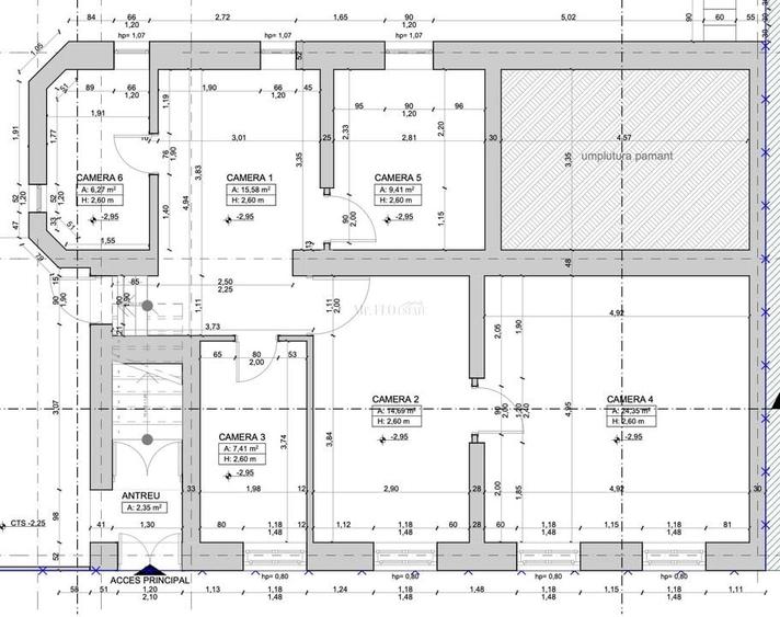
Se oferă spre vânzare o proprietate unică, ideală pentru dezvoltarea unei afaceri într-o zonă foarte accesibilă a Timișoarei. Situată pe Strada Memoorandului, Nr. 3, Jud. Timiș, această clădire oferă multiple posibilități de utilizare comercială sau rezidențială. Proprietatea include un spațiu comercial cu funcțiunea de cabinet de tehnică dentară, construit în anul 2021, având un design modern și o compartimentare eficientă. Detalii proprietate: • Teren: 234 mp • Construcție la sol: 129 mp • Suprafață utilă totală clădire: 259,44 mp • Suprafață construită total mansardă: 123 mp • Suprafață utilă totală mansardă: 94,72 mp • Peste 11 camere • Multiple băi • Construcție solidă, finisaje bune și posibilitate de adaptare pentru diverse activități • Parcări private + pe stradă in fata clădirii Avantaje: • Poziționare excelentă, aproape de centrul Timișoarei • Acces rapid la stații de tramvai și autobuz • Zonă bine conectată, accesibilă din mai multe direcții • Ideală pentru cabinet medical, birouri, clinică, spații comerciale, sediu de firmă sau chiar investiție pentru închiriere O oportunitate rară pentru antreprenori sau investitori care caută un spațiu generos, modern și situat strategic.
Citește mai mult Citește mai puțin
ID anunț: 2691995 Actualizat în: 20 Decembrie 2025
Nr. camere: 11
Suprafață utilă: 260 mp
Suprafață utilă totală: 260 mp
Nr. băi: 3
Suprafață teren: 234 mp
An construcție: 2021
Regim înălțime: P+2E

Istoric preț

Utilități

Utilități
Apă Canalizare Curent Gaze

Proprietăți similare

Casă individuală cu 5 camere cu Teren 523 Mp în Bălcescu
€ 620.000
Timișoara, Bălcescu
5 camere
244,91 mp
523 mp teren
Casă individuală cu 6 camere cu Canalizare în Bălcescu
€ 550.000
Timișoara, Bălcescu
6 camere
198 mp
920 mp teren
Casă individuală cu 13 camere cu Canalizare în Olimpia-Stadion
€ 550.000
Timișoara, Olimpia-Stadion
13 camere
540 mp
650 mp teren
Casă individuală cu 10 camere cu Canalizare în Freidorf
€ 620.000
Timișoara, Freidorf
10 camere
564 mp
3.785 mp teren
Casă individuală cu 5 camere cu Canalizare în Lipovei
€ 597.000
Timișoara, Lipovei
5 camere
201 mp
1.104 mp teren
Casă individuală cu 8 camere cu Canalizare în Mehala
€ 630.000
Timișoara, Mehala
8 camere
590 mp
750 mp teren
Casă individuală cu 12 camere cu Canalizare în Elisabetin
€ 630.000
Timișoara, Elisabetin
12 camere
406 mp
694 mp teren
Casă individuală cu 5 camere cu Canalizare în Girocului
€ 550.000
Timișoara, Girocului
5 camere
167 mp
628 mp teren
Casă individuală cu 7 camere cu Canalizare în Braytim
€ 569.000
Timișoara, Braytim
7 camere
356 mp
500 mp teren

Abonează-te la newsletter să fii primul care primește cele mai noi recomandări de proprietăți și sfaturi de la experți.