
2 luni în urmă
10
- Dezvoltator
Casa la rosu TEREN 5533 mp_Ocazie_Echitatie/Primaria Tartasesti
150.000 €
+ TVA
Tărtășești, Județul Dâmbovița
Descriere
Raportează anunț
Sesizează o problemă
Casa la rosu TEREN 5533 mp_Ocazie_Echitatie/Primaria Tartasesti
Casa la rosu TEREN 5533 mp_Ocazie_Echitatie/Primaria Tartasesti
Ocazie unica. - se vinde de urgenta
Localizare
In Nord-Vestul Capitalei la Km 17 fata de Centura Bucuresti, pe DN 7, imediat dupar Sabareni/ Gulia, situat chiar intre institutiile publice, respectiv la 700 m de Primaria/ de Jandarmeria si de Politia Tartasesti. Dati copy/paste la aceste coordonate chiar in sectiunea Cautare de pe Google: 44°34'48.9"N 25°49'30.6"E
Descriere proprietate:
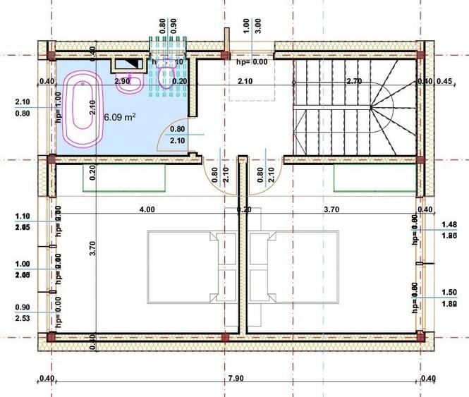
- Casa se vind e in stadiul de rosu si are supr. de 132 mp, P+M, din beton armat si caramida ceramica Portoherm, acoperita cu tabla de tip click marca Bilka, cu pivnita si cu o fundatie suprasolida de 180 cm pana la cota zero. Are un stil modern de tip Nordic care face parte dintr-un cartier rezidential in dezvoltare ce imbina mai multe modele de case respectiv din 2 sau 3 camere, cu etaj sau doar pe parter, precum si din tiny house-uri ce vor insuma peste 50 de locuinte.
- terenul aferent foarte generos de tip intravilan, construibil, avand supr. de 5.533 mp care deja este divizat in loturi mai mici de 503 mp fiecare. Aveti o OCAZIE unica asadar de a valorifica aceste loturi in mai multe feluri: fie ca dezvoltare imobiliara, acestea avand chiar si AUTORIZATII de cosntructie emise pe ele, fie ca si teren aferent locuintei achizitionate.
Utilitati
- gaze - in curs de racordare (sunt pe aceeasi strada)
- apa-din put forat la 30 m, a doua panza (apa centrala nu exista in comuna)
- fosa septica tricamerala de 3 tone, cu drenaj de 12 m lungime (autonoma, se vidanjeaza doar profilactic o data la cativa ani)
- curent electric - se va face cerere de racordare la Primarie, desi un sistem fotovoltaic de 10 KW cu un bank de baterii de 30 KW - investitie de 10 mii de eur - este arhisuficient);
Exista si varianta de locuinta 100% autonoma cu costuri lunare zero daca apelam la urmatorul sistem de incalzire:
- centrala geotermica la o adancime de 1,5 m subteran pe o supr. de 200 mp, marca Tifui (vedeti George Buhnici, va transmit oferta pe Whatsapp), insotita de incalzire in pardoseala cu pompa de caldura. Pretul acestei centrale este de 12 eur plus TVA, investitie care se recupereaza in maxim 4 ani de utilizare, avand o durata de viata garantata de 30 de ani.
Alternativ se poate merge si cu centrala de tip termosemineu automatizat (sistem modern cu pornire si setare temp. din display) pe peleti sau cu centrala alimentata pe gaz GPL, care cuplate la sistemul de incalizre in pardoseala reusesc sa aiba un randament foarte bun cu un cost redus.
Va stau la dispozitie pentru orice este nevoie pe Whatsapp/ telefon unde va transmit localizarea, prezentarea si filmarile. Cu stima. Alexandru Cristea
Citește mai mult
Citește mai puțin
ID anunț: 4303075
Actualizat în: 11 Septembrie 2025
Nr. camere:
3
Suprafață utilă:
132 mp
Suprafață utilă totală:
132 mp
Nr. băi:
2
Suprafață teren:
5.533 mp
Front stradal:
19 m
An construcție:
2024
Regim înălțime:
P+2E
Istoric preț
Utilități
Utilități
Apă
Canalizare
Proprietăți similare
Abonează-te la newsletter să fii primul care primește cele mai noi recomandări de proprietăți și sfaturi de la experți.
Căutări similare
- Case individuale de vânzare în Tărtășești
- Case individuale de vânzare în Târgoviște
- Case individuale de vânzare în Crevedia
- Case individuale de vânzare în Ciocănești
- Case individuale de vânzare în Valea Voievozilor
- Case individuale de vânzare în Gemenea-Brătulești
- Case individuale de vânzare în Gheboieni
- Case individuale de vânzare în Raciu
- Case individuale de vânzare în Râncăciov
- Case individuale de vânzare în Vlădeni