Casa noua premium 5 camere si teren 497 mp - Sura Mica Sibiu

203.000 € + TVA

Şura Mică, Judeţul Sibiu

Nr. camere:
5
Suprafață utilă:
136 mp
Suprafață teren:
497 mp
Nr. niveluri:
1

Descriere casă

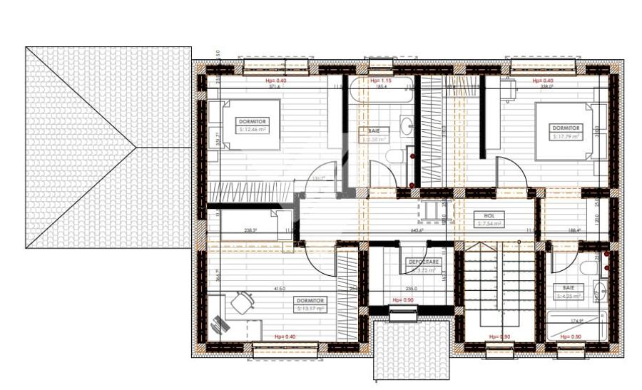
Va propunem spre vanzare o casa de tip single moderna, spatioasa si eficienta energetic, situata intr-un ansamblu nou din Șura Mica, la doar cateva minute de Sibiu – o zona linistita, cu aer curat si acces facil catre oras. Ansamblu cu infrastructura completa, spatii verzi si loc de joaca, care include case individuale si duplexuri de diferite tipuri, proiectate pentru confortul si nevoile fiecarei familii. Casa single tip 1 are o suprafata utila de 136 mp si este amplasat pe un teren de 497 mp, cu gradina proprie de 386 mp, terasa acoperita si doua locuri de parcare pavate in fata casei. Compartimentare inteligenta: - Living spatios + dining cu acces direct pe terasa - Bucatarie separata - un dormitor la parter - 3 dormitoare la etaj - 3 bai - Holuri, spatii de depozitare si pod generos Stadiu de predare: - Exterior la cheie – fatada cu tencuiala decorativa, gard alb stil american, alei si trotuare pavate; - Interior la gri avansat – pereti tencuiti, gletuiti, amorsa; pardoseli cu sapa mecanizata; instalatii electrice si sanitare complete (fara obiecte sanitare); centrala termica Ariston 24 kW; incalzire in pardoseala Uponor; tamplarie PVC cu 3 foi de sticla; usa la intrare montata. Structura si finisaje: - Cadre din beton armat, zidarie portanta caramida 25 cm; - Termoizolatie polistiren 15 cm; - Acoperis tip sarpanta din lemn, tigla ceramica gri; - Terasa acoperita; glafuri exterioare; contoare montate la limita de proprietate. Pret: 203.000 € +TVA Modalitati flexibile de plata acceptate: - plata integrala prin transfer bancar; - rate direct la dezvoltator pana la 7 ani, avans minim 25%; - plata in transe in functie de stadiul lucrarilor; - credit bancar, avans minim 20%; - plata in criptomonede (EGLD, BTC, USDT si altele). Aici viata de familie capata o noua dimensiune. Acest duplex iti ofera intimitate, spatiu si confort, intr-un ansamblu modern, bine organizat, aproape de tot ce conteaza. Suna chiar acum si programeaza o vizionare!
Citește mai mult Citește mai puțin
Curte Centrală proprie

Detalii casă

ID anunț: 3516270 Actualizat în: 16 Februarie 2026
Nr. camere: 5
Suprafață utilă: 136 mp
Suprafață utilă totală: 136 mp
Nr. băi: 3
Suprafață teren: 497 mp
Regim înălțime: P+1E

Istoric preț

Facilități

Utilități
Curent Apă Canalizare Gaze
Sistem încălzire
Centrală proprie
Ușă intrare
Metal PVC
Izolații termice
Exterior
Ferestre cu geam termopan
PVC
Alte spații utile
Spațiu depozitare
Facilități imobil
Curte
Amenajare străzi
Asfaltate Iluminat stradal

Proprietăți similare

Casă individuală cu 5 camere cu Canalizare în Șura Mică
184.000 € + TVA
Județul Sibiu, Șura Mică
5 camere
121 mp
468 mp teren
Casă individuală cu 4 camere cu Canalizare în Șura Mică
214.000 €
Județul Sibiu, Șura Mică
4 camere
120 mp
400 mp teren
Casă individuală cu 4 camere cu Canalizare în Șura Mică
220.000 €
Județul Sibiu, Șura Mică
4 camere
156 mp
504 mp teren
Casă individuală cu 4 camere cu Canalizare în Șura Mică
198.000 €
Județul Sibiu, Șura Mică
4 camere
116 mp
450 mp teren
Casă individuală cu 5 camere cu Canalizare în Șura Mică
185.000 €
Județul Sibiu, Șura Mică
5 camere
120 mp
270 mp teren
Casă individuală cu 5 camere cu Canalizare în Șura Mică
198.000 €
Județul Sibiu, Șura Mică
5 camere
109,34 mp
441 mp teren
Casă individuală cu 3 camere cu Canalizare în Șura Mică
215.000 €
Județul Sibiu, Șura Mică
3 camere
105 mp
400 mp teren
Casă individuală cu 4 camere cu Canalizare în Șura Mică
214.000 €
Județul Sibiu, Șura Mică
4 camere
129 mp
390 mp teren
Casă individuală cu 4 camere cu Canalizare în Șura Mică
207.000 €
Județul Sibiu, Șura Mică
4 camere
95 mp
500 mp teren

Abonează-te la newsletter să fii primul care primește cele mai noi recomandări de proprietăți și sfaturi de la experți.