Refugiu Elegant lângă Pădurea Snagov: Casa Visurilor Tale (T2)

220.000 € + TVA

Snagov, Judeţul Ilfov

Nr. camere:
5
Suprafață utilă:
170 mp
Suprafață teren:
425 mp
Nr. niveluri:
1

Descriere casă

Descoperiți o oază de liniște și rafinament în inima naturii, la doar câțiva pași de facilitățile esențiale. Situată în prestigiosul ansamblu rezidențial Snagov Villas, această vilă deosebită îmbină armonios confortul modern cu farmecul peisajului natural din vecinătatea pădurii Snagov.   Cu o suprafață generoasă de 170 mp, această reședință P+1 oferă un spațiu intim și elegant, perfect pentru familii. Cele 5 camere luminoase, dintre care 4 dormitoare spațioase și 3 băi moderne, sunt completate de 4 balcoane ce deschid priveliști asupra grădinii pline de verdeață.   Construită cu atenție la detalii, vila beneficiază de o structură solidă din beton și izolație exterioară, garantând o durabilitate excepțională și un confort termic constant datorită centralei proprii. Finisajele moderne și personalizabile îți oferă libertatea de a transforma fiecare colț într-un spațiu care reflectă stilul tău.   Curtea generoasă și aerisită este o invitație la relaxare în aer liber, iar grădina deschisă oferă intimitatea necesară pentru momente de liniște și reconectare cu natura. Accesul facil la școală, grădiniță și trattorie adaugă un plus de confort stilului de viață cotidian.   Aceasta nu este doar o casă, ci un refugiu pentru cei care își doresc să trăiască în armonie cu natura, fără a renunța la luxul și comoditățile moderne. Ideală pentru cei ce prețuiesc liniștea și un stil de viață eco-friendly, această proprietate promite să fie locul unde visele devin realitate.
Citește mai mult Citește mai puțin
Nemobilat Grădină Curte Centrală proprie Bine întreținut (Bună)

Detalii casă

ID anunț: 146162 Actualizat în: 03 Martie 2026
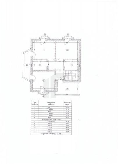
Nr. camere: 5
Suprafață utilă: 170 mp
Suprafață utilă totală: 170 mp
Nr. băi: 3
Suprafață teren: 425 mp
An construcție: 2010
Regim înălțime: P+1E

Istoric preț

Facilități

Pereți
Vopsea lavabilă Faianță
Podele
Parchet Gresie
Ușă intrare
Parchet Metal Lemn PVC
Uși interior
Lemn PVC
Stare interior
Stare bună
Izolații termice
Exterior
Ferestre cu geam termopan
Lemn PVC
Contorizare
Apometre Contor gaz
Mobilat
Nemobilat
Facilități imobil
Curte Grădină
Utilități
Curent Apă Canalizare Gaze
Sistem încălzire
Centrală proprie
Internet
Fibră optică
Amenajare străzi
Asfaltate

Puncte de interes

Recreere
parks
Parc
Recreere aprox. 997 m
parks
Parc
Recreere aprox. 1209 m
parks
Parc
Recreere aprox. 1762 m

Proprietăți similare

Casă individuală cu 3 camere cu Canalizare în Snagov
209.000 € + TVA
Județul Ilfov, Snagov
3 camere
117 mp
450 mp teren
Casă individuală cu 5 camere cu Canalizare în Snagov
227.000 €
Județul Ilfov, Snagov
5 camere
106 mp
770 mp teren
Casă individuală cu 8 camere cu Teren 454 Mp în Snagov
226.000 €
Județul Ilfov, Snagov
8 camere
214,3 mp
454 mp teren
Casă individuală cu 7 camere cu Canalizare în Snagov
217.000 €
Județul Ilfov, Snagov
7 camere
350 mp
1.150 mp teren
Casă individuală cu 4 camere cu Canalizare în Snagov
220.000 €
Județul Ilfov, Snagov
4 camere
143 mp
544 mp teren
Casă individuală cu 4 camere cu Canalizare în Snagov
215.000 € + TVA
Județul Ilfov, Snagov
4 camere
136 mp
700 mp teren
Casă individuală cu 3 camere cu Canalizare în Central
215.000 € + TVA
Județul Ilfov, Popești-Leordeni
3 camere
124 mp
257 mp teren
Casă individuală cu 3 camere cu Canalizare în Sud-Est
210.000 € + TVA
Județul Ilfov, Popești-Leordeni
3 camere
160 mp
200 mp teren
Casă individuală cu 4 camere cu Canalizare în Domnești
215.000 €
Județul Ilfov, Domnești
4 camere
144 mp
425 mp teren

Abonează-te la newsletter să fii primul care primește cele mai noi recomandări de proprietăți și sfaturi de la experți.