Casă individuala 6 camere Cartierul Arhitectilor, teren 650 mp Calea Cisnadiei

420.000 €

Mihai Viteazul, Sibiu

Nr. camere:
5
Suprafață utilă:
220 mp
Suprafață teren:
650 mp
Tip locuință:
Individuală

Descriere casă

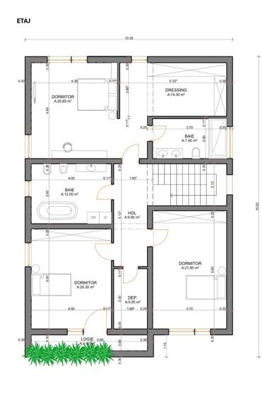
Locuință unifamilială deosebită situată într-o zonă liniștită și gata dezvoltata Cartierul Arhitecților, Sibiu ce oferă un echilibru perfect între spațiu, confort și calitate. Cu o arhitectură modernă, compartimentare eficientă, casa este ideală pentru o familie care își dorește un cămin durabil, eficient energetic și elegant. Suprafata utila: 216 mp + 45 mp subsol Suprafata teren: 650 mp Regim de înălțime: Subsol + Parter + Etaj Subsol Subsol: 27.85 mp Spațiu tehnic: 17.75 mp Parter Living spațios: 35.40 mp Bucătărie : 18.10 mp Birou: 12.05 mp Grup sanitar: 6.30 mp Hol: 11.35 mp Garaj: 21.85 mp Terasă : 36.20 mp Etaj 3 dormitoare spațioase (2 mp) Dormitor matrimonial cu dressing (14.30 mp) și baie proprie (12.00 mp) Baie secundară: 7.40 mp Hol: 9.95 mp Depozitare: 5.05 mp Logie: 4.90 mp Structură și eficiență energetică : Structură solidă din beton armat și zidărie tip Porotherm durabilitate și izolație excelentă. Acoperiș în două ape, cu învelitoare din țiglă ceramică estetică și rezistență în timp. Izolație acoperiș cu vata minerala și pereți exteriori cu izolatie energetică ridicată. Certificat energetic clasa A. Confort interior Înălțime generoasă a camerelor pentru un plus de spațialitate. Ferestre mari pentru lumină naturală. Preinstalare pentru sistem de climatizare (AC). Încălzire în pardoseală pe toate nivelurile confort termic uniform. Funcționalitate și versatilitate Birou la parter ideal pentru work-from-home sau camera vizitatori Garaj integrat cu acces direct în casă. Spațiu tehnic și beci perfect pentru depozitare, vinotecă sau hobby. Dressing separat în dormitorul matrimonial. Terasă exterioara naturală a spațiului de zi. Poziționare și accesibilitate Cartier rezidențial complet dezvoltat Acces rapid spre oraș, centură și autostradă. Pretul afisat este pentru predare la stadiul de gri avansat. Exterior se preda la cheie. Exclus agentii imobiliare.
Citește mai mult Citește mai puțin

Detalii casă

ID anunț: Actualizat în: 08 Februarie 2026
Tip locuință: Individuală
Nr. camere: 5
Suprafață utilă: 220 mp
Suprafață teren: 650 mp
An construcție: 2025

Facilități

Comision
0%

Puncte de interes

Mijloace transport
transport
Lamaitei
Mijloace transport aprox. 34 m
transport
Bloc 1 Mihai Viteazu
Mijloace transport aprox. 105 m
transport
Sala Transilvania
Mijloace transport aprox. 156 m
transport
Piata Aurel Vlaicu 1
Mijloace transport aprox. 273 m
Școală
education
Gradinita Nr. 42
Învățământ aprox. 214 m
education
Universitatea Romano-Germana Sibiu
Învățământ aprox. 261 m
education
Facultatea de Stiinte Agroalimentare
Învățământ aprox. 307 m
education
Scoala Gimnaziala Nicolae Iorga Sibiu
Învățământ aprox. 369 m
Recreere
parks
Parc
Recreere aprox. 190 m
restaurants
Super Mamma
Restaurante aprox. 324 m
shopping
Roger
Supermarket/Mall aprox. 437 m
shopping
Alcomsib Cedonia
Supermarket/Mall aprox. 630 m

Proprietăți similare

Casă individuală cu 5 camere cu Canalizare în Piața Cluj
420.000 €
Sibiu, Piața Cluj
5 camere
97 mp
477 mp teren
Casă individuală cu 6 camere cu Canalizare în Lupeni
450.000 €
Sibiu, Lupeni
6 camere
246 mp
361 mp teren
Casă individuală cu 4 camere cu Canalizare în Orașul de Jos
400.000 €
Sibiu, Orașul de Jos
4 camere
178 mp
700 mp teren
Casă individuală cu 4 camere cu Canalizare în Arhitecților - Calea Cisnădiei
454.000 €
Sibiu, Arhitecților - Calea Cisnădiei
4 camere
120 mp
249 mp teren
Casă individuală cu 10 camere cu Canalizare în Calea Poplăcii
459.900 €
Sibiu, Calea Poplăcii
10 camere
390 mp
490 mp teren
Casă individuală cu 7 camere cu Canalizare în Vasile Aaron
449.000 €
Sibiu, Vasile Aaron
7 camere
297 mp
318 mp teren
Casă individuală cu 6 camere cu Canalizare în Aeroport
400.000 €
Sibiu, Aeroport
6 camere
166 mp
437 mp teren
Casă individuală cu 4 camere cu Canalizare în Calea Dumbrăvii
429.000 €
Sibiu, Calea Dumbrăvii
4 camere
154 mp
295 mp teren
Casă individuală cu 4 camere cu Canalizare în Ștefan cel Mare
420.000 €
Sibiu, Ștefan cel Mare
4 camere
196,3 mp
630 mp teren

Abonează-te la newsletter să fii primul care primește cele mai noi recomandări de proprietăți și sfaturi de la experți.