REV2005352 Vila Noua Giulesti

329.000 €

Giuleşti, Bucureşti

Nr. camere:
4
Suprafață utilă:
175 mp
Suprafață teren:
150 mp
Nr. niveluri:
2

Descriere casă

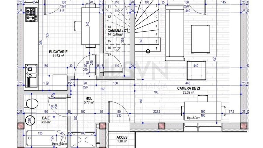
Va propunem spre achizitie o locuinta moderna, ce urmeaza a fi finalizata in anul 2025, amplasata in cartierul Giulesti, o zona aflata in continua dezvoltare si situata foarte aproape de centrul Bucurestiului. Aceasta pozitionare ofera acces rapid catre principalele puncte de interes ale orasului, pastrand in acelasi timp linistea si intimitatea unei zone rezidentiale de case. Caracteristici principale ale proprietatii Tip imobil: Vila P+2 Suprafata utila: 175 mp Suprafata construita: 205 mp Teren total: 150 mp Curte libera: 90 mp Locuri de parcare: 2 An constructie: 2025 3 dormitoare ideale pentru familie sau pentru amenajarea unui birou 4 bai moderne, complet utilate Bucatarie inchisa Dressing 2 Balcoane Terasa Compartimentare Parter: Living spatios, luminos, ideal pentru zona de relaxare si socializare Bucatarie inchisa, perfecta pentru cei care prefera delimitarea clara a spatiilor Baie Curtea este impartita in doua, zona din fata casei unde se gasesc doua locuri de parcare, aleea pietonala si spatiu verde. Propietatea este imprejmuita cu gard din beton iar portile de acces auto si pietonala sunt din metal. In spatele vilei regasim un spatiu verde inchis cu gard din beton precum si o terasa betonata. Etaj 1 2 Dormitoare 2 Bai Balcon Etaj 2 Dormitor matrimonial Baie Dressing Balcon Cartierul Giulesti este o zona urbana in plina ascensiune, cu proiecte noi si modernizari care ii sporesc constant atractivitatea. Proximitatea fata de centrul orasului face ca deplasarea sa fie usoara si rapida. Dotari si Finisaje Vila Vila se preda la cheie, este luminoasa, moderna, complet finisata și echipata: - Usa metalica la intrarea în vila; - Compartimentarile interioare sunt din caramida eficienta; - Tamplarie tripan din PVC cu rupere de punte termica; - Instalatii termice polipropilena sub sapa, calorifere monobloc din otel, centrala termica 24 kw ( Filtre, robineti, holendre, regulator si furtun); - Baile sunt complet finisate și utilate cu lavoare, vase wc, cabine de dus; - Bucatarie complet finisata, dotata cu centrala termica; - Gresie pe hol, scara, bucatarie si bai; - Parchet laminat triplu stratificat in restul casei; - Prize si intrerupatoare montate, fara corpuri de iluminat; - Lavabil alb pentru tot interiorul; - Fatadele sunt termoizolate pe toata suprafata conform normativelor în vigoare; - Vopsea exterior texturata; - Curte proprie imprejmuita cu gard din beton si porti metalice; - Balcoanele sunt imprejmuite cu sticla IMPORTANT: Pentru cei care doresc sa acceseze credite, oferim consultanta financiara si asistenta in relatia cu banca. Va asteptam in Casa Noua!
Citește mai mult Citește mai puțin
Grădină Calorifere Centrală proprie

Detalii casă

ID anunț: 2787568 Actualizat în: 13 Martie 2026
Nr. camere: 4
Suprafață utilă: 175 mp
Suprafață utilă totală: 175 mp
Nr. băi: 4
Suprafață teren: 150 mp
An construcție: 2025
Regim înălțime: P+2E

Istoric preț

Facilități

Pereți
Faianță
Podele
Gresie Parchet
Izolații termice
Exterior
Ferestre cu geam termopan
PVC
Utilități
Gaze Apă Canalizare Curent Cablu
Sistem încălzire
Centrală proprie Calorifere
Internet
Cablu Wireless
Diverse
Senzor de fum
Facilități imobil
Acoperiș Grădină

Puncte de interes

Mijloace transport
transport
Autogara Allegro Maxi Taxi SA (en)
Mijloace transport aprox. 115 m
transport
RATB Terminal 16 Februarie (Giulesti-Sarbi)
Mijloace transport aprox. 174 m
transport
Statia Cartier 16 februarie linia 162, 163, N110
Mijloace transport aprox. 196 m
transport
Statia Cartier 16 februarie linia 11
Mijloace transport aprox. 230 m
Școală
education
Scoala Gimnaziala Nr. 153
Învățământ aprox. 137 m
education
Scoala Nr. 153
Învățământ aprox. 142 m
education
Scoala cu clasele nr.161
Învățământ aprox. 736 m
education
Scoala Nr. 162
Învățământ aprox. 1019 m
Recreere
restaurants
"La linie", drink&gossip
Restaurante aprox. 967 m
parks
Parc
Recreere aprox. 1000 m
shopping
Express
Supermarket/Mall aprox. 1850 m
shopping
Supermarket NIC
Supermarket/Mall aprox. 1881 m

Proprietăți similare

Casă individuală cu 6 camere cu Canalizare în Giulești
333.990 €
București, Giulești
6 camere
210 mp
200 mp teren
Casă individuală cu 4 camere cu Canalizare în Giulești
335.000 €
București, Giulești
4 camere
180 mp
200 mp teren
Casă individuală cu 6 camere cu Canalizare în Prelungirea Ghencea
319.000 €
București, Prelungirea Ghencea
6 camere
360 mp
541 mp teren
Casă individuală cu 6 camere cu Canalizare în Păcii
339.000 €
București, Păcii
6 camere
160 mp
260 mp teren
Casă individuală cu 4 camere cu Teren 410 Mp în Prelungirea Ghencea
300.000 €
București, Prelungirea Ghencea
4 camere
1.250 mp
410 mp teren
Casă individuală cu 6 camere cu Teren 164 Mp în Drumul Taberei
340.000 €
București, Drumul Taberei
6 camere
140 mp
164 mp teren
Casă individuală cu 6 camere cu Canalizare în Valea Oltului
344.000 € + TVA
București, Valea Oltului
6 camere
205 mp
380 mp teren
Casă individuală cu 4 camere cu Teren 400 Mp în Prelungirea Ghencea
305.000 €
București, Prelungirea Ghencea
4 camere
133 mp
400 mp teren
Casă individuală cu 4 camere cu Canalizare în Prelungirea Ghencea
305.000 €
București, Prelungirea Ghencea
4 camere
120 mp
250 mp teren

Abonează-te la newsletter să fii primul care primește cele mai noi recomandări de proprietăți și sfaturi de la experți.