Penthouse Unirii -an2010- 220mp 5camere +terasa 210mp -Pasaj Marasesti

539.480 €

Mărăşeşti, Bucureşti

Nr. camere:
5
Suprafață utilă:
220 mp
Suprafață teren:
220 mp
Nr. niveluri:
4

Descriere casă

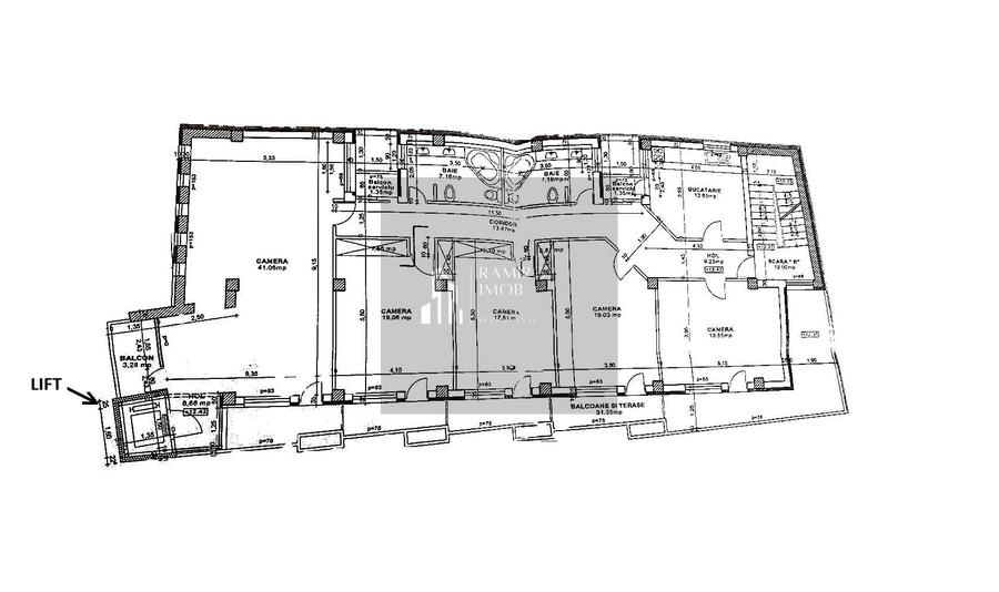
Va prezentam un spatiu deosebit in centrul Bucurestiului, perfect pentru locuinta ideala sau pentu spatiul de birouri care va impresiona orice client. Etajul 4 al unui bloc construit in 2010, cu lift pana la terasa de la etajul 5 si cu suprafata utila de 220mp. Vedere superba cu Centrul Bucurestiului. Este unul din putinele blocuri construite pentru a rezista la un cutremur de 8 grade. Toata structura de rezistenta este supradimensionata. Pereti exteriori sunt de caramida. Se poate vinde cu sau fara terasa de deasupra de 210mp. Sunt disponibile 2 locuri de parcare in interiorul curtii si se mai pot obtine locuri de parcare inchiriate de la primarie, in parcarea din fata. Blocul se afla in apropiere de Pasajul Marasesti, intersectia Bd. Cantemir cu Bd. Marasesti, - Biblioteca Nationala, Piata Unirii, Centrul Vechi, Tineretului. Compartimentarea spatiului interior se poate Reface dupa cum doreste clientul, o parte din cheltuieli va fi suportata si de catre dezvoltator. Serviciile unui arhitect renumit incluse. Acum etajul este compartimentat in 5 camere, 2 bai, bucatarie, fiecare camera are balcon si aer conditionat. Spatiul este potrivit si pentru inchiriat in regim hotelier . Pentru mai multe detalii : Agentia Imobiliara – Ramiro Imob – - Cornel Ion Oferim suport în relația cu banca, cu acces la cele mai bune oferte de finanțare, precum și asistență in relatia cu notariatul. ... ... ... ... ... ... We present you a special space in the center of Bucharest, perfect for the ideal home or for office space that will impress any client. 4th floor of a block built in 2010, with an elevator to the terrace on the 5th floor and with a usable area of ​​220sqm. Superb view of the Center of Bucharest. It is one of the few blocks built to withstand an 8-degree earthquake. The entire resistance structure is oversized. Exterior walls are brick. It can be sold with or without the 210sqm terrace above. 2 parking spaces are available inside the courtyard and you can also get parking spaces rented from the city hall, in the parking lot in front. The block is located near the Marasesti Passage, the intersection of Bd. Cantemir with Bd. Marasesti, - National Library, Unirii Square, Old Center, Tineretului. The interior space can be re-divided as the client wishes, part of the expenses will also be borne by the developer. The services of a renowned architect included. Now the floor is divided into 5 rooms, 2 bathrooms, kitchen, each room has a balcony and air conditioning. The space is also suitable for renting as a hotel. For more details: Real Estate Agency – Ramiro Imob – - Cornel Ion We offer support in the relationship with the bank, with access to the best financing offers, as well as assistance in the relationship with the notary.
Citește mai mult Citește mai puțin
Mobilat Mobilat Aer condiționat Calorifere Centrală proprie

Detalii casă

ID anunț: 70115 Actualizat în: 10 Martie 2026
Nr. camere: 5
Suprafață utilă: 220 mp
Suprafață utilă totală: 220 mp
Nr. băi: 2
Suprafață teren: 220 mp
An construcție: 2010
Regim înălțime: P+4E

Istoric preț

Facilități

Pereți
Faianță Vopsea lavabilă
Podele
Gresie Marmură
Ușă intrare
PVC Metal Lemn
Uși interior
PVC Lemn
Izolații termice
Exterior
Ferestre cu geam termopan
PVC Lemn
Contorizare
Apometre Contor gaz
Bucătărie
Mobilată Utilată
Mobilat
Mobilat
Electrocasnice
Aragaz Frigider Hotă Mașină de spălat Mașină spălat vase TV
Diverse
Scară interioară Sistem de alarmă
Facilități imobil
Interfon Lift Spații agrement
Utilități
Curent Apă Canalizare Gaze Aragaz / Plită Frigider Mașină de spălat rufe Mașină de spălat vase TV Cablu Supraveghere video
Sistem încălzire
Calorifere Centrală proprie
Internet
Cablu
Climatizare
Aer condiționat
Amenajare străzi
Iluminat stradal Mijloace de transport în comun Asfaltate
Servicii imobil
Supraveghere video

Puncte de interes

Mijloace transport
transport
Pasaj Marasesti
Mijloace transport aprox. 140 m
transport
Statia Pasaj Marasesti linii 23,27
Mijloace transport aprox. 178 m
transport
Bd. Dimitrie Cantemir / Bd. Marasesti, Liniile 312, 313, 381, N105, N106, N112, 116, 23, 27
Mijloace transport aprox. 477 m
transport
Bd. Dimitrie Cantemir
Mijloace transport aprox. 484 m
Școală
education
Scoala Nr. 79 (en)
Învățământ aprox. 336 m
education
Scoala nr. 79
Învățământ aprox. 336 m
education
Liceul Teoretic "Ion Creanga" (en)
Învățământ aprox. 356 m
education
Gradinita Barba Cot
Învățământ aprox. 387 m
Recreere
shopping
MGV Supermarket Zeno
Supermarket/Mall aprox. 80 m
shopping
ClicMarket
Supermarket/Mall aprox. 107 m
parks
Parc
Recreere aprox. 173 m
restaurants
Thang Long
Restaurante aprox. 247 m

Proprietăți similare

Casă individuală cu 7 camere cu Canalizare în Mărășești
498.000 €
București, Mărășești
7 camere
180 mp
385 mp teren
Casă individuală cu 10 camere cu Canalizare în Șura Mare
589.900 €
București, Șura Mare
10 camere
388 mp
566 mp teren
Casă individuală cu 10 camere cu Canalizare în Berceni
500.000 €
București, Berceni
10 camere
280 mp
200 mp teren
Casă individuală cu 4 camere cu Canalizare în Tineretului
530.000 €
București, Tineretului
4 camere
148 mp
284 mp teren
Casă individuală cu 5 camere cu Canalizare în Parcul Carol
515.000 €
București, Parcul Carol
5 camere
220 mp
275 mp teren
Casă individuală cu 6 camere cu Canalizare în Brâncoveanu
500.000 €
București, Brâncoveanu
6 camere
230 mp
411 mp teren
Casă individuală cu 4 camere cu Canalizare în Parcul Carol
549.000 €
București, Parcul Carol
4 camere
251 mp
275 mp teren
Casă individuală cu 4 camere cu Canalizare în Parcul Carol
550.000 €
București, Parcul Carol
4 camere
165 mp
200 mp teren
Casă individuală cu 5 camere cu Canalizare în Tineretului
590.000 €
București, Tineretului
5 camere
380 mp
592 mp teren

Abonează-te la newsletter să fii primul care primește cele mai noi recomandări de proprietăți și sfaturi de la experți.