1

Constructie Ruina 42 mp pe strada Orzari colt Agricultori teren 90mp

59.500 €

Calea Călăraşilor, Bucureşti

Nr. camere:
2
Suprafață utilă:
35 mp
Suprafață teren:
90 mp
Nr. niveluri:
1

Descriere casă

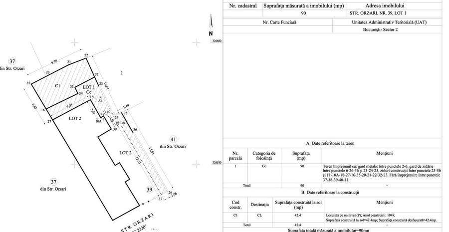
OFERTA CU 0% COMISION PENTRU CUMPARATOR! Pe strada Orzari langa intersectia cu strada Agricultori, se vinde o proprietate compusa din teren de 90 mp si o ruina ce a reprezentat o casa de 2 camere si dependinte din caramida, construita conform documentelor in 1949, cu amprenta la sol de 42,4 mp din cei 90 mp totali de teren. Aceasta suprafata de teren a fost dezmembrata juridic insa nu si in fapt, cu gard, insa se poate separa daca se doreste. Avand in vedere ca locuinta in stare de ruina este intabulata in Cartea Funciara si se regaseste in documentele de proprietate, se poate construi pe actualul amplasament un imobil nou. Mai mult, in prezent in spatele casei la calcan este demarat un proiect imobiliar cu un bloc boutique, ceea ce ar fi confortabil pentru viitorul santier.
Citește mai mult Citește mai puțin
Curte Curte comună Necesită renovare

Detalii casă

ID anunț: 2913487 Actualizat în: 08 Februarie 2026
Nr. camere: 2
Suprafață utilă: 35 mp
Suprafață utilă totală: 35 mp
Nr. băi: 1
Suprafață teren: 90 mp
An construcție: 1949
Regim înălțime: P+1E

Istoric preț

Facilități

Utilități
Curent Apă Canalizare Gaze Cablu
Internet
Cablu
Stare interior
Necesită renovare
Amenajare străzi
Iluminat stradal Mijloace de transport în comun Asfaltate
Facilități imobil
Curte Curte comună

Puncte de interes

Mijloace transport
transport
Delea Veche
Mijloace transport aprox. 264 m
transport
Statia Calea Calarasilor / Delea Veche; Linia: 40, 56
Mijloace transport aprox. 271 m
transport
Statia Calea Calarasilor / Delea Veche; Linia:N109, 70, 79, 92
Mijloace transport aprox. 277 m
transport
Statia Agricultorilor linia 90, 86
Mijloace transport aprox. 461 m
Școală
education
Montessori Kindergarden of Bucharest
Învățământ aprox. 359 m
education
Asociatia Culturala Bravissimo
Învățământ aprox. 482 m
education
Universitatea Hyperion
Învățământ aprox. 529 m
education
Universitatea Nationala de Arta Teatrala si Cinematografica
Învățământ aprox. 531 m
Recreere
restaurants
Trattoria Pascu
Restaurante aprox. 23 m
parks
Parc
Recreere aprox. 220 m
shopping
Mega Image Delea Noua
Supermarket/Mall aprox. 275 m
shopping
Supermarket Altra
Supermarket/Mall aprox. 290 m

Proprietăți similare

Casă individuală cu 2 camere cu Teren 122 Mp în Petricani
57.000 €
București, Petricani
2 camere
30 mp
122 mp teren
Casă individuală cu 3 camere cu Canalizare în Cișmigiu
60.000 €
București, Cișmigiu
3 camere
55 mp
36 mp teren
Casă individuală cu 3 camere cu Canalizare în Rahova
65.000 €
București, Rahova
3 camere
47,9 mp
130 mp teren
Casă individuală cu 3 camere cu Canalizare în Progresul
60.000 €
București, Progresul
3 camere
103 mp
234 mp teren
Casă individuală cu 2 camere cu Canalizare în 13 Septembrie
60.000 €
București, 13 Septembrie
2 camere
34 mp
73 mp teren

Abonează-te la newsletter să fii primul care primește cele mai noi recomandări de proprietăți și sfaturi de la experți.