VILA INDIVIDUALA - ZONA TRAPEZULUI / CURTE LIBERA 397MP.

360.000 € + TVA

1 Decembrie 1918, Bucureşti

Nr. camere:
5
Suprafață utilă:
167 mp
Suprafață teren:
468 mp
Nr. niveluri:
2

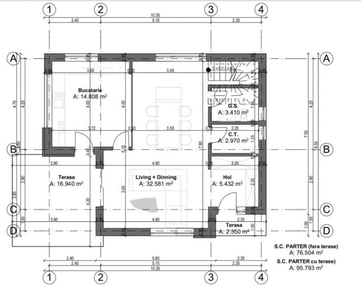
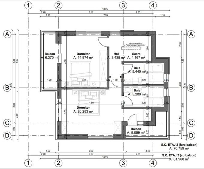
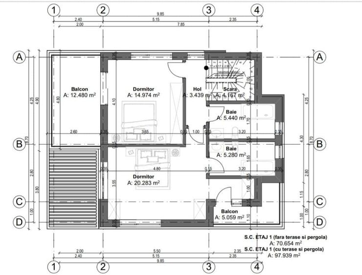
Descriere casă

Complex Rezidențial Premium de Vile Tip Duplex și Individuale – Zona 1 Decembrie 1918 / Trapezului Vă prezentăm un proiect deosebit, dedicat celor care își doresc o locuință modernă și elegantă, într-un mediu sigur și confortabil. Complexul va cuprinde 20 de vile premium, dintre care 2 vile individuale, oferind un stil de viață rafinat, în imediata apropiere a zonei 1 Decembrie 1918 și Trapezului. Caracteristici vila single: Suprafață utilă: Vila are o suprafață generoasă de 167 mp utili , oferind un spațiu bine compartimentat și funcțional. Curte libera: Vila dispune de o curte liberă de 397, ideală pentru relaxare, grădinărit sau activități în aer liber Construcție modernă: Vila este dotata cu sistem de încălzire în pardoseală, geamuri tripan pentru o izolare termică și fonică superioară, toalete încastrate pentru un aspect estetic plăcut și centrală proprie pe gaz, garantând confort și eficiență energetică Securitate și accesibilitate: Complex închis: Accesul va fi controlat prin barieră, asigurând un mediu sigur și liniștit pentru toate familiile locatare Facilități în proximitate: În imediata vecinătate a complexului vor fi disponibile terenuri de fotbal, terenuri de tenis și locuri de joacă pentru copii, contribuind la un stil de viață activ și sănătos pentru toți locuitorii Această oportunitate reprezintă o alegere ideală pentru familii care caută o locuință modernă, confortabilă și bine amplasată, într-o comunitate exclusivistă. Pentru mai multe informații sau programări de vizionare, nu ezitați să ne contactați!
Citește mai mult Citește mai puțin
Centrală proprie

Detalii casă

ID anunț: 3397376 Actualizat în: 24 Martie 2026
Nr. camere: 5
Suprafață utilă: 167 mp
Suprafață utilă totală: 167 mp
Nr. băi: 5
Suprafață teren: 468 mp
An construcție: 2026
Regim înălțime: P+2E

Istoric preț

Facilități

Contorizare
Apometre Contor gaz
Utilități
Curent Apă Canalizare Gaze Cablu
Sistem încălzire
Centrală proprie
Internet
Cablu
Amenajare străzi
Iluminat stradal Mijloace de transport în comun Asfaltate
Izolații termice
Exterior

Puncte de interes

Mijloace transport
transport
Taberei
Mijloace transport aprox. 627 m
transport
Statia Taberei, linia 223
Mijloace transport aprox. 628 m
transport
Statia Sere, linia 223
Mijloace transport aprox. 854 m
transport
Statia Cartier rezidential Splaiul Unirii, linia 223
Mijloace transport aprox. 1076 m
Școală
education
Scoala cu Clasele I-VIII Nr. 20 "Simion Mehedinti"
Învățământ aprox. 1199 m
education
Colegiul tehnic de chimie "Costin Nenitescu"
Învățământ aprox. 1248 m
education
Gradinita de copii nr. 211
Învățământ aprox. 1334 m
education
Gradinita nr. 211
Învățământ aprox. 1334 m
Recreere
parks
* LA COCLAU - MOTOCROSS - TRASEU
Recreere aprox. 417 m
shopping
Lidl
Supermarket/Mall aprox. 1057 m
restaurants
Bistro Burghez
Restaurante aprox. 1061 m
shopping
Penny
Supermarket/Mall aprox. 1203 m

Proprietăți similare

Casă individuală cu 4 camere cu Teren 250 Mp în 1 Decembrie 1918
345.000 €
București, 1 Decembrie 1918
4 camere
185 mp
250 mp teren
Casă individuală cu 6 camere cu Canalizare în Unirii
340.000 €
București, Unirii
6 camere
132 mp
94 mp teren
Casă individuală cu 5 camere cu Teren 226 Mp în Nicolae Grigorescu
345.000 €
București, Nicolae Grigorescu
5 camere
155 mp
226 mp teren
Casă individuală cu 5 camere cu Garaj în Nicolae Grigorescu
390.000 €
București, Nicolae Grigorescu
5 camere
190 mp
310 mp teren
Casă individuală cu 3 camere cu Canalizare în P-ța Alba Iulia
380.000 €
București, P-ța Alba Iulia
3 camere
60 mp
150 mp teren
Casă individuală cu 9 camere cu Canalizare în Unirii
368.000 €
București, Unirii
9 camere
425 mp
200 mp teren
Casă individuală cu 5 camere cu Canalizare în Unirii
350.000 €
București, Unirii
5 camere
230 mp
230 mp teren
Casă individuală cu 5 camere cu Canalizare în Splaiul Unirii
330.000 € + TVA
București, Splaiul Unirii
5 camere
159 mp
358 mp teren
Casă individuală cu 3 camere cu Canalizare în Alba Iulia
380.000 €
București, Alba Iulia
3 camere
70 mp
143 mp teren

Abonează-te la newsletter să fii primul care primește cele mai noi recomandări de proprietăți și sfaturi de la experți.