Imobil Eminescu - Radu de la Afumati - P+2 - 10 camere

€ 450.000

Dacia, Bucureşti

Nr. camere:
9
Suprafață utilă:
325 mp
Suprafață teren:
85 mp
Nr. niveluri:
2

Descriere

Raportează anunț

Imobil Eminescu - Radu de la Afumati - P+2 - 10 camere

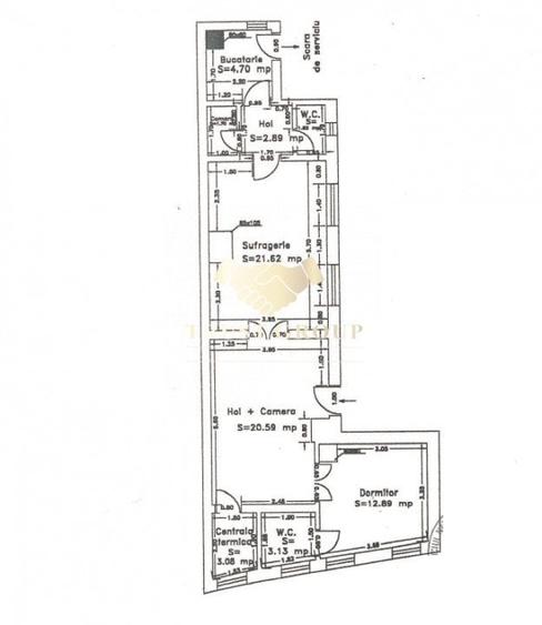
Acest imobil unic, format din doua corpuri de cladire cu regim de inaltime P+2, este ideal pentru diverse utilizari, fie rezidentiale, fie comerciale. Ambele corpuri sunt separate de o curte interioara de 85 mp, oferind un spatiu privat si functional. Cu o suprafata totala de 325 mp utili, imobilul include 10 camere, 2 bucatarii si 6 grupuri sanitare, fiind o optiune excelenta pentru activitati precum notariat, birou de avocatura, spatiu comercial, restaurant sau scoala. Corpul A este construit in anii 50, iar corpul B in 2004 In trecut, proprietatea a functionat ca scoala privata, iar structura sa ofera flexibilitate pentru diferite tipuri de afaceri. Mentionam ca in corpul A exista un apartament de 3 camere la etajul 2, detinut de un alt proprietar, insa exista posibilitatea ofertarii acestuia pentru o eventuala achizitie completa a cladirii. Pentru vizionari sau informatii suplimentare, va stam la dispozitie!
Citește mai mult Citește mai puțin
ID anunț: 2680111 Actualizat în: 05 Ianuarie 2026
Nr. camere: 9
Suprafață utilă: 325 mp
Suprafață utilă totală: 325 mp
Nr. băi: 6
Suprafață teren: 85 mp
Front stradal: 8 m
An construcție: 1949
Regim înălțime: P+2E

Istoric preț

Utilități

Utilități
Curent Apă Canalizare Gaze

Proprietăți similare

Casă individuală cu 9 camere cu Canalizare în Dacia
€ 450.000
București, Dacia
9 camere
270 mp
200 mp teren
Casă individuală cu 5 camere cu Teren 213 Mp în Dacia
€ 485.000
București, Dacia
5 camere
159,5 mp
213 mp teren
Casă individuală cu 5 camere cu Canalizare în Dacia
€ 435.000
București, Dacia
5 camere
210 mp
185 mp teren
Casă individuală cu 8 camere cu Teren 30 Mp în Dacia
€ 450.000
București, Dacia
8 camere
255 mp
30 mp teren
Casă individuală cu 9 camere cu Canalizare în Dacia
€ 450.000
București, Dacia
9 camere
320 mp
170 mp teren
Casă individuală cu 6 camere cu Canalizare în Dacia
€ 450.000
București, Dacia
6 camere
255 mp
189 mp teren
Casă individuală cu 8 camere cu Canalizare în Dacia
€ 450.000
București, Dacia
8 camere
255 mp
189 mp teren
Casă individuală cu 9 camere cu Teren 120 Mp în Dacia
€ 479.999
București, Dacia
9 camere
240 mp
120 mp teren
Casă individuală cu 10 camere cu Canalizare în Eminescu
€ 450.000
București, Eminescu
10 camere
270 mp
200 mp teren

Abonează-te la newsletter să fii primul care primește cele mai noi recomandări de proprietăți și sfaturi de la experți.