2

Bucurestii Noi, Straulesti, casa suprafata 168mp, 5 camere, teren 388mp

235.000 €

Străuleşti, Bucureşti

Nr. camere:
5
Suprafață utilă:
143 mp
Suprafață teren:
388 mp

Descriere casă

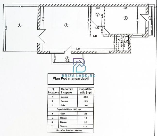
Agentia BrizaLand propune spre vanzare casa Parter + Pod mansardabil, localizata in Bucurestii Noi, cartier Straulesti, constructie 1962, suprafata construita totala 168mp, suprafata construita la sol 96mp, suprafata utila totala ~ 143mp, 5 camere, 2 bai, anexa curte 15mp, cu teren cu suprafata de 388mp, si deschidere de 12.86m. Compartimentare: Parter ( suprafata utila totala 76.5mp ) : hol, 3 camere, bucatarie, baie, Pod mansardabil ( suprafata utila totala ~ 66.7mp ) : propus - hol, 2 camere, baie, 2 balcoane, terasa. Anexa curte ( suprafata utila totala 12mp ) : bucatarie 7mp, baie 5mp. Structura de rezistenta : pereti portanti din caramida, planseu si Pod mansardabil pe structura usoara. Finisaje : casa a fost consolidata in 1991 si renovata total in 2018 : decopertata pana la caramida, montata plasa de Buzau, tencuiata, glet si lavabila, turnate sape de ciment, s-a construit podul mansardabil, bransamentul nou de curent, instalatii sanitare si de incazire noi, gresie, faianta, parchet laminat, geamuri termopan tripan 6 camere, usi interioare celulare, usa de intrare metalica, centrala termica in condensatie Viessmann, calorifere, aer conditionat, prize si intrerupatoare Legrand; exterior izolat polistiren si tencuit decorativ, acoperis tigla metalica Bilka. Transport : este situata la 7 minute de mers pe jos fata de statia stb si la 3 minute cu masina fata de statia de metrou Straulesti si de terminalul modal cu parcare supraetajata. Situatie juridica: cadastru si intabulare; extras carte funciara liber de sarcini. Podul mansardabil nu este intabulat. Puncte de interes: Mega Image shop&go, farmacia M si cofetaria Art Desert la 8 minute de mers pe jos, zona comerciala si magazine Lidl si Kaufland la 14 minute de mers pe jos (respectiv 2 minute cu masina), Școala Gimnaziala Nr. 13 la 7 minute de mers pe jos, mall Colosseum la 6 minute cu masina, parcul Basilescu si piata 16 Februarie la 7 minute cu masina, mall Baneasa la 12 minute cu masina. Alte detalii: bransata la toate utilitatile : apa, gaze, canalizare, curent + put cu hidrofor. sistem fotovotaic de 5. 2 Kw, invertor hibrid huawei, cu conventie de prosumator sistem de supraveghere HIKVISION curte mare, gazon, gradina cu pomi fructiferi Pret : 235.000eur
Citește mai mult Citește mai puțin

Detalii casă

ID anunț: 163665 Actualizat în: 15 Septembrie 2025
Nr. camere: 5
Suprafață utilă: 143 mp
Suprafață utilă totală: 143 mp
Nr. băi: 2
Suprafață teren: 388 mp
Front stradal: 12.859999656677 m
An construcție: 1962

Istoric preț

Facilități

Utilități
Apă Gaze Climă Canalizare
Facilități
Balcon

Puncte de interes

Mijloace transport
transport
Statia Doi Cocosi linia 304
Mijloace transport aprox. 791 m
transport
Straulesti
Mijloace transport aprox. 1232 m
transport
Statia Cimitirul Straulesti, linia N117, 304,97
Mijloace transport aprox. 1404 m
transport
statia Piscul Scoartei, linia 205
Mijloace transport aprox. 1550 m
Școală
education
Scoala Generala Nr. 13
Învățământ aprox. 299 m
education
Scoala 13
Învățământ aprox. 306 m
Recreere
shopping
Mega Image
Supermarket/Mall aprox. 143 m
shopping
Profi
Supermarket/Mall aprox. 655 m
restaurants
La Doi Cocoşi - Restaurant, Club
Restaurante aprox. 841 m
parks
Strandul Straulesti
Recreere aprox. 1000 m

Proprietăți similare

Casă individuală cu 4 camere cu Canalizare în Dămăroaia
235.000 €
București, Dămăroaia
4 camere
50 mp
365 mp teren
Casă individuală cu 4 camere cu Canalizare în Pipera
250.000 € + TVA
București, Pipera
4 camere
105 mp
140 mp teren
Casă individuală cu 4 camere cu Canalizare în Băneasa
220.000 €
București, Băneasa
4 camere
83 mp
145 mp teren
Casă individuală cu 4 camere cu Canalizare în Domenii
215.000 €
București, Domenii
4 camere
100 mp
170 mp teren
Casă individuală cu 4 camere cu Canalizare în Bucureștii Noi
234.900 €
București, Bucureștii Noi
4 camere
124 mp
300 mp teren
Casă individuală cu 4 camere cu Canalizare în 1 Mai
250.000 €
București, 1 Mai
4 camere
109 mp
246 mp teren
Casă individuală cu 3 camere cu Teren 241 Mp în Bucureștii Noi
215.000 €
București, Bucureștii Noi
3 camere
59,83 mp
241 mp teren
Casă individuală cu 4 camere cu Canalizare în Turda
257.000 €
București, Turda
4 camere
130 mp
118 mp teren
Casă individuală cu 3 camere cu Canalizare în Clăbucet
229.900 €
București, Clăbucet
3 camere
60 mp
228 mp teren

Abonează-te la newsletter să fii primul care primește cele mai noi recomandări de proprietăți și sfaturi de la experți.