REV2005543 Casa Ultracentrala Polona ideala locuinta sau afacere

1.300.000 €

Polonă, Bucureşti

Nr. camere:
5
Suprafață utilă:
180 mp
Suprafață teren:
400 mp
Nr. niveluri:
1

Descriere casă

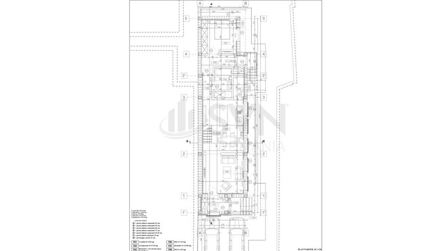
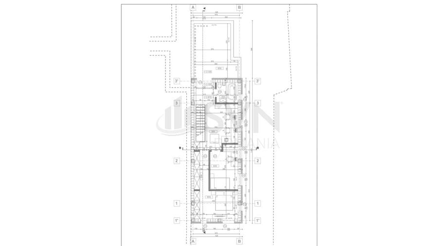
SVN Residentialist va propune spre vanzare o casa situata ultracentral, la cativa metri de Piata Romana si Polona, pe strada cu sens unic, Sector 1. Imobilul este o constructie consolidata, extinsa si supraetajata, realizata pe baza unui proiect semnat de arhitect, cu planuri complete si autorizatie de construire valabila pana in 2027 (S+P+E). Toate lucrarile sunt bine documentate. Casa dispune de curent trifazic si exista posibilitatea montarii de panouri fotovoltaice. Pozele sunt cu titlul de prezentare, proprietatea se preda la gri. Incalzirea se realizeaza prin pompa de caldura, oferind eficienta energetica ridicata si costuri reduse. Exista posibilitatea parcarii a doua masini in curte si inca una in fata portii. Imobilul se preteaza atat pentru locuinta proprie, cat si pentru activitati comerciale precum clinica stomatologica, cabinet de avocatura, birouri, casa de moda sau alte servicii premium. Casa dispune de trei dormitoare, doua livinguri si doua bai. Suprafata terenului este de 400 mp, incluzand amprenta casei. Suprafata utila depaseste 180 mp, iar suprafata construita este de aproximativ 260 mp. Echipa SVN este aici pentru a-ti gasi locuinta perfecta.
Citește mai mult Citește mai puțin
Alte metode electrice Beci

Detalii casă

ID anunț: 3616051 Actualizat în: 13 Martie 2026
Nr. camere: 5
Suprafață utilă: 180 mp
Suprafață utilă totală: 180 mp
Nr. băi: 2
Suprafață teren: 400 mp
An construcție: 2026
Regim înălțime: P+1E

Istoric preț

Facilități

Utilități
Apă Canalizare Curent
Sistem încălzire
Alte metode electrice
Alte spații utile
WC Serviciu Spațiu depozitare Pivniță
Ferestre cu geam termopan
PVC

Puncte de interes

Mijloace transport
transport
Statia Calea Dorobantilor; Liniile:79, 86,
Mijloace transport aprox. 232 m
transport
Piata Lahovari
Mijloace transport aprox. 385 m
transport
Teatrul Metropolis
Mijloace transport aprox. 415 m
transport
Statia Piata Romana linii : 79,86
Mijloace transport aprox. 426 m
Școală
education
Scoala de teatru
Învățământ aprox. 121 m
education
CROS - Universitatea Alternativa
Învățământ aprox. 146 m
education
Scoala Americana
Învățământ aprox. 185 m
education
Gradinita nr. 85
Învățământ aprox. 204 m
Recreere
restaurants
Acuarela
Restaurante aprox. 91 m
shopping
BILLA - Dorobanti
Supermarket/Mall aprox. 269 m
shopping
Bila Supermarket
Supermarket/Mall aprox. 300 m
parks
Parcul "Ioanid"
Recreere aprox. 359 m

Proprietăți similare

Casă individuală cu 8 camere cu Canalizare în Iancu Nicolae
1.290.001 € + TVA
București, Iancu Nicolae
8 camere
478 mp
774 mp teren
Casă individuală cu 6 camere cu Teren 1032 Mp în Pipera
1.350.000 €
București, Pipera
6 camere
537 mp
1.032 mp teren
Casă individuală cu 6 camere cu Canalizare în Pipera
1.200.000 € + TVA
București, Pipera
6 camere
477,85 mp
513 mp teren
Casă individuală cu 8 camere cu Canalizare în Iancu Nicolae
1.350.000 €
București, Iancu Nicolae
8 camere
627 mp
1.461 mp teren
Casă individuală cu 7 camere cu Piscina în Pipera
1.250.000 €
București, Pipera
7 camere
540 mp
1.032 mp teren
Casă individuală cu 8 camere cu Canalizare în Băneasa
1.300.000 € + TVA
București, Băneasa
8 camere
310 mp
413 mp teren
Casă individuală cu 6 camere cu Canalizare în Iancu Nicolae
1.200.000 € + TVA
București, Iancu Nicolae
6 camere
384 mp
467 mp teren
Casă individuală cu 11 camere cu Garaj în Aviatorilor
1.350.000 €
București, Aviatorilor
11 camere
483 mp
229 mp teren
Casă individuală cu 6 camere cu Piscina în Iancu Nicolae
1.350.000 €
București, Iancu Nicolae
6 camere
336 mp
800 mp teren

Abonează-te la newsletter să fii primul care primește cele mai noi recomandări de proprietăți și sfaturi de la experți.