Dumbrava Vlasiei – Armonie între design, lumină și natură

1.100.000 €

Pipera, Bucureşti

Nr. camere:
5
Suprafață utilă:
317 mp
Suprafață teren:
959 mp
Nr. niveluri:
1

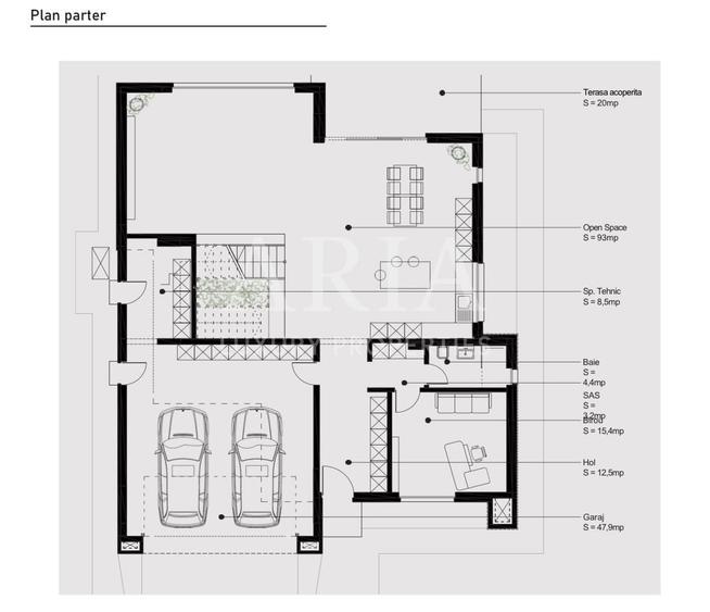
Descriere casă

În inima Dumbravei Vlăsiei, într-un parc rezidențial exclusivist, vila este o interpretare contemporană a locuirii rafinate. Concepută într-un stil arhitectural deschis, care integrează organic exteriorul în interior, această vilă spectaculoasă redefinește confortul prin transparență, materialitate și funcționalitate. Dumbrava Vlăsiei este o comunitate închisă aparte – un spațiu amplu, înconjurat de pădure și parcuri, ce se remarcă prin arhitectura atent gândită a spațiilor comune și unicitatea fiecărei reședințe. Este un loc în care luxul se exprimă prin simplitate, echilibru și confort, iar respectul profund față de natură definește spiritul unei comunități de elită. DETALII PRINCIPALE: • Teren: 959 mp • Suprafață construită: 420 mp • Suprafață utilă: 317 mp • Compartimentare: 4 dormitoare, 4 băi, birou, spălătorie, garaj dublu Parter – Spațiu, lumină, libertate Zona de zi este un open space generos de 93 mp, ce reunește livingul, diningul și bucătăria într-o armonie fluidă, scalată pe verticală și luminată natural prin ferestre ample. Încălzirea în pardoseală cu agent termic oferă un confort termic uniform, fără compromisuri. În completare, biroul de 15 mp și baia de serviciu adaugă funcționalitate zilnică *******ă. Etaj – Intimitate și funcționalitate inteligentă Zona de noapte include: • Dormitor matrimonial cu dressing spațios, baie proprie și acces la o terasă verde cu hidroizolație avansată • Două dormitoare secundare, fiecare cu baie și dressing propriu • Spălătorie și debara, gândite pentru eficiență cotidiană Detalii care fac diferența: • Garaj încorporat de 47,9 mp • Terasă acoperită de 20 mp, ideală pentru relaxare în aer liber • Materiale naturale: piatră, lemn, sticlă și metal, alese pentru durabilitate și estetică • Practici sustenabile și tehnologii ecologice de climatizare Infrastructură completă & conectivitate: • Drumuri asfaltate și iluminate • Canalizare și apă din puț propriu • Curent electric și fibră optică • Aleile pietonale și spațiile verzi contribuie la un stil de viață echilibrat VILA nu este doar o locuință – este o declarație de stil, sustenabilitate și apartenență. Un loc în care arhitectura întâlnește natura și transformă fiecare zi într-o experiență de viață autentică.
Citește mai mult Citește mai puțin
Nemobilat Grădină Curte Aer condiționat Ventiloconvectoare Centrală proprie

Detalii casă

Actualizat în: 18 Mai 2026 ID anunț: 334606
Nr. camere: 5
Suprafață utilă: 317 mp
Suprafață utilă totală: 317 mp
Nr. băi: 4
Suprafață teren: 959 mp
An construcție: 2024
Regim înălțime: P+1E

Istoric preț

Facilități

Pereți
Vopsea lavabilă
Podele
Parchet
Ușă intrare
Parchet Metal Lemn
Uși interior
Lemn
Izolații termice
Exterior Interior
Contorizare
Apometre Contor căldură Contor gaz
Bucătărie
Mobilată
Mobilat
Nemobilat
Electrocasnice
Aragaz Frigider Hotă Mașină de spălat Mașină spălat vase
Diverse
Scară interioară Senzor de fum Sistem de alarmă Telecomandă poartă acces auto
Alte spații utile
Dressing
Facilități imobil
Acoperiș Curte Grădină Interfon Spații agrement
Utilități
Curent Apă Canalizare Gaze Aragaz / Plită Frigider Mașină de spălat rufe Mașină de spălat vase Cablu
Sistem încălzire
Centrală proprie
Internet
Cablu Wireless
Climatizare
Aer condiționat Ventiloconvectoare
Amenajare străzi
Iluminat stradal Asfaltate
Servicii imobil
Pază

Puncte de interes

Mijloace transport
transport
Jolie Ville Baneasa
Mijloace transport aprox. 1679 m
Școală
education
Scoala Gimnaziala Little London
Învățământ aprox. 1670 m
education
Mark Twain International School
Învățământ aprox. 1768 m
education
American International School of Bucharest (en)
Învățământ aprox. 1976 m
education
School American Bucharest-Voluntari
Învățământ aprox. 1980 m
Recreere
parks
Pădurea Tunari
Recreere aprox. 547 m
shopping
Lidl Pipera
Supermarket/Mall aprox. 1680 m
shopping
Tia Supermarket Non-Stop
Supermarket/Mall aprox. 1731 m
restaurants
Restaurant Tecadra
Restaurante aprox. 1860 m

Proprietăți similare

Casă individuală cu 9 camere cu Teren 750 Mp în Pipera
1.100.000 €
București, Pipera
9 camere
542 mp
750 mp teren
Casă individuală cu 5 camere cu Canalizare în Pipera
999.000 €
București, Pipera
5 camere
285 mp
460 mp teren
Casă individuală cu 5 camere cu Garaj în Pipera
1.028.500 €
București, Pipera
5 camere
240 mp
500 mp teren
Casă individuală cu 6 camere cu Canalizare în Pipera
1.200.000 €
București, Pipera
6 camere
370 mp
700 mp teren
Casă individuală cu 5 camere cu Piscina în Pipera
1.100.000 €
București, Pipera
5 camere
280 mp
400 mp teren
Casă individuală cu 5 camere cu Canalizare în Pipera
1.008.764 €
București, Pipera
5 camere
268 mp
434 mp teren
Casă individuală cu 5 camere cu Canalizare în Pipera
990.000 €
București, Pipera
5 camere
165 mp
570 mp teren
Casă individuală cu 10 camere cu Canalizare în Banu Manta
1.100.000 €
București, Banu Manta
10 camere
600 mp
760 mp teren
Casă individuală cu 4 camere cu Canalizare în Pipera
1.149.318 €
București, Pipera
4 camere
197,9 mp
400 mp teren

Abonează-te la newsletter să fii primul care primește cele mai noi recomandări de proprietăți și sfaturi de la experți.