Vanzare vila S+P+E 187,26 mp | renovata 2011 | Domenii - Piata Domenii

450.000 €

Domenii, Bucureşti

Nr. camere:
4
Suprafață utilă:
175 mp

Descriere casă

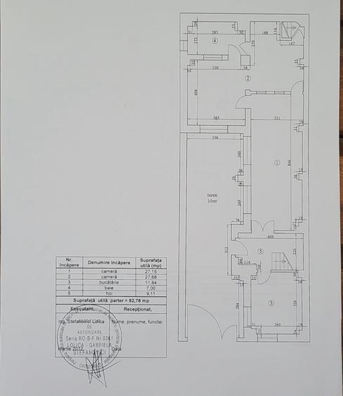
Intr-una dintre cele mai cautate zone ale Capitalei, Domenii, pe o strada lini?tita situata chiar langa Pia?a Domenii, se afla aceasta vila cocheta cu regim de inal?ime S+P+E, ideala pentru o familie care i?i dore?te confort, intimitate ?i acces rapid la facilita?ile urbane. Construita in anul 1997 si renovata in 2011, proprietatea beneficiaza de o compartimentare eficienta, suprafe?e generoase ?i dotari moderne, inclusiv panouri fotovoltaice de 9 kW ce ofera eficien?a energetica sporita. Vila are o suprafa?a utila de 175,12 mp ?i o suprafa?a totala de 187,26 mp, distribuita astfel: subsolul, cu o suprafa?a de 20,70 mp, poate fi utilizat ca spa?iu de depozitare sau amenajare tehnica. Parterul, in suprafa?a utila de 82,78 mp, este compus din doua camere spa?ioase, o bucatarie, o baie ?i un hol, oferind o zona de zi luminoasa ?i func?ionala. Etajul are o suprafa?a utila de 71,64 mp, completata de un palier de scara ?i o terasa de 11,37 mp, ajungand la o suprafa?a totala de 83,70 mp. La acest nivel se afla doua camere, un dressing, doua bai ?i un hol de distribu?ie, configurate pentru a oferi confort ?i intimitate membrilor familiei. Terenul aferent proprieta?ii are o suprafa?a de 160 mp, cu o deschidere de 8 metri, dintre care aproximativ 95 mp reprezinta amprenta la sol a construc?iei, iar circa 65 mp sunt ocupa?i de curtea libera, ideala pentru relaxare sau amenajari exterioare. Curtea este individuala ?i ofera un spa?iu intim, retras de agita?ia ora?ului. Vila dispune de toate utilita?ile necesare, iar sistemul de incalzire este asigurat de o centrala termica, completata de calorifere ?i de aer condi?ionat pentru climatizare in sezonul cald. Pentru un plus de confort ?i protec?ie, ferestrele sunt prevazute cu rulouri ?i obloane din aluminiu, iar proprietatea este izolata termic la exterior, contribuind la un consum redus de energie. Locuin?a ofera ?i doua locuri de parcare, un avantaj considerabil in aceasta zona centrala a ora?ului. Proprietatea se remarca nu doar prin pozi?ionarea excelenta, in proximitatea imediata a pie?ei Domenii, ci ?i prin echilibrul perfect intre spa?iu, func?ionalitate ?i eficien?a, fiind o alegere inspirata pentru cei care i?i doresc o casa bine construita, intr-o zona consacrata, cu acces facil catre transport public, institu?ii de inva?amant, zone comerciale ?i parcuri. Pretul de vanzare este de 450.000 EURO. !!Pentru serviciile de intermediere imobiliara, Agentia percepe un comision de: 3% din pre?ul de vanzare!! !!Vizionarile se fac doar in baza semnarii in prealabil a Fisei de Vizionare.!!
Citește mai mult Citește mai puțin
Nemobilat Aer condiționat Centrală proprie Bine întreținut (Bună)

Detalii casă

ID anunț: 32904 Actualizat în: 05 Martie 2026
Nr. camere: 4
Suprafață utilă: 175 mp
Suprafață utilă totală: 175 mp

Istoric preț

Facilități

Pereți
Faianță Vopsea lavabilă
Podele
Parchet Gresie
Rulouri/Obloane
Lemn PVC
Ușă intrare
Parchet Metal PVC
Uși interior
PVC
Stare interior
Stare bună
Izolații termice
Exterior
Ferestre cu geam termopan
Lemn PVC
Contorizare
Apometre Contor gaz
Bucătărie
Mobilată
Mobilat
Nemobilat
Diverse
Scară interioară
Alte spații utile
Dressing
Sistem încălzire
Centrală proprie
Internet
Fibră optică Wireless
Climatizare
Aer condiționat
Amenajare străzi
Asfaltate Iluminat stradal Mijloace de transport în comun

Puncte de interes

Mijloace transport
transport
Statia Piata Domenii, linia 205, 300, 282, N118, 20, 24, 42, 45
Mijloace transport aprox. 125 m
transport
Piata Domenii
Mijloace transport aprox. 146 m
transport
Piata Domenii
Mijloace transport aprox. 198 m
transport
Statia Sandu Aldea, linia 300, N118
Mijloace transport aprox. 468 m
Școală
education
Gradinita nr. 222
Învățământ aprox. 138 m
education
Gradinita de copii nr.222
Învățământ aprox. 142 m
education
Afterschool inGenius
Învățământ aprox. 177 m
education
Gradinita Casuta Piticilor
Învățământ aprox. 255 m
Recreere
shopping
Mega Image Domenii Non-Stop
Supermarket/Mall aprox. 139 m
shopping
Branza Sibiu
Supermarket/Mall aprox. 147 m
restaurants
French Bakery
Restaurante aprox. 231 m
parks
Teren sportiv
Recreere aprox. 319 m

Proprietăți similare

Casă cu 7 camere cu Canalizare în Domenii
428.000 €
București, Domenii
7 camere
224 mp
180 mp teren
Casă cu 6 camere cu Canalizare în Domenii
489.000 €
București, Domenii
6 camere
229 mp
200 mp teren
Casă cu 4 camere cu Piscina în Pipera
416.500 € + TVA
București, Pipera
4 camere
125,57 mp
175,5 mp teren
Casă cu 4 camere cu Canalizare în Pipera
435.000 € + TVA
București, Pipera
4 camere
179,74 mp
162,25 mp teren
Casă cu 4 camere în Pipera
439.000 €
București, Pipera
4 camere
207 mp
Casă cu 4 camere cu Teren 257 Mp în Bucureștii Noi
405.000 €
București, Bucureștii Noi
4 camere
130 mp
257 mp teren
Casă cu 5 camere cu Teren 300 Mp în Aviației
409.000 €
București, Aviației
5 camere
160 mp
300 mp teren
Casă cu 4 camere cu Canalizare în Dămăroaia
486.918 € + TVA
București, Dămăroaia
4 camere
155 mp
90 mp teren
Casă cu 4 camere în Pipera
450.000 €
București, Pipera
4 camere
164 mp

Abonează-te la newsletter să fii primul care primește cele mai noi recomandări de proprietăți și sfaturi de la experți.