Laminorului I Casa de vanzare I Parter + Pod I 124 mp I Curte I Parcare

229.900 €

Bucureştii Noi, Bucureşti

Nr. camere:
4
Suprafață utilă:
124 mp
Suprafață teren:
300 mp

Descriere casă

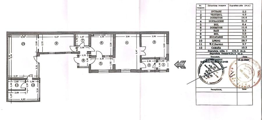
Va prezentam o casa individuala, Parter+Pod, spatioasa, cu 4 camere, situata intr-o zona linistita, aproape de statia de metrou Laminorului. Proprietatea are o suprafata utila de 124.5 mp si este amplasata pe un teren de 300 mp, cu o amprenta la sol de 150 mp. Construita in 1971 si renovata complet in 2009, casa beneficiaza de urmatoarele imbunatatiri: - Izolatie termica exterioara cu polistiren 10 cm - Instalatii sanitare si electrice inlocuite - Acoperis nou din tabla metalica si izolat corespunzator (vata minerala) - Ferestre termopan din PVC - Pereti tencuiti cu plasa (exterior plasa metalica) - Pod pentru depozitare - Centrala termica proprie pentru eficienta energetica - Aparate aer conditionat Casa este compartimentata astfel: doua dormitoare, doua bai, doua livinguri, bucatarie si camara. De asemenea, dispune de un mic beci util pentru depozitare si o debara suplimentara. Curtea este amenajata si include spatiu de relaxare, multiple locuri de parcare si vegetatie. Proprietatea este partial mobilata si este pregatita pentru noii proprietari. Pentru detalii nu ezitati sa ne contactati! COMISION 0
Citește mai mult Citește mai puțin
Parțial mobilat Grădină Curte Aer condiționat Calorifere Centrală proprie Beci Renovat Bine întreținut (Bună)

Detalii casă

ID anunț: 23121 Actualizat în: 01 Aprilie 2026
Nr. camere: 4
Suprafață utilă: 124 mp
Suprafață utilă totală: 124 mp
Nr. băi: 2
Suprafață teren: 300 mp
Front stradal: 10 m
An construcție: 1970

Istoric preț

Facilități

Pereți
Faianță Vopsea lavabilă
Podele
Parchet Gresie
Ușă intrare
Parchet Metal PVC
Uși interior
PVC
Stare interior
Renovat Stare bună
Izolații termice
Exterior
Ferestre cu geam termopan
PVC
Contorizare
Apometre Contor căldură Contor gaz
Bucătărie
Mobilată
Mobilat
Parțial mobilat
Alte spații utile
Pivniță Spațiu depozitare WC Serviciu
Facilități imobil
Acoperiș Curte Grădină Grădină amenajată Interfon
Utilități
Curent Apă Canalizare Cablu Supraveghere video
Sistem încălzire
Centrală proprie Calorifere
Internet
Cablu Fibră optică
Climatizare
Aer condiționat
Amenajare străzi
Asfaltate Betonate Mijloace de transport în comun Iluminat stradal
Servicii imobil
Supraveghere video

Puncte de interes

Mijloace transport
transport
Statia Laromet, linia 97,N117, 304
Mijloace transport aprox. 163 m
transport
Laminorului
Mijloace transport aprox. 202 m
transport
Laromet
Mijloace transport aprox. 205 m
transport
statia Precizia, linia N117, 97
Mijloace transport aprox. 229 m
Școală
education
Camin Scoala Generala Nr. 181
Învățământ aprox. 490 m
education
Scoala 181
Învățământ aprox. 526 m
education
Scoala Generala Nr. 181
Învățământ aprox. 532 m
education
Scoala Nr. 181
Învățământ aprox. 539 m
Recreere
restaurants
Bar
Restaurante aprox. 169 m
parks
Teren sportiv
Recreere aprox. 423 m
shopping
CRIS-TIM
Supermarket/Mall aprox. 515 m
shopping
Lidl
Supermarket/Mall aprox. 649 m

Proprietăți similare

Casă individuală cu 3 camere cu Teren 241 Mp în Bucureștii Noi
235.000 €
București, Bucureștii Noi
3 camere
86 mp
241 mp teren
Casă individuală cu 4 camere cu Canalizare în Bucureștii Noi
239.000 €
București, Bucureștii Noi
4 camere
100 mp
330 mp teren
Casă individuală cu 4 camere cu Teren 155 Mp în Bucureștii Noi
235.000 €
București, Bucureștii Noi
4 camere
94 mp
155 mp teren
Casă individuală cu 3 camere cu Teren 241 Mp în Bucureștii Noi
240.000 €
București, Bucureștii Noi
3 camere
88 mp
241 mp teren
Casă individuală cu 4 camere cu Canalizare în Pipera
220.000 € + TVA
București, Pipera
4 camere
106 mp
100 mp teren
Casă individuală cu 5 camere cu Teren 90 Mp în Pipera
250.000 €
București, Pipera
5 camere
140 mp
90 mp teren
Casă individuală cu 4 camere cu Canalizare în Dămăroaia
235.000 €
București, Dămăroaia
4 camere
50 mp
365 mp teren
Casă individuală cu 5 camere cu Canalizare în Banu Manta
249.000 €
București, Banu Manta
5 camere
140 mp
264 mp teren
Casă individuală cu 5 camere cu Teren 175 Mp în Străulești
234.900 € + TVA
București, Străulești
5 camere
102 mp
175 mp teren

Abonează-te la newsletter să fii primul care primește cele mai noi recomandări de proprietăți și sfaturi de la experți.