Casa din caramida si teren 1316 mp - Savarsin

75.000 €

Săvârşin, Judeţul Arad

Nr. camere:
4
Suprafață utilă:
150 mp
Suprafață teren:
1.316 mp

Descriere casă

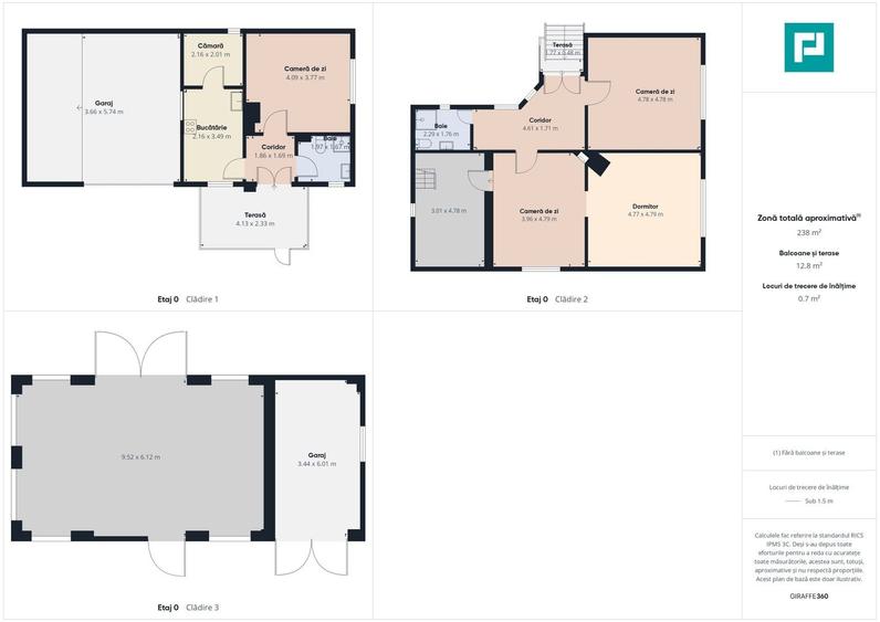
Vă doriți o casă permanentă sau de vacanță ori să amenajați o pensiune turistică în vecinătatea domeniului regal din Săvârșin? Avem o proprietate deosebită, la stradă asfaltată, cu front stradal de 32 m, compusă din: 1.-Casa principală parter înalt, cu: hol intrare, 3 camere generoase, baie cu duș și o cameră ce poate fi amenajată ca bucătărie. Camerele sunt înalte. Ușile și ferestrele sunt tradiționale, din lemn. Pardoseli din podele, parchet laminat și gresie. Șarpantă din lemn și învelitoare din țiglă ceramică. 2.-Casa secundară parter, cu: hol intrare, cameră, baie cu duș, bucătărie și cămară alimente și o terasa acoperită.Uși și ferestre tradiționale, din lemn. Pardoseli din parchet laminat și gresie. Șarpantă din lemn și învelitoare din țiglă ceramică. Lipit de aceasta există un garaj foarte mare, cu canal. 3.-Casă veche tradițională, cu: pridvor, o cameră din lemn tencuit cu pământ văruit și o cameră din lemn netencuit. 4.-Șopron mare semideschis, din cărămidă aparentă, cu un spațiu adiacent cu funcții de atelier sau depozit, cu șarpantă din lemn și învelitoare din țiglă ceramică. 5.-Alte anexe pentru diverse destinații și 2 curți. Casa este locuibilă imediat, este mobilată și utilată. Întreaga proprietate poate fi restructurată, putând deveni o minunată pensiune turistică. Utilități: energie electrică, apă și canalizare. Încălzirea este asigurată prin sobele pe lemne din teracotă. Nu pierdeți această oportunitate, fiți prima persoană care solicită o vizionare asistată. Victor Nedelcu – Consultant imobiliar Property Lab Tel: – E.mail: CP2890714
Citește mai mult Citește mai puțin
Zonă rurală

Detalii casă

ID anunț: 3578576 Actualizat în: 19 Februarie 2026
Nr. camere: 4
Suprafață utilă: 150 mp
Suprafață utilă totală: 150 mp
Nr. băi: 2
Suprafață teren: 1.316 mp
An construcție: 1950

Istoric preț

Facilități

Utilități
Curent Apă Canalizare Aragaz / Plită
Electrocasnice
Aragaz
Ușă intrare
Lemn

Puncte de interes

Recreere
parks
Domeniul Regal Savirsin
Recreere aprox. 146 m
parks
Parc
Recreere aprox. 486 m
parks
Teren Fotbal
Recreere aprox. 726 m

Proprietăți similare

Casă individuală cu 6 camere cu Canalizare în Nădab
75.900 €
Județul Arad, Nădab
6 camere
420 mp
1.800 mp teren
Casă individuală cu 2 camere cu Canalizare în Pârneava
82.000 €
Arad, Pârneava
2 camere
90 mp
135 mp teren
Casă individuală cu 3 camere cu Canalizare în Cartierul Verde
75.790 €
Arad, Cartierul Verde
3 camere
90 mp
116 mp teren
Casă individuală cu 3 camere cu Canalizare în Central
69.000 €
Județul Arad, Curtici
3 camere
65 mp
755 mp teren
Casă individuală cu 4 camere cu Canalizare în Horia
79.500 €
Județul Arad, Horia
4 camere
150 mp
1.000 mp teren
Casă individuală cu 2 camere cu Canalizare în Zimandu Nou
79.000 €
Județul Arad, Zimandu Nou
2 camere
52 mp
1.144 mp teren
Casă individuală cu 5 camere cu Teren 1800 Mp în Neudorf
79.000 €
Județul Arad, Neudorf
5 camere
600 mp
1.800 mp teren
Casă individuală cu 3 camere cu Teren 7290 Mp în Socodor
69.889 €
Județul Arad, Socodor
3 camere
3.701 mp
7.290 mp teren
Casă individuală cu 9 camere cu Canalizare în Exterior Vest
81.500 €
Județul Arad, Pâncota
9 camere
250 mp
320 mp teren

Abonează-te la newsletter să fii primul care primește cele mai noi recomandări de proprietăți și sfaturi de la experți.