Casă individuală, 6 camere, teren generos, Sânandrei - central, comision 0%

142.000 €

Sânandrei, Judeţul Timiş

Nr. camere:
6
Suprafață utilă:
164 mp
Suprafață teren:
1.850 mp

Descriere casă

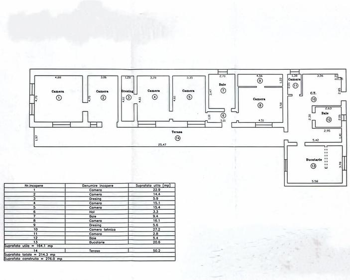
Agenția Imobiliară AB CASA vă propune spre vânzare, FĂRĂ COMISION, o casă individuală mare, pe parter, cu 6 camere și anexe, renovată în anul 2026, situată în centrul localității Sânandrei. Locuința, cu o suprafață utilă de 164 mp și o teresă de 50 mp, este potrivită pentru 2-3 familii. Viitorii proprietari vor beneficia de 5 dormitoare, un dressing, 2 băi, o cămară, o cameră tehnică și o bucătărie, cu acces separat direct din terasa deschisă. Terenul aferent clădirii are o suprafață de 1850 mp, cu un front stradal de 19 m. Imobilul dispune de un sistem de încălzire prin calorifere, conectat la centrala care funcționează cu lemne. Curtea are o suprafață considerabilă și este împrejmuită complet cu gard. Locuința este conectată la curent și apă, cu posibilități de branșare la gaz și canalizare. Proprietatea poate fi utilizată și pentru derularea unor activități comerciale. Preț 142.000 euro, negociabil Telefon:
Citește mai mult Citește mai puțin
Grădină Curte Calorifere Centrală proprie Renovat Zonă rurală

Detalii casă

ID anunț: 4118053 Actualizat în: 09 Aprilie 2026
Nr. camere: 6
Suprafață utilă: 164 mp
Suprafață utilă totală: 164 mp
Nr. băi: 2
Suprafață teren: 1.850 mp
Front stradal: 19 m

Istoric preț

Facilități

Pereți
Faianță Vopsea lavabilă
Podele
Dușumea Gresie
Ușă intrare
Lemn PVC
Uși interior
Lemn PVC
Stare interior
Renovat
Ferestre cu geam termopan
Lemn PVC
Contorizare
Apometre
Bucătărie
Parțial mobilată Parțial utilată
Alte spații utile
Dressing Spațiu depozitare Dependințe Anexe
Facilități imobil
Grădină Acoperiș Curte
Utilități
Curent Fosa septică Apă
Sistem încălzire
Calorifere Centrală proprie
Amenajare străzi
Asfaltate Iluminat stradal Mijloace de transport în comun

Puncte de interes

Mijloace transport
transport
Sanandrei
Mijloace transport aprox. 1581 m

Proprietăți similare

Casă individuală cu 7 camere cu Canalizare în Sânandrei
142.000 €
Județul Timiș, Sânandrei
7 camere
170 mp
1.850 mp teren
Casă individuală cu 3 camere cu Canalizare în Sânandrei
145.000 €
Județul Timiș, Sânandrei
3 camere
68 mp
290 mp teren
Casă individuală cu 3 camere cu Canalizare în Sânandrei
151.000 €
Județul Timiș, Sânandrei
3 camere
119 mp
300 mp teren
Casă individuală cu 4 camere cu Canalizare în Sânandrei
133.000 €
Județul Timiș, Sânandrei
4 camere
75 mp
325 mp teren
Casă individuală cu 4 camere cu Canalizare în Sânandrei
135.000 €
Județul Timiș, Sânandrei
4 camere
105 mp
351 mp teren
Casă individuală cu 4 camere cu Canalizare în Sânandrei
150.000 €
Județul Timiș, Sânandrei
4 camere
120 mp
350 mp teren
Casă individuală cu 3 camere cu Canalizare în Sânandrei
155.000 €
Județul Timiș, Sânandrei
3 camere
100 mp
400 mp teren
Casă individuală cu 3 camere cu Teren 340 Mp în Sânandrei
130.000 €
Județul Timiș, Sânandrei
3 camere
70 mp
340 mp teren
Casă individuală cu 4 camere cu Canalizare în Sânandrei
149.900 €
Județul Timiș, Sânandrei
4 camere
192 mp
637 mp teren

Abonează-te la newsletter să fii primul care primește cele mai noi recomandări de proprietăți și sfaturi de la experți.