Oferta! Casa semifinisata, 140 mp utili, 750 mp teren, Salicea, pompa de caldura

€ 235.000

Sălicea, Judeţul Cluj

Nr. camere:
4
Suprafață utilă:
140 mp
Suprafață teren:
750 mp

Descriere

Raportează anunț

Oferta! Casa semifinisata, 140 mp utili, 750 mp teren, Salicea, pompa de caldura

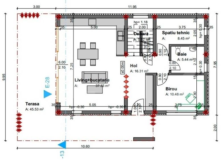
Blitz va ofera spre vanzare o casa individuala semifinisata, avand suprafata utila de 140 mp, cu un teren aferent de 750 mp. Compartimentarea casei este gandita astfel: Parter: living cu bucatarie open space, camera tehnica, birou, baie. Mansarda: 3 dormitoare dintre care unul cu baie si dressing propriu, si inca un dressing si o baie. Casa se preda la stadiul de semifinisat interior, sapa turnata, incalzire in pardoseala atat la parter cat si la mansarda, izolata in exterior cu polistiren de 10 cm si vopsea decorativa, iar curtea ingradita. Incalzirea se realizeaza cu pompa de caldura, ce functioneaza pana la -25 grade! Pentru mai multe informatii, va stam cu drag la dispozitie! Cod oferta / ID BLITZ: P99255
Citește mai mult Citește mai puțin
ID anunț: 74544 Actualizat în: 19 Decembrie 2025
Nr. camere: 4
Suprafață utilă: 140 mp
Suprafață utilă totală: 140 mp
Nr. băi: 3
Suprafață teren: 750 mp
Front stradal: 33 m
An construcție: 2024

Istoric preț

Proprietăți similare

Casă individuală cu 5 camere cu Teren 700 Mp în Sălicea
€ 235.000
Județul Cluj, Sălicea
5 camere
144 mp
700 mp teren
Casă individuală cu 5 camere cu Teren 700 Mp în Sălicea
€ 234.990
Județul Cluj, Sălicea
5 camere
144 mp
700 mp teren
Casă individuală cu 5 camere cu Teren 700 Mp în Sălicea
€ 224.000
Județul Cluj, Sălicea
5 camere
144 mp
700 mp teren
Casă individuală cu 4 camere cu Teren 1222 Mp în Sălicea
€ 240.000
Județul Cluj, Sălicea
4 camere
100 mp
1.222 mp teren
Casă individuală cu 4 camere cu Teren 750 Mp în Sălicea
€ 249.000
Județul Cluj, Sălicea
4 camere
144 mp
750 mp teren
Casă individuală cu 7 camere cu Garaj în Sălicea
€ 235.000
Județul Cluj, Sălicea
7 camere
166 mp
350 mp teren
Casă individuală cu 3 camere cu Teren 1650 Mp în Sălicea
€ 235.000
Județul Cluj, Sălicea
3 camere
100 mp
1.650 mp teren
Casă individuală cu 5 camere cu Teren 700 Mp în Sălicea
€ 235.000
Județul Cluj, Sălicea
5 camere
144 mp
700 mp teren
Casă individuală cu 3 camere cu Garaj în Vechea
€ 249.900
Județul Cluj, Vechea
3 camere
125 mp
2.125 mp teren

Abonează-te la newsletter să fii primul care primește cele mai noi recomandări de proprietăți și sfaturi de la experți.