Com 0% | Casă individuală - DN1 la 2 min | 4 dormitoare | 185 mp utili

348.500 €

Săftica, Judeţul Ilfov

Nr. camere:
5
Suprafață utilă:
185 mp
Suprafață teren:
480 mp
Nr. niveluri:
1

Descriere casă

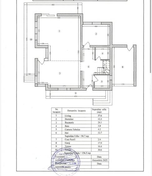
Descoperă confortul unei locuințe moderne, construită cu materiale de calitate superioară, situată într-o zonă liniștită și strategică din Săftica — aproape de București, DN1 și Aeroportul Otopeni. Detalii proprietate: - Teren: 480 mp - Amprentă la sol: 139 mp - Suprafață utilă totală: 292,10 mp - Casă individuală, cu regim de înălțime P+1 - 4 dormitoare spațioase - Living generos cu bucătărie open space - 4 terase ideale pentru relaxare - Loc auto acoperit - Curte amenajată, cu spațiu verde și alei pavate Avantaje: - Construcție solidă, realizată din materiale premium - Compartimentare inteligentă și luminoasă - Poziție excelentă, cu acces rapid către București și aeroport Ideală pentru o familie care caută liniște, confort și proximitate față de oraș Localizare: Săftica – zonă rezidențială în dezvoltare, cu străzi asfaltate și vecinătăți civilizate. Contact: pentru detalii suplimentare și programarea unei vizionări, te rog să mă contactezi.
Citește mai mult Citește mai puțin
Nemobilat Grădină Centrală proprie Bine întreținut (Bună)

Detalii casă

ID anunț: 2617293 Actualizat în: 17 Martie 2026
Nr. camere: 5
Suprafață utilă: 185 mp
Suprafață utilă totală: 185 mp
Nr. băi: 3
Suprafață teren: 480 mp
An construcție: 2025
Regim înălțime: P+1E

Istoric preț

Facilități

Pereți
Vopsea lavabilă Faianță
Podele
Parchet Gresie
Stare interior
Stare bună
Ferestre cu geam termopan
PVC
Utilități
Curent Apă Canalizare Gaze
Sistem încălzire
Centrală proprie
Mobilat
Nemobilat
Facilități imobil
Grădină
Amenajare străzi
Asfaltate Mijloace de transport în comun

Puncte de interes

Școală
education
scoala
Învățământ aprox. 617 m
education
Scoala nr. 1 - Balotesti
Învățământ aprox. 1970 m
education
Gradinisa cu program prelungit nr.1 - Balotesti
Învățământ aprox. 1979 m
Recreere
shopping
Geo Supermarket
Supermarket/Mall aprox. 956 m
parks
Padurea Saftica
Recreere aprox. 1274 m
restaurants
Tara Motilor
Restaurante aprox. 1305 m

Proprietăți similare

Casă individuală cu 4 camere cu Teren 700 Mp în Săftica
330.000 €
Județul Ilfov, Săftica
4 camere
180 mp
700 mp teren
Casă individuală cu 4 camere cu Canalizare în Tunari
334.999 €
Județul Ilfov, Tunari
4 camere
115 mp
50 mp teren
Casă individuală cu 4 camere cu Teren 500 Mp în Corbeanca
320.000 €
Județul Ilfov, Corbeanca
4 camere
122 mp
500 mp teren
Casă individuală cu 6 camere cu Teren 1359 Mp în Glina
350.000 €
Județul Ilfov, Glina
6 camere
148 mp
1.359 mp teren
Casă individuală cu 4 camere cu Teren 400 Mp în Tunari
320.000 €
Județul Ilfov, Tunari
4 camere
110 mp
400 mp teren
Casă individuală cu 6 camere cu Canalizare în Roșu
380.000 €
Județul Ilfov, Roșu
6 camere
300 mp
524 mp teren
Casă individuală cu 5 camere cu Teren 500 Mp în Central
369.000 €
Județul Ilfov, Otopeni
5 camere
280 mp
500 mp teren
Casă individuală cu 5 camere cu Canalizare în Tunari
320.000 €
Județul Ilfov, Tunari
5 camere
215 mp
427 mp teren
Casă individuală cu 5 camere cu Canalizare în Otopeni
370.000 €
Județul Ilfov, Otopeni
5 camere
120 mp
500 mp teren

Abonează-te la newsletter să fii primul care primește cele mai noi recomandări de proprietăți și sfaturi de la experți.