Casă ideală pentru familie în Brașov, Bunloc - spațioasă, luminoasă, priveliște

€ 545.000

Săcele, Judeţul Braşov

Nr. camere:
5
Suprafață utilă:
160 mp
Suprafață teren:
750 mp
Nr. niveluri:
1

Descriere

Raportează anunț

Casă ideală pentru familie în Brașov, Bunloc - spațioasă, luminoasă, priveliște

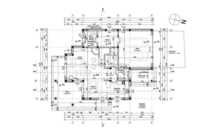
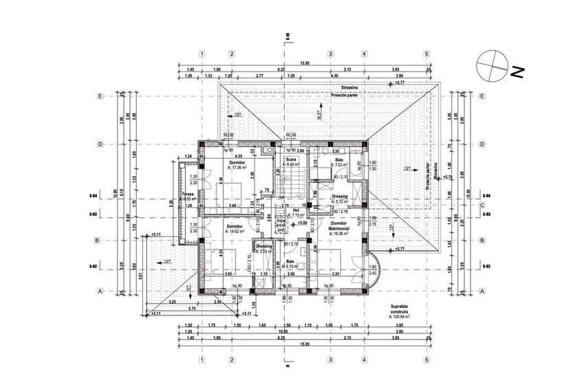
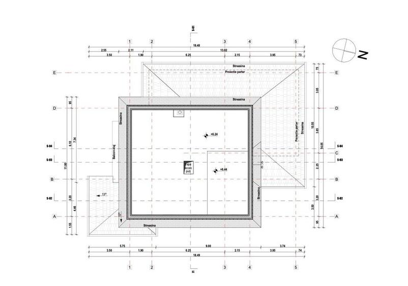
Descoperă o proprietate situată într-unul dintre cele mai exclusiviste cartiere din Brașov, renumit pentru aerul său extrem de curat și peisajele spectaculoase. Casa este amplasată pe un teren de 750 mp, cu priveliște directă către dealul Bunloc, iar apusurile pot fi admirate în toată splendoarea lor din dormitorul matrimonial. Proprietatea beneficiază și de 75 mp cota parte din drumul privat cu acces securizat, care oferă locuri de parcare suplimentare pentru vizitatori. Suprafață construită: 162.89 mp | Suprafață desfășurată: 268.73 mp | Curte privată: 432.9 mp | Garaj dublu încălzit + 2 locuri de parcare exterioare Parter: Living generos, open-space, cu șemineu pe lemne și ferestre mari. Bucătărie modernă, complet mobilată și echipată, cu insulă și zonă de stat. Zonă de dining cu acces la o terasă acoperită, ideală pentru mesele în aer liber. Baie cu duș, vestibul spațios, garaj dublu încălzit cu ușă automatizată NICE și posibilitate de instalare a unei stații de încărcare pentru mașini electrice. Cameră tehnică cu acces direct în curte, ideală pentru BBQ sau grădinărit. Trei terase, dintre care două acoperite. Etaj: Dormitor matrimonial cu dressing walk-in și baie proprie (cabină de duș, lavoar dublu și cadă free-standing). Două dormitoare secundare, fiecare cu balcon. Baie comună dotată cu cadă. Hol generos, casă a scării luminoasă datorită geamului instalat. Acces la pod, ideal pentru depozitare, cu posibilitate de mansardare. Curte amenajată: Pavată cu dale de jur împrejur, inclusiv accesul pietonal și auto. Scuarurile pentru plante sunt pregătite, iar terenul din spate este gata pentru însămânțare. Delimitare cu gard viu pe o latură a proprietății. Dotări și finisaje premium: Mobilier realizat la comandă, electrocasnice de top (Whirlpool, LG IQ, TV Samsung The Frame), covoare lucrate manual importate din Orientul Mijlociu. Geamuri tripan cu protecție UV, uși interioare cu închidere magnetică, uși glisante pentru living. Instalații sanitare Grohe și Kludi. Scară interioară din lemn masiv. Încălzire prin pardoseală la parter și radiatoare decorative Radox la etaj. Sistem de încălzire independent pe fiecare cameră, cu termostate individuale. Eficiență energetică și tehnologie smart: Casa este izolată cu vată bazaltică de 10 cm. Centrală termică Baxi Nuvola Platinum 33kw, echipată cu boiler de inox și pompe de presiune Grundfos. Curent trifazat, circuite separate pentru încălzire. Acoperiș din țiglă de beton Bramac, cu izolație din vată bazaltică. Automatizare NICE pentru poarta de acces și ușa garajului. Sistem de alarmă și supraveghere video, controlabile de la distanță. Documentație completă: Autorizație de construcție, cartea tehnică a construcției, documentație pentru racordarea la utilități. Această casă este alegerea ideală pentru cei care caută un cămin modern, confortabil și elegant, într-o zonă liniștită și exclusivistă din Brașov. Pentru mai multe detalii și programarea unei vizionări, nu ezita să mă contactezi!
Citește mai mult Citește mai puțin
ID anunț: 276979 Actualizat în: 02 Octombrie 2025
Nr. camere: 5
Suprafață utilă: 160 mp
Suprafață utilă totală: 160 mp
Nr. băi: 3
Suprafață teren: 750 mp
An construcție: 2021
Regim înălțime: P+1E

Istoric preț

Utilități

Utilități
Apă Gaze Climă Canalizare Mașină de spălat vase Mașină de spălat rufe Frigider Aragaz / Plită TV
Facilități
Mobilat Curte Garaj Balcon

Proprietăți similare

Casă individuală cu 4 camere cu Teren 400 Mp în Bunloc
€ 498.000
Județul Brașov, Săcele
4 camere
200 mp
400 mp teren
Casă individuală cu 5 camere cu Canalizare în Bunloc
€ 580.000
Județul Brașov, Săcele
5 camere
240 mp
577 mp teren
Casă individuală cu 5 camere cu Canalizare în Bunloc
€ 580.000
Județul Brașov, Săcele
5 camere
250 mp
340 mp teren
Casă individuală cu 8 camere cu Canalizare în Cernatu
€ 540.000
Județul Brașov, Săcele
8 camere
321,99 mp
630 mp teren
Casă individuală cu 10 camere cu Canalizare în Dâmbul Morii
€ 510.000
Județul Brașov, Săcele
10 camere
322 mp
796 mp teren
Casă individuală cu 5 camere cu Canalizare în Cernatu
€ 550.000
Județul Brașov, Săcele
5 camere
335 mp
720 mp teren
Casă individuală cu 7 camere cu Canalizare în Brașovul Vechi
€ 549.900
Brașov, Brașovul Vechi
7 camere
212 mp
1.495 mp teren
Casă individuală cu 7 camere cu Canalizare în Centrul Istoric
€ 550.000
Brașov, Centrul Istoric
7 camere
437 mp
239,4 mp teren
Casă individuală cu 10 camere cu Canalizare în Central
€ 499.000
Județul Brașov, Ghimbav
10 camere
1.012 mp
2.200 mp teren

Abonează-te la newsletter să fii primul care primește cele mai noi recomandări de proprietăți și sfaturi de la experți.