Casa Individuala Termen de Finalizare Iulie 2026

€ 285.000 + TVA

Săcele, Judeţul Braşov

Nr. camere:
4
Suprafață utilă:
117 mp
Suprafață teren:
350 mp
Nr. niveluri:
2

Descriere

Raportează anunț

Casa Individuala Termen de Finalizare Iulie 2026

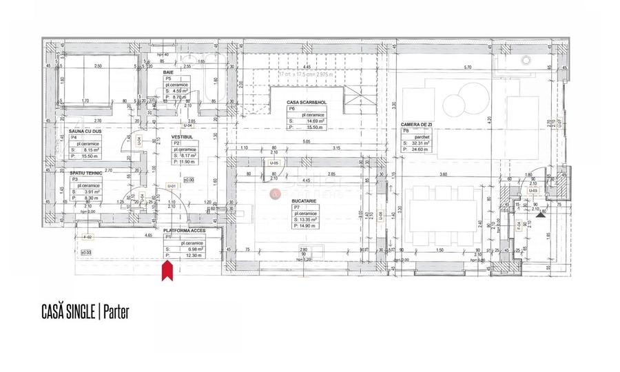
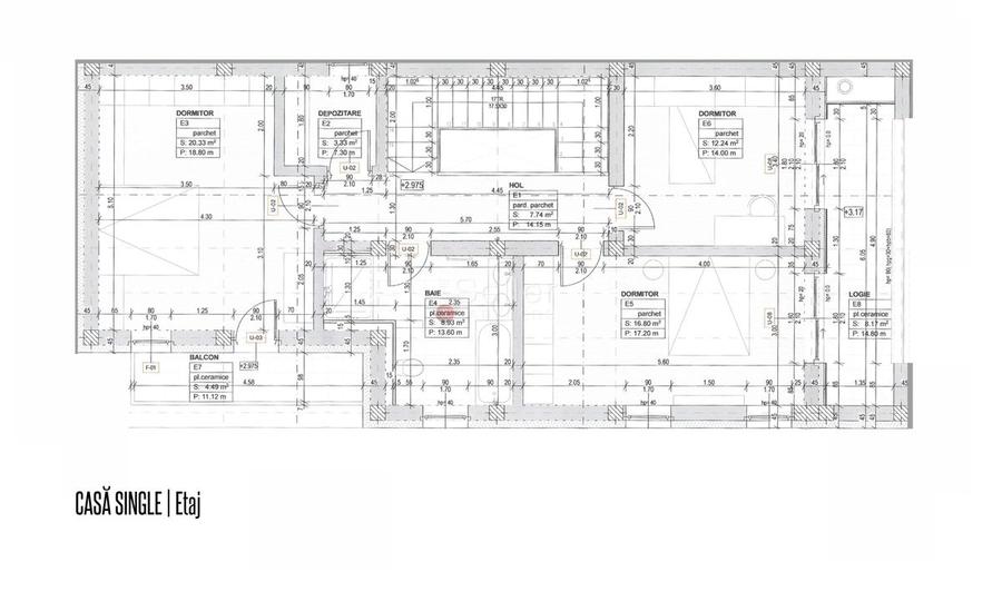
LOCALIZARE: Acest imobil face parte dintr-o dezvoltare imobiliara cu circuit inchis, situata in Sacele, cartier Bunloc, in imediata apropiere a lizierii padurii, cu priveliste deosebita spre Bucegi, masivul Postavarul si Bunloc. COMPARTIMENTARE: Cu o suprafata de teren de 500 mp si fiind dispusa pe un regim de inaltime P+1, casa detine o suprafata utila de 117 mp, fiind dispusa astfel: PARTER: Destinat zonei de zi, pe acest nivel regasim: - living-ul, care detine o suprafata generoasa; - bucatarie inchisa; - terasa, cu acces din zona de bucatarie; - baie, care beneficiaza de cada; - sauna, cu dus; - camara si spatiu tehnic; - 2 terase; - vestibul, hol si casa scarii; ETAJ: Alocat zonei de noapte, acest nivel detine: - dormitor 1, care detine iesire pe balcon; - dormitor 2, si acesta beneficiind de iesire pe balcon; - baie, aceasta fiind dotata cu cada; - dormitor matrimonial, cu iesire pe balcon; - balcon si logie. DOTARI SI FINISAJE: - pereti din caramida POROTERM; - izolatie realizata cu vata bazaltica; - acoperis realizat cu tigla BRAMAC; - izolatia acoperisului este realizata cu spuma poliuretanica – celula inchisa; - tamplarie PVC cu 3 foi de sticla - Salamander. - incalzire in pardosela, cu reglaj temperatura, pe fiecare camera, baie si bucatarie; - parchet laminat de 10mm; - usi LEBO-Germania; - centrala termica ARISTON 24kw; - baterii sanitare GROHE - Germania, cu dus termostatat; - complex cu acces securizat; - pavaje alei si parcare; UTILITATI: - Gaz; - Curent; - Apa; - Canalizare. IMPREJURIMI: Imobilul este situat intr-un complex, cu acces securizat, format din 5 case, intreaga dezvoltare fiind dispusa pe o suprafata totala de teren de 2.295 mp. Accesul auto, pana la zona de retail a orasului se face in 5 minute. INFORMATII ZONA: -proximitatea padurii, zona rezidentiala preponderent de case. ACCESIBILITATE: Transport public în apropiere | la aproximativ 500m. FORMA ACHIZITIONARE: Se accepta si plata prin accesare credit. Comision 0%. Imobil in curs de edificare. Predare: Iulie 2026 Pret: 285.000 euro + TVA. Structura acestei prezentari nu poate fi reprodusa, fara acordul scris al The Seller and Partners.
Citește mai mult Citește mai puțin
ID anunț: 80226 Actualizat în: 24 Noiembrie 2025
Nr. camere: 4
Suprafață utilă: 117 mp
Suprafață utilă totală: 117 mp
Nr. băi: 2
Suprafață teren: 350 mp
Front stradal: 20 m
An construcție: 2026 (Proiect)
Regim înălțime: P+2E

Istoric preț

Utilități

Utilități
Apă Gaze Canalizare
Facilități
Curte Balcon

Proprietăți similare

Casă individuală cu 4 camere cu Teren 850 Mp în Bunloc
€ 299.000
Județul Brașov, Săcele
4 camere
184 mp
850 mp teren
Casă individuală cu 6 camere cu Canalizare în Central
€ 295.000
Județul Brașov, Săcele
6 camere
130 mp
1.200 mp teren
Casă individuală cu 6 camere cu Canalizare în Baciu
€ 285.000
Județul Brașov, Săcele
6 camere
215 mp
804 mp teren
Casă individuală cu 2 camere cu Canalizare în Ștefan cel Mare
€ 260.000
Județul Brașov, Săcele
2 camere
115 mp
3.625 mp teren
Casă individuală cu 5 camere cu Canalizare în Cernatu
€ 259.000
Județul Brașov, Săcele
5 camere
224 mp
556 mp teren
Casă individuală cu 5 camere cu Canalizare în Turcheș
€ 299.900
Județul Brașov, Săcele
5 camere
150 mp
1.700 mp teren
Casă individuală cu 7 camere cu Teren 599 Mp în Baciu
€ 270.000
Județul Brașov, Săcele
7 camere
283 mp
599 mp teren
Casă individuală cu 5 camere cu Canalizare în Sânpetru
€ 299.999
Județul Brașov, Sânpetru
5 camere
135 mp
410 mp teren
Casă individuală cu 2 camere cu Canalizare în Florilor
€ 263.900
Brașov, Florilor
2 camere
100 mp
560 mp teren

Abonează-te la newsletter să fii primul care primește cele mai noi recomandări de proprietăți și sfaturi de la experți.