Ansamblu privat - 3 case cu 4 apartamente generoase Pucioasa, langa Parc

97.185 €

Pucioasa, Judeţul Dâmboviţa

Nr. camere:
12
Suprafață utilă:
518 mp
Suprafață teren:
607 mp
Nr. niveluri:
1

Descriere casă

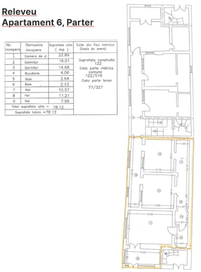
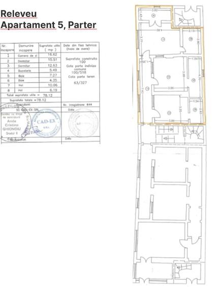
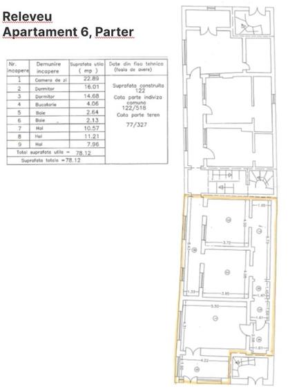
Imobilul este situat în orașul Pucioasa, județul Dâmbovița, pe Strada Republicii, una dintre arterele centrale ale localității, cu acces facil către principalele zone de interes ale orașului. Orașul se remarcă prin funcțiunea sa turistică, dezvoltată în jurul băilor terapeutice și a cadrului natural specific zonei colinare. Conform PUG local, zona Str. Republicii este parte a terasei centrale a localității, una dintre cele mai populate vetre istorice ale orașului, cu acces facil la rețeaua de circulație locală. Proprietatea face parte din „Ansamblul Urban” Pucioasa, monument istoric înscris în Lista Monumentelor Istorice, Monitorul Oficial nr. 113 bis / 15.02.2016, poziția 1024, cod LMI DB-II-a-B-1766. Acest statut conferă zonei un caracter urbanistic și arhitectural protejat, ceea ce crește valoarea istorică și patrimonială a amplasamentului. Gradul de asigurare cu utilități al zonei și perspectivele sale de dezvoltare prin creșterea valorii comerciale susțin si justifică un demers de achiziție. Regimul tehnic (potrivit Certificatului de Urbanism de informare – feb. 2026) • Imobilul este situat în intravilanul orașului Pucioasa, pe Str. Republicii nr. 96B (fost nr. 78). • Accesul la proprietate se realizează direct din drumul public – Strada Republicii, aflată în administrarea U.A.T. Oraș Pucioasa. • UTR nr. 7 – Zona IS (instituții publice și servicii de interes preponderent) – subzona a – construcții administrative • POT max = 20% • CUT = 0,4 • Înălțime maximă admisă = 2,5 niveluri ►Terenul are o suprafață totală de 607 mp și este format din două parcele: • CF 71753: 327 mp aferenți construcției, repartizați în cote indivize fiecărui apartament; • CF 71793: 280 mp de curte, proprietate exclusivă a vânzătorului. ►Clădirea, cu regim de înălțime P+1E+Pod, este construită din cărămidă, beton și piatră, având un caracter solid și un potențial bun pentru finalizare și personalizare. Cele 3 corpuri care formează clădirea au intrat într-un proces amplu de modernizare și recompartimentare, lucrările nefiind încă finalizate — avantaj pentru un cumpărător care dorește să își configureze spațiile după propriile nevoi. Astfel, în urma lotizării au rezultat 4 apartamente cu suprafețe generoase, după cum urmează: • Parter:  Apartament 5 – 3 camere, bucătărie, 2 băi, 2 holuri, 100 mp SC | 78,12 mp SU  Apartament 6 – 3 camere, bucătărie, 2 băi, 3 holuri, 122 mp SC | 92,15 mp SU • Etaj:  Apartament 9 – 3 camere, bucătărie, hol, casa scării, 108 mp SC | 81,95 mp SU  Apartament 10 – 3 camere, bucătărie, 2 băi, 4 holuri, 132 mp SC | 100,91 mp SU • Părți comune: casele de scară • Finisaje:  Apartamentul 5 este aproape finisat (parchet, gresie, zugrăveli, faianță). Celelalte apartamente sunt în stadiu gri, ideale pentru personalizare după preferințele cumpărătorului. Invităm potențialii ofertanți să transmită propuneri de preț în funcție de evaluarea proprie. Vanzatorul isi exprima disponibilitatea de a analiza orice oferta serioasa primita, cu conditia ca aceasta sa fie rezonabila, ancorata in realitatea pietei imobiliare si sa reflecte o intentie reala de achizitie. Toate ofertele vor fi evaluate individual, in functie de valoarea propusa in raport cu piata, conditiile de plata si disponibilitatea cumparatorului de a parcurge rapid pasii necesari finalizarii tranzactiei.
Citește mai mult Citește mai puțin
Centrală proprie

Detalii casă

ID anunț: 90588 Actualizat în: 24 Februarie 2026
Nr. camere: 12
Suprafață utilă: 518 mp
Suprafață utilă totală: 518 mp
Nr. băi: 7
Suprafață teren: 607 mp
An construcție: 1955
Regim înălțime: P+1E

Istoric preț

Facilități

Pereți
Faianță Vopsea lavabilă
Podele
Parchet Gresie
Ușă intrare
Parchet Metal PVC
Ferestre cu geam termopan
PVC
Utilități
Curent Apă
Sistem încălzire
Centrală proprie
Amenajare străzi
Asfaltate Mijloace de transport în comun Iluminat stradal

Puncte de interes

Recreere
parks
Teren sportiv
Recreere aprox. 1353 m

Proprietăți similare

Casă individuală cu 3 camere cu Teren 275 Mp în Crevedia
95.000 €
Județul Dâmbovița, Crevedia
3 camere
65 mp
275 mp teren
Casă individuală cu 5 camere cu Teren 1000 Mp în Central
89.000 €
Județul Dâmbovița, Fieni
5 camere
260 mp
1.000 mp teren
Casă individuală cu 5 camere cu Teren 1063 Mp în Ungureni (Corbii Mari)
89.000 €
Județul Dâmbovița, Ungureni (Corbii Mari)
5 camere
90 mp
1.063 mp teren
Casă individuală cu 4 camere cu Teren 573 Mp în Bâldana
90.000 € + TVA
Județul Dâmbovița, Bâldana
4 camere
110 mp
573 mp teren
Casă individuală cu 7 camere cu Canalizare în Fieni
99.000 €
Județul Dâmbovița, Fieni
7 camere
201 mp
6.275 mp teren
Casă individuală cu 5 camere cu Teren 598 Mp în Dârza
90.000 €
Județul Dâmbovița, Dârza
5 camere
214 mp
598 mp teren
Casă individuală cu 2 camere cu Garaj în Tărtășești
105.000 €
Județul Dâmbovița, Tărtășești
2 camere
96 mp
1.256 mp teren
Casă individuală cu 2 camere cu Teren 2400 Mp în Dărmănești
99.900 €
Județul Dâmbovița, Dărmănești
2 camere
80 mp
2.400 mp teren
Casă individuală cu 3 camere cu Teren 3040 Mp în Tărtășești
95.000 €
Județul Dâmbovița, Tărtășești
3 camere
88 mp
3.040 mp teren

Abonează-te la newsletter să fii primul care primește cele mai noi recomandări de proprietăți și sfaturi de la experți.